逗子市の一戸建て物件(新築・中古・建売)購入情報
「逗子市」で9件の一戸建てが見つかりました。
逗子市の一戸建て・分譲住宅情報を、新築から中古まで幅広くご紹介した総合ページです。逗子市で戸建て住宅をお探しの方はウスイホームにお任せください。
該当物件9件
×
中古一戸建
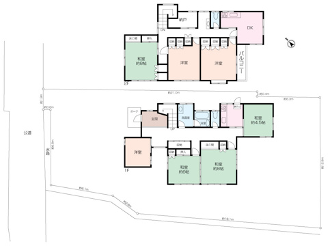
~大型7LDK~沼間2丁目中古戸建
中古一戸建
セールスポイント
【東逗子駅から徒歩5分・カーポート付き7LDK戸建】
◆JR横須賀線「東逗子駅」から徒歩5分の間取り
◆7LDKの大型の間取り。ロフトもついています。
◆約49坪のゆとりある敷地
◆全居室収納つき、収納豊富な間取り
◆2階にもキッチン・浴室・トイレがあり2世帯住宅としてのご検討可能な物件です。
◆スーパー、公園近く住環境良好
※敷地の大半が「土砂災害特別警戒区域」に指定されております。
所在地 |
神奈川県逗子市沼間2丁目 |
建物面積 |
150.27㎡ |
||
|---|---|---|---|---|---|
販売価格 |
3980万円 |
築年数 |
築19年 |
間取り |
7LDK |
交通 |
横須賀線「東逗子」駅 徒歩5分 |
||||
新築一戸建
逗子市沼間2丁目新築戸建て
新築一戸建
セールスポイント
~南西・南東の角地に位置する新築住宅~
■JR横須賀線「東逗子」駅まで起伏が少ない徒歩約8分の立地
■南西側から南側、東南側にかけて道路になり隣家との距離は離れています
■カースペース1台分あり。他に自転車やバイクの駐輪可能スペースもあります
■南向きの2階にリビングがあり勾配天井のため明るく開放感があります
■小学校、スーパー、コンビニ、ドラッグストア等が徒歩10分圏内の立地です
所在地 |
神奈川県逗子市沼間2丁目 |
交通 |
横須賀線「東逗子」駅 徒歩8分 |
|---|---|---|---|
築年数/階数 |
予定 / 2階建 |
販売価格
間取り
建物面積
土地面積
マイページ
詳細
中古一戸建
逗子6丁目 戸建住宅
中古一戸建
セールスポイント
~生活利便性×海を感じる暮らし~
●逗子・葉山駅まで平坦徒歩5分の立地!
●敷地面積95坪、建坪57坪とゆったりとした空間が印象的な大型住宅。
徒歩10分圏内には、スーパー、コンビニ、小学校などがあり
県道24号線より一本裏通りに入っているため人混みも無く
生活利便性を求めながら、のんびりと暮らしたい方へお勧めな立地
建物はリフォームしてそのまま利用や建て替え用地としてご検討頂いても良いですね。
所在地 |
神奈川県逗子市逗子6丁目 |
建物面積 |
190.04㎡ |
||
|---|---|---|---|---|---|
販売価格 |
1億5300万円 |
築年数 |
築46年 |
間取り |
7DK |
交通 |
京急逗子線「逗子・葉山」駅 徒歩5分 |
||||
新築一戸建
*亀ヶ岡団地に佇む邸宅*小坪1丁目新築分譲住宅
新築一戸建
セールスポイント
〇建物は令和7年12月に完成予定。
〇亀ヶ岡団地の閑静な住宅街に立地し、住環境良好。
〇前面道路は幅員約6mと広く、高低差も少ないため駐車がしやすいです。
〇2階にリビングがあり、勾配天井なので開放感がある間取り。
〇キッチン裏には食品庫としてのスペースがあり、ストックに便利。
所在地 |
神奈川県逗子市小坪1丁目 |
交通 |
横須賀線「逗子」駅 バス21分 「亀が岡団地北」 停歩2分 |
|---|---|---|---|
築年数/階数 |
予定 / 2階建 |
販売価格
間取り
建物面積
土地面積
マイページ
詳細
セールスポイント
◎逗子市桜山の閑静な住宅地に位置する中古戸建
◎嬉しい15帖のウッドデッキ付き
◎室内リフォームも完了しました!
◎7.8帖のロフト付きで、収納スペースも全居室に完備しております
◎約20帖のLDK!ゆとりのある間取りとなっております。
所在地 |
神奈川県逗子市桜山5丁目 |
建物面積 |
102.26㎡ |
||
|---|---|---|---|---|---|
販売価格 |
3398万円 |
築年数 |
築15年 |
間取り |
3LDK |
交通 |
横須賀線「東逗子」駅 徒歩19分 |
||||
新築一戸建
VerGarden桜山4丁目
新築一戸建
セールスポイント
駅まで平坦な立地の物件になります。
田越川近くの閑静な環境の分譲地となります。
近隣にはスーパー・ドラックストアもあり、利便性も高い物件かと思います。
お気軽にお問合せください。
所在地 |
神奈川県逗子市桜山4丁目12-11 |
交通 |
横須賀線「東逗子」駅 徒歩5分 |
|---|---|---|---|
築年数/階数 |
予定 / 2階建 |
販売価格
間取り
建物面積
土地面積
マイページ
詳細
新築一戸建
東逗子駅まで5分の新築分譲住宅
新築一戸建
セールスポイント
東逗子駅徒歩5分の立地の新築分譲住宅
駅までほぼ平坦な立地が特徴
LDKは20帖超のゆとりがあります。
近隣には各種施設が充実しております。
所在地 |
神奈川県逗子市沼間1丁目 |
交通 |
横須賀線「東逗子」駅 徒歩5分 |
|---|---|---|---|
築年数/階数 |
予定 / 2階建 |
販売価格
間取り
建物面積
土地面積
マイページ
詳細
新築一戸建
桜山5丁目 新築戸建(1号棟)
新築一戸建
セールスポイント
●駅まで平坦徒歩5分の立地!
●充実した収納スペースでゆとりある空間演出。
周辺にはスーパー、コンビニ、小学校などがあります。
県道24号線より一本裏通りに入っているため人混みも無く
生活利便性を求めながら、のんびりと暮らしたい方へお勧めな立地。
建物は4LDKと収納スペースを多く取り入れた設計。
性能にも拘り環境&家計にも優しい「省エネ住宅」で長く住みやすいをコンセプトに設計いたしました。
所在地 |
神奈川県逗子市桜山5丁目 |
交通 |
横須賀線「東逗子」駅 徒歩5分 |
|---|---|---|---|
築年数/階数 |
新築 / 2階建 |
販売価格
間取り
建物面積
土地面積
マイページ
詳細
チェックした物件を
該当物件9件 1〜9件表示
逗子市周辺の情報
逗子市の戸建て販売情報でよくある質問
逗子市周辺の店舗情報
近くの市区町村から探す
同じエリアにある駅から探す
特集から探す
- 逗子市の日当たり良好な一戸建て
- 逗子市のファミリー向け一戸建て
- 逗子市の築浅一戸建て
- 逗子市の駅徒歩10分以内の一戸建て
- 逗子市の南向き・南道路の一戸建て
- 逗子市のLDK15畳以上の一戸建て
- 逗子市のリフォーム・リノベーション済一戸建て
- 逗子市の海が見える一戸建て
- 逗子市の庭付き一戸建て
逗子市の不動産を別の種別から探す


























































































































































































































































