横浜市港南区の一戸建て物件(新築・中古・建売)購入情報
「横浜市港南区」で14件の一戸建てが見つかりました。
横浜市港南区の一戸建て・分譲住宅情報を、新築から中古まで幅広くご紹介した戸建ての総合ページです。横浜市港南区でマイホームをお探しの方に、 最新の設備と安心が魅力の新築、住みたい街で理想の環境や条件から選べる中古、それぞれの特徴を比較しながらご検討いただけます。横浜市港南区で戸建て住宅をお探しの方はウスイホームにお任せください。地域に根差したウスイホームが、豊富な選択肢から納得のいく住まい選びを全力でお手伝いします。
該当物件14件
×
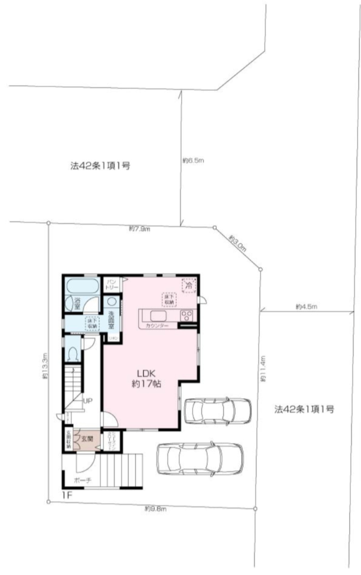
セールスポイント
~港南台駅徒歩12分/南東向きで陽当り良好~
・2017年築で室内状況良好、とても丁寧に使用されています
・各居室2面窓で陽当り・風通し良好
・広々としたお庭スペース付
・約16帖の広いLDKはカウンターキッチンを採用
・周辺環境が充実しており便利な住環境
所在地 |
神奈川県横浜市港南区港南台9丁目 |
建物面積 |
99.15㎡ |
||
|---|---|---|---|---|---|
販売価格 |
5580万円 |
築年数 |
築8年 |
間取り |
4LDK |
交通 |
京浜東北線「港南台」駅 徒歩12分 |
||||
新築一戸建
日限山4丁目新築戸建B棟
新築一戸建
セールスポイント
◆閑静な住宅街につき住環境・子育て環境良好
◆JRと横浜市営地下鉄ブルーラインの2路線利用可能
◆陽当たり・通風良好。敷地内にカースペース1台付
所在地 |
神奈川県横浜市港南区日限山4丁目 |
交通 |
東海道本線「戸塚」駅 バス15分 「港南プラザ」 停歩5分 |
|---|---|---|---|
築年数/階数 |
新築 / 2階建 |
販売価格
間取り
建物面積
土地面積
マイページ
詳細
新築一戸建
限定1棟ベルガーデン下永谷5丁目新築戸建
新築一戸建
セールスポイント
環状2号線へのアクセス良好!建物天井の高さが2.7mあり、開放感あふれるリビングが魅力です!閑静な住宅街にありながら、近隣に大型商業施設、商店街、銀行、郵便局等揃っておりますので、日常生活に困ることはございません!住宅ローンの事前審査(仮審査)も受付しております。各金融機関の住宅ローン審査をウスイホームでまとめてご手配いたします。ウスイホーム久里浜店、板倉まで!
所在地 |
神奈川県横浜市港南区下永谷5丁目 |
交通 |
ブルーライン「下永谷」駅 徒歩20分 |
|---|---|---|---|
築年数/階数 |
新築 / 2階建 |
販売価格
間取り
建物面積
土地面積
マイページ
詳細
セールスポイント
-べルガーデン芹が谷4丁目-
・建物完成しました。内見可能です。
・収納豊富な新築一戸建て
・4LDK+ロフトの間取りでロフトはゆったり6帖
・カースペース2台可能(車種による)
・LDKはゆとりの18帖
・閑静な住宅街
所在地 |
神奈川県横浜市港南区芹が谷4丁目18 |
交通 |
京急本線「上大岡」駅 バス16分 「せりぎんタウン」 停歩4分 |
|---|---|---|---|
築年数/階数 |
新築 / 2階建 |
販売価格
間取り
建物面積
土地面積
マイページ
詳細
新築一戸建
【北西角地】笹下6丁目新築戸建
新築一戸建
セールスポイント
北西角地×2台駐車可能×「洋光台」駅徒歩19分でアクセス可能
所在地 |
神奈川県横浜市港南区笹下6丁目 |
交通 |
京浜東北線「洋光台」駅 徒歩19分 |
|---|---|---|---|
築年数/階数 |
予定 / 2階建 |
販売価格
間取り
建物面積
土地面積
マイページ
詳細
セールスポイント
駐車場付き4LDKの中古戸建です。
周辺施設が充実しており、住みやすい物件です。
現地、周辺環境を丁寧にご案内させていただきますので、お気軽にお問い合わせください。
所在地 |
神奈川県横浜市港南区芹が谷2丁目 |
建物面積 |
81.4㎡ |
||
|---|---|---|---|---|---|
販売価格 |
3180万円 |
築年数 |
築26年 |
間取り |
4LDK |
交通 |
京急本線「上大岡」駅 バス16分 「芹が谷団地前」 停歩9分 |
||||
セールスポイント
~4LDK+WIC+SIC+パントリー/北西角地で開放感のある立地~
■上永谷駅・下永谷駅の2駅徒歩圏内
■バス利用で東戸塚駅へのアクセスも可能
■カースペース2台分(車種による)
■近隣に小学校・中学校もあり、お子様のいるご家庭にも嬉しい住環境
■省エネ基準適合住宅
■子育て世帯にオススメなリビングイン階段を採用
所在地 |
神奈川県横浜市港南区上永谷4丁目 |
交通 |
ブルーライン「上永谷」駅 徒歩14分 |
|---|---|---|---|
築年数/階数 |
予定 / 2階建 |
販売価格
間取り
建物面積
土地面積
マイページ
詳細
中古一戸建
港南台6丁目中古戸建
中古一戸建
セールスポイント
▼▽▼内覧可能▼▽▼
北東角地!前面棟無く日当たり、眺望良好!!
所在地 |
神奈川県横浜市港南区港南台6丁目 |
建物面積 |
133.69㎡ |
||
|---|---|---|---|---|---|
販売価格 |
6850万円 |
築年数 |
築19年 |
間取り |
4LDK+1S(納戸) |
交通 |
京浜東北線「港南台」駅 徒歩19分 |
||||
中古一戸建
~広々5LDK~下永谷2丁目中古戸建
中古一戸建
セールスポイント
セキスイハイム施工/陽当り良好なリノベーション住宅
■2025年9月内外装リフォーム完了
■土地面積50坪超
■5LDKの大型戸建
■大容量の収納と、各居室2面採光で明るい空間
■バルコニーからは開放的な眺め
■LDKと和室を広げれば約26帖の贅沢な空間
■空室につきいつでもご内見可能
~内見希望・資料請求はウスイホーム上大岡店【0120-938-175】までお問い合わせください~
所在地 |
神奈川県横浜市港南区下永谷2丁目 |
建物面積 |
130.03㎡ |
||
|---|---|---|---|---|---|
販売価格 |
4380万円 |
築年数 |
築42年 |
間取り |
5LDK |
交通 |
ブルーライン「上永谷」駅 徒歩16分 |
||||
新築一戸建
東芹が谷新築
新築一戸建
セールスポイント
■間取4LDK+カースペース並列2台駐車可能
■LDK約17帖。LD部分上部は吹抜になり開放感に満ちた寛ぎ空間
■土地面積約39坪の整形地
■南西側6.5m公道に約12m接道。陽当たり・開放感良好
■充実の仕様・設備が新生活をサポート
■第1種低層住居専用地域の閑静な住宅地内に立地しています
■芹が谷小学校まで約500m。小さなお子様も安心して通える立地
■バス便利用で上大岡駅・東戸塚駅利用可能
所在地 |
神奈川県横浜市港南区東芹が谷 |
交通 |
ブルーライン「上永谷」駅 徒歩24分 |
|---|---|---|---|
築年数/階数 |
予定 / 2階建 |
販売価格
間取り
建物面積
土地面積
マイページ
詳細
新築一戸建
日野中央2丁目新築戸建
新築一戸建
セールスポイント
全居室日当たりの良い南向き×和室のある心地いい空間
所在地 |
神奈川県横浜市港南区日野中央2丁目 |
交通 |
京浜東北線「洋光台」駅 徒歩22分 |
|---|---|---|---|
築年数/階数 |
新築 / 2階建 |
販売価格
間取り
建物面積
土地面積
マイページ
詳細
新築一戸建
港南区下永谷5丁目新築戸建
新築一戸建
セールスポイント
▼▽▼内覧可能▼▽▼
採光を多めに確保した開放感あふれる20帖越LDK!!
所在地 |
神奈川県横浜市港南区下永谷5丁目 |
交通 |
ブルーライン「下永谷」駅 徒歩15分 |
|---|---|---|---|
築年数/階数 |
新築 / 2階建 |
販売価格
間取り
建物面積
土地面積
マイページ
詳細
中古一戸建
日野6丁目中古戸建て
中古一戸建
セールスポイント
~日野6丁目中古戸建てのご紹介~
◎リフォーム完工しました!
◎使い勝手の良いファミリータイプの4LDKの間取りとなります。
◎バス停より徒歩2分の立地条件にて周辺環境充実しております。
◎前面道路広々しており、ストレスなく車の行き来が可能です。
所在地 |
神奈川県横浜市港南区日野6丁目 |
建物面積 |
84.46㎡ |
||
|---|---|---|---|---|---|
販売価格 |
3780万円 |
築年数 |
築27年 |
間取り |
4LDK |
交通 |
京急本線「上大岡」駅 バス10分 「日野橋」 停歩4分 |
||||
新築一戸建
ベルガーデン下永谷5丁目新築戸建
新築一戸建
セールスポイント
【建物完成しました。是非現地をご見学下さい】
(本物件の魅力をご紹介)
・リビングダイニング天井高2.7m。開放感と採光にこだわった19帖のLDK
・収納豊富な間取で居住空間をゆったり利用可能(パントリー・リネン庫・全室収納付)
・南面に広がるバルコニーで毎日のお洗濯も快適
・永谷小学校まで徒歩5分
(建物完成)
・即日見学可能。お好きな時間にご家族皆様でご見学下さい
所在地 |
神奈川県横浜市港南区下永谷5丁目 |
交通 |
ブルーライン「下永谷」駅 徒歩19分 |
|---|---|---|---|
築年数/階数 |
新築 / 2階建 |
販売価格
間取り
建物面積
土地面積
マイページ
詳細
チェックした物件を
該当物件14件 1〜14件表示
近くの市区町村から探す
同じエリアにある駅から探す
特集から探す
- 横浜市港南区の日当たり良好な一戸建て
- 横浜市港南区のファミリー向け一戸建て
- 横浜市港南区の築浅一戸建て
- 横浜市港南区の駅徒歩10分以内の一戸建て
- 横浜市港南区の南向き・南道路の一戸建て
- 横浜市港南区のLDK15畳以上の一戸建て
- 横浜市港南区のリフォーム・リノベーション済一戸建て
- 横浜市港南区の海が見える一戸建て
- 横浜市港南区の庭付き一戸建て
横浜市港南区の不動産を別の種別から探す



































































































































































































































































































































































































































































































































































































































