横浜市磯子区の一戸建て物件(新築・中古・建売)購入情報
「横浜市磯子区」で22件の一戸建てが見つかりました。
横浜市磯子区の一戸建て・分譲住宅情報を、新築から中古まで幅広くご紹介した戸建ての総合ページです。横浜市磯子区でマイホームをお探しの方に、 最新の設備と安心が魅力の新築、住みたい街で理想の環境や条件から選べる中古、それぞれの特徴を比較しながらご検討いただけます。横浜市磯子区で戸建て住宅をお探しの方はウスイホームにお任せください。地域に根差したウスイホームが、豊富な選択肢から納得のいく住まい選びを全力でお手伝いします。
該当物件22件
×
新築一戸建
ー開放感溢れるゆとりの敷地ー 杉田7丁目新築戸建
新築一戸建
セールスポイント
\内覧可能/
ゆとりの土地面積約153㎡!カースペース2台分!
所在地 |
神奈川県横浜市磯子区杉田7丁目 |
交通 |
京急本線「杉田」駅 徒歩19分 |
|---|---|---|---|
築年数/階数 |
新築 / 2階建 |
販売価格
間取り
建物面積
土地面積
マイページ
詳細
セールスポイント
通勤通学便利な「根岸」駅徒歩18分の閑静な住宅街!!
所在地 |
神奈川県横浜市磯子区中浜町 |
交通 |
京浜東北線「根岸」駅 徒歩18分 |
|---|---|---|---|
築年数/階数 |
新築 / 3階建 |
販売価格
間取り
建物面積
土地面積
マイページ
詳細
セールスポイント
『デザイン性』×『機能性』を兼ね備えた新築分譲住宅【全2棟】の誕生
◎京急本線、横浜市営地下鉄ブルーライン、JR京浜東北線の3路線2駅利用可能
◎各棟収納豊富で使い勝手の良い間取りも魅力
◎陽光が降りそそぎ、開放感のある勾配天井のリビング、主寝室はゆとりの約6.8帖、2階居室約6.3帖も陽光降りそそぐ勾配天井仕様
所在地 |
神奈川県横浜市磯子区岡村2丁目 |
交通 |
京浜東北線「根岸」駅 バス12分 「古泉(バス)」 停歩2分 |
|---|---|---|---|
築年数/階数 |
予定 / 2階建 |
販売価格
間取り
建物面積
土地面積
マイページ
詳細
新築一戸建
杉田4丁目新築戸建
新築一戸建
セールスポイント
▼▽▼完成済 内覧可能▼▽▼
「杉田」駅徒歩5分の好立地!!!
所在地 |
神奈川県横浜市磯子区杉田4丁目 |
交通 |
京急本線「杉田」駅 徒歩5分 |
|---|---|---|---|
築年数/階数 |
新築 / 2階建 |
販売価格
間取り
建物面積
土地面積
マイページ
詳細
新築一戸建
洋光台3丁目 新築分譲住宅
新築一戸建
セールスポイント
JR根岸線「洋光台」駅徒歩9分の好立地。土地約157㎡のゆとりある敷地にカースペース2台分を確保した新築戸建です。LDK約15.5帖の開放的な空間に加え、ウォークインクローゼットや各居室収納付きで使い勝手の良い4LDK。第一種低層住居専用地域の落ち着いた住環境も魅力です。徒歩圏にスーパー・公園もあり生活利便性も良好。
所在地 |
神奈川県横浜市磯子区洋光台3丁目 |
交通 |
京浜東北線「洋光台」駅 徒歩9分 |
|---|---|---|---|
築年数/階数 |
予定 / 2階建 |
販売価格
間取り
建物面積
土地面積
マイページ
詳細
新築一戸建
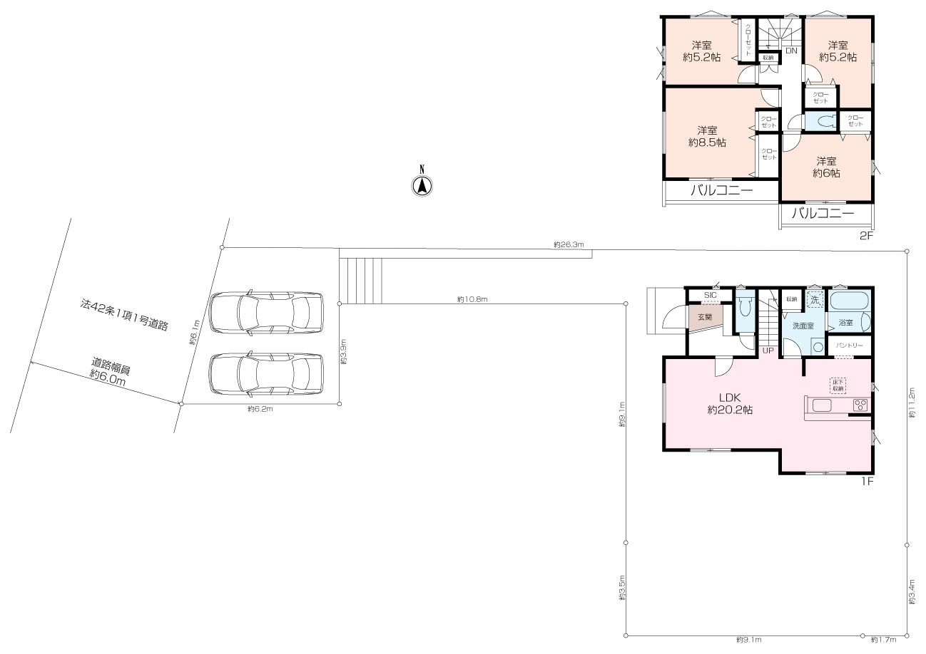
FIT-ACE 洋光台2号棟
新築一戸建
セールスポイント
・新築2026年2月完成!フレッシュな暮らしが始まる家
・家族みんなでくつろげる、広々20.2帖のLDK
・隣棟間ありで陽光たっぷり。明るく開放的な住まい
所在地 |
神奈川県横浜市磯子区洋光台1丁目 |
交通 |
京浜東北線「洋光台」駅 徒歩14分 |
|---|---|---|---|
築年数/階数 |
新築 / 2階建 |
販売価格
間取り
建物面積
土地面積
マイページ
詳細
中古一戸建
磯子区杉田9丁目中古戸建
中古一戸建
セールスポイント
陽当たり良好×ガーデニングが楽しめる南庭×遊び心溢れる階段下スペース!
所在地 |
神奈川県横浜市磯子区杉田9丁目 |
建物面積 |
127.71㎡ |
||
|---|---|---|---|---|---|
販売価格 |
3999万円 |
築年数 |
築32年 |
間取り |
4LDK |
交通 |
京急本線「京急富岡」駅 徒歩18分 |
||||
新築一戸建
FIT ACE 洋光台1号棟
新築一戸建
セールスポイント
・新築2026年2月完成!フレッシュな暮らしが始まる家
・芝生の庭付きで、のんびり過ごせる戸建
・家族みんなでくつろげる、広々20.2帖のLDK
・隣棟間ありで陽光たっぷり。明るく開放的な住まい
所在地 |
神奈川県横浜市磯子区洋光台1丁目 |
交通 |
京浜東北線「洋光台」駅 徒歩14分 |
|---|---|---|---|
築年数/階数 |
新築 / 2階建 |
販売価格
間取り
建物面積
土地面積
マイページ
詳細
新築一戸建
森が丘2丁目新築戸建
新築一戸建
セールスポイント
【ひな壇の為、日当たり・眺望良好な戸建住宅】
◇設備充実のお家です!
◇港南中央駅まで15分の好立地!
◇周辺にスーパー・コンビニなど生活利便性良好です!!
所在地 |
神奈川県横浜市磯子区森が丘2丁目18-7 |
交通 |
ブルーライン「港南中央」駅 徒歩15分 |
|---|---|---|---|
築年数/階数 |
新築 / 2階建 |
販売価格
間取り
建物面積
土地面積
マイページ
詳細
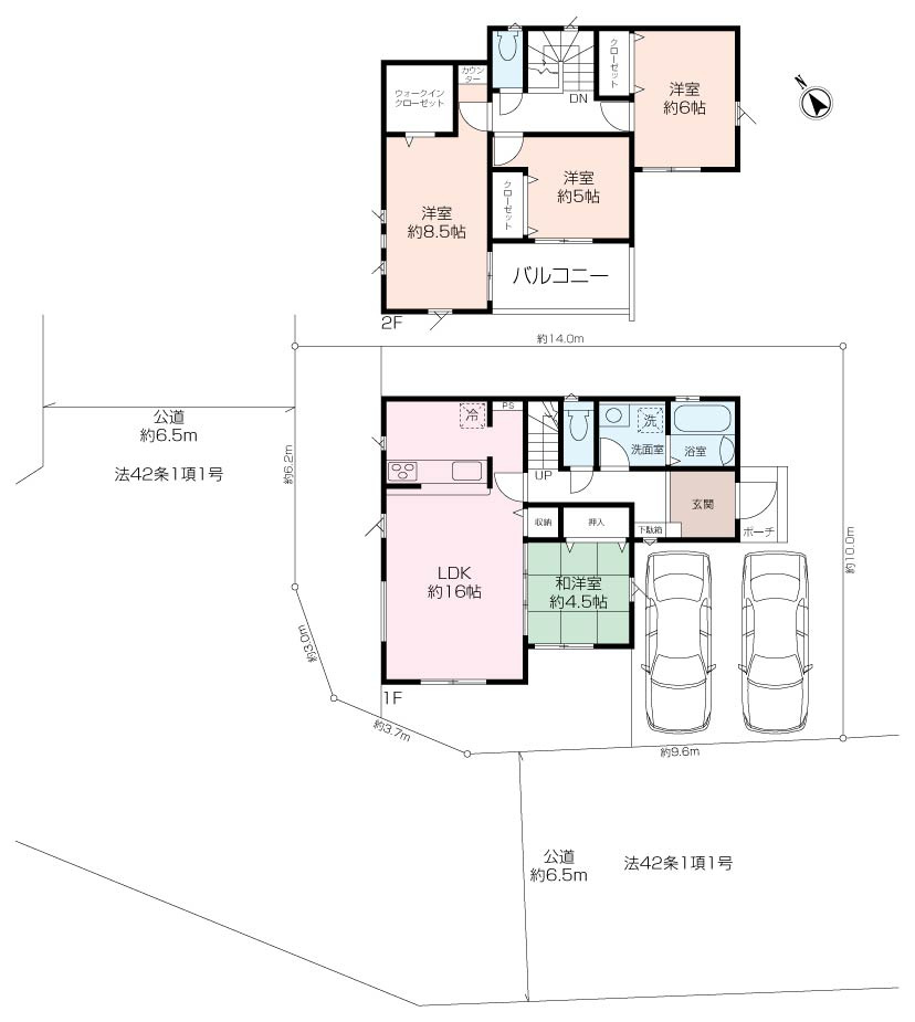
中古一戸建
岡村3丁目未入居戸建
中古一戸建
セールスポイント
【インナーガレージ付き戸建住宅】
◇コンセント収納スペースをしっかり確保!
◇岡村町駅バス停まで4分の好立地!
◇周辺にスーパー・コンビニなど生活利便性良好です!!
所在地 |
神奈川県横浜市磯子区岡村3丁目 |
建物面積 |
84.66㎡ |
||
|---|---|---|---|---|---|
販売価格 |
3250万円 |
築年数 |
築2年 |
間取り |
3DK |
交通 |
京浜東北線「根岸」駅 徒歩29分 |
||||
中古一戸建
磯子区森2丁目中古戸建
中古一戸建
セールスポイント
【全居室南向きで日当たり良好な戸建住宅です】
◇大人気のリフォーム済み!
◇「屏風浦」駅まで6分の好立地!
◇周辺にスーパー・コンビニなど生活利便性良好です!!
所在地 |
神奈川県横浜市磯子区森2丁目 |
建物面積 |
86.11㎡ |
||
|---|---|---|---|---|---|
販売価格 |
4780万円 |
築年数 |
築19年 |
間取り |
3LDK |
交通 |
京急本線「屏風浦」駅 徒歩6分 |
||||
新築一戸建
森6丁目新築戸建2号棟
新築一戸建
セールスポイント
◆2路線3駅利用可能な好立地に新築分譲戸建て2棟が誕生
◆京急本線「屏風ヶ浦」駅徒歩10分
◆大切なお車を雨から守るビルトイン地下車庫
◆閑静な住宅街で住環境良好!公園も近く子育て環境の整った立地
所在地 |
神奈川県横浜市磯子区森6丁目 |
交通 |
京急本線「屏風浦」駅 徒歩10分 |
|---|---|---|---|
築年数/階数 |
予定 / 2階建 |
販売価格
間取り
建物面積
土地面積
マイページ
詳細
新築一戸建
森6丁目新築戸建1号棟
新築一戸建
セールスポイント
◆2路線3駅利用可能な好立地に新築分譲戸建て2棟が誕生
◆京急本線「屏風ヶ浦」駅徒歩10分
◆大切なお車を雨から守るビルトイン地下車庫
◆閑静な住宅街で住環境良好!公園も近く子育て環境の整った立地
所在地 |
神奈川県横浜市磯子区森6丁目 |
交通 |
京急本線「屏風浦」駅 徒歩10分 |
|---|---|---|---|
築年数/階数 |
予定 / 2階建 |
販売価格
間取り
建物面積
土地面積
マイページ
詳細
中古一戸建
森が丘1丁目中古戸建
中古一戸建
セールスポイント
【磯子区森が丘の中古戸建】
◆ターミナル駅「上大岡」駅徒歩15分の立地
◆住み心地のよい3LDKの間取り
◆あたたかな陽光差し込む南向き
◆2階からは富士山が望めます(天候による)
◆閑静な住宅街につき住環境良好です
所在地 |
神奈川県横浜市磯子区森が丘1丁目 |
建物面積 |
70.84㎡ |
||
|---|---|---|---|---|---|
販売価格 |
3480万円 |
築年数 |
築29年 |
間取り |
3LDK |
交通 |
京急本線「上大岡」駅 徒歩15分 |
||||
新築一戸建
横浜市杉田8期1棟
新築一戸建
セールスポイント
◇室内完成済みのため内覧可能です!
◇角地につき陽当り良好!
◇駐車場2台駐車可能!
◇是非一度お問い合わせください!
所在地 |
神奈川県横浜市磯子区杉田8丁目 |
交通 |
京急本線「杉田」駅 徒歩21分 |
|---|---|---|---|
築年数/階数 |
新築 / 2階建 |
販売価格
間取り
建物面積
土地面積
マイページ
詳細
新築一戸建
洋光台6丁目新築戸建
新築一戸建
セールスポイント
磯子区洋光台の閑静な住宅街に設備充実、開放感が魅力の邸宅登場
所在地 |
神奈川県横浜市磯子区洋光台6丁目 |
交通 |
京浜東北線「洋光台」駅 徒歩13分 |
|---|---|---|---|
築年数/階数 |
新築 / 2階建 |
販売価格
間取り
建物面積
土地面積
マイページ
詳細
新築一戸建
磯子区岡村二丁目新築戸建
新築一戸建
セールスポイント
◆徒歩圏内にスーパー、コンビニ、小学校など、生活生活利便性良好!
所在地 |
神奈川県横浜市磯子区岡村2丁目 |
交通 |
ブルーライン「弘明寺」駅 徒歩20分 |
|---|---|---|---|
築年数/階数 |
新築 / 2階建 |
販売価格
間取り
建物面積
土地面積
マイページ
詳細
新築一戸建
磯子区田中2丁目新築戸建
新築一戸建
セールスポイント
【最終1棟!!】
高気密・高断熱と充実の設備で省エネ・耐久性・静音性優れた快適な暮らしを実現!
所在地 |
神奈川県横浜市磯子区田中2丁目 |
交通 |
京浜東北線「洋光台」駅 徒歩8分 |
|---|---|---|---|
築年数/階数 |
新築 / 2階建 |
販売価格
間取り
建物面積
土地面積
マイページ
詳細
チェックした物件を
該当物件22件 1〜22件表示
近くの市区町村から探す
同じエリアにある駅から探す
特集から探す
- 横浜市磯子区の日当たり良好な一戸建て
- 横浜市磯子区のファミリー向け一戸建て
- 横浜市磯子区の築浅一戸建て
- 横浜市磯子区の駅徒歩10分以内の一戸建て
- 横浜市磯子区の南向き・南道路の一戸建て
- 横浜市磯子区のLDK15畳以上の一戸建て
- 横浜市磯子区のリフォーム・リノベーション済一戸建て
- 横浜市磯子区の海が見える一戸建て
- 横浜市磯子区の庭付き一戸建て
横浜市磯子区の不動産を別の種別から探す










































































































































































































































































































































































































































































































































































































































































































































































































































































































































