横浜市神奈川区の一戸建て物件(新築・中古・建売)購入情報
「横浜市神奈川区」で11件の一戸建てが見つかりました。
横浜市神奈川区の一戸建て・分譲住宅情報を、新築から中古まで幅広くご紹介した戸建ての総合ページです。横浜市神奈川区でマイホームをお探しの方に、 最新の設備と安心が魅力の新築、住みたい街で理想の環境や条件から選べる中古、それぞれの特徴を比較しながらご検討いただけます。横浜市神奈川区で戸建て住宅をお探しの方はウスイホームにお任せください。地域に根差したウスイホームが、豊富な選択肢から納得のいく住まい選びを全力でお手伝いします。
該当物件11件
×
中古一戸建
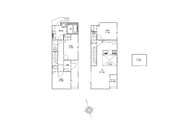
神奈川区三枚町中古戸建
中古一戸建
セールスポイント
\\安心の鉄筋コンクリート造戸建住宅です!//
◆敷地内カースペース3台分あります(車種要確認)!
◆25年6月に外壁保護塗装、給湯機等新品交換しました!
(その他箇所ぜひお問合せください!)
◆25年9月には浴室新品交換済みで気持ちよく新生活をスタートいただけます。
◆リビング横には約3.4帖の納戸があり、ストック品等の収納に便利です!
ぜひお気軽にウスイホーム新横浜店までお問合せください!
所在地 |
神奈川県横浜市神奈川区三枚町13-1 |
建物面積 |
100.69㎡ |
||
|---|---|---|---|---|---|
販売価格 |
6280万円 |
築年数 |
築12年 |
間取り |
3LDK |
交通 |
ブルーライン「片倉町」駅 徒歩13分 |
||||
新築一戸建
神奈川区白幡西町新築戸建
新築一戸建
セールスポイント
【トレンド住宅設備付きで毎日快適生活】
◇暮らしやすい2階リビング!
◇東白楽駅まで6分の好立地!
◇周辺にスーパー・コンビニ・小学校など生活利便性良好です!!
所在地 |
神奈川県横浜市神奈川区白幡西町 |
交通 |
東急東横線「東白楽」駅 徒歩6分 |
|---|---|---|---|
築年数/階数 |
新築 / 2階建 |
販売価格
間取り
建物面積
土地面積
マイページ
詳細
新築一戸建
神奈川区菅田町 全3棟
新築一戸建
セールスポイント
【勾配天井のLDKは15帖の広々な空間!家族での時間が楽しめます】
◇大人気の家事楽設備が豊富に完備!
◇菅田町バス停まで1分の好立地!
◇周辺にスーパー・コンビニ・小学校など生活利便性良好です!!
所在地 |
神奈川県横浜市神奈川区菅田町 |
交通 |
横浜線「鴨居」駅 徒歩16分 |
|---|---|---|---|
築年数/階数 |
新築 / 2階建 |
販売価格
間取り
建物面積
土地面積
マイページ
詳細
新築一戸建
ベルガーデン三ツ沢南町第三期
新築一戸建
セールスポイント
ベルガーデン三ツ沢南町第3期全4棟(最終1棟)
◎各棟敷地面積31坪以上、カースペース2台分のゆとりある佇まい
◎住宅ローン減税などの税制優遇のある『ZEH水準省エネ住宅』仕様
◎三ツ沢下町駅・三ツ沢上町駅まで徒歩8分の好立地。横浜中心部・都心へのアクセス良好
◎三ツ沢小学校、三ツ沢幼稚園、公園まで徒歩3分で子育て環境良好の整った立地
所在地 |
神奈川県横浜市神奈川区三ツ沢南町 |
交通 |
ブルーライン「三ツ沢下町」駅 徒歩8分 |
|---|---|---|---|
築年数/階数 |
予定 / 2階建 |
販売価格
間取り
建物面積
土地面積
マイページ
詳細
中古一戸建
松見町2丁目中古戸建
中古一戸建
セールスポイント
【オール電化3LDKの戸建住宅】
◇大人気のリノベマンション!
◇大口駅まで12分の好立地!
◇周辺にスーパー・コンビニなど生活利便性良好です!!
所在地 |
神奈川県横浜市神奈川区松見町2丁目13-5 |
建物面積 |
81.4㎡ |
||
|---|---|---|---|---|---|
販売価格 |
3980万円 |
築年数 |
築26年 |
間取り |
3LDK |
交通 |
横浜線「大口」駅 徒歩12分 |
||||
新築一戸建
神之木台新築戸建て
新築一戸建
セールスポイント
【南西向きのLDKとルーフバルコニーで日当たり良好☀】
◇家事時短な豊富な設備が詰まった新築戸建!
◇JP横浜線 大口駅まで12分!
◇周辺にスーパー・コンビニ・小学校など生活利便性良好です!!
所在地 |
神奈川県横浜市神奈川区神之木台 |
交通 |
横浜線「大口」駅 徒歩12分 |
|---|---|---|---|
築年数/階数 |
新築 / 2階建 |
販売価格
間取り
建物面積
土地面積
マイページ
詳細
新築一戸建
斎藤分町新築戸建て
新築一戸建
セールスポイント
【SIC WIC、パントリー・納戸付4LDK!】
◇駐車スペース2台可(車種による)
◇東白楽駅まで12分!
◇周辺にスーパー・コンビニなど生活利便性良好です!!
所在地 |
神奈川県横浜市神奈川区斎藤分町 |
交通 |
東急東横線「東白楽」駅 徒歩12分 |
|---|---|---|---|
築年数/階数 |
新築 / 2階建 |
販売価格
間取り
建物面積
土地面積
マイページ
詳細
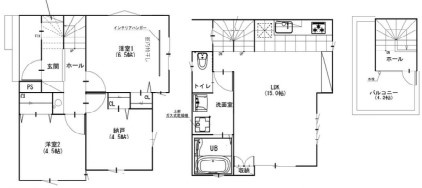
セールスポイント
■JR線・東急東横線2沿線2駅利用可能!
■内・外壁リフォーム物件!
■南向きで日当たり良好!
所在地 |
神奈川県横浜市神奈川区松見町2丁目 |
建物面積 |
81.4㎡ |
||
|---|---|---|---|---|---|
販売価格 |
3980万円 |
築年数 |
築26年 |
間取り |
3LDK |
交通 |
横浜線「大口」駅 徒歩12分 |
||||
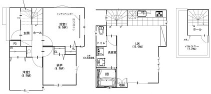
セールスポイント
□大和ハウス施工、軽量鉄骨造の中古戸建のご紹介です。
□羽沢横浜国大駅まで徒歩9分、フラットな道のりです。
□渋谷方面や都内へのアクセスも良好です。
□地下車庫有
□詳細はお気軽にお問合せ下さい♪
所在地 |
神奈川県横浜市神奈川区羽沢南2丁目21-1 |
建物面積 |
86.1㎡ |
||
|---|---|---|---|---|---|
販売価格 |
4180万円 |
築年数 |
築28年 |
間取り |
3LDK |
交通 |
相模鉄道相鉄新横浜「羽沢横浜国大」駅 徒歩9分 |
||||
該当物件11件 1〜11件表示
横浜市神奈川区周辺の情報
横浜市神奈川区の戸建て販売情報でよくある質問
横浜市神奈川区周辺の店舗情報
近くの市区町村から探す
同じエリアにある駅から探す
特集から探す
- 横浜市神奈川区の日当たり良好な一戸建て
- 横浜市神奈川区のファミリー向け一戸建て
- 横浜市神奈川区の築浅一戸建て
- 横浜市神奈川区の駅徒歩10分以内の一戸建て
- 横浜市神奈川区の南向き・南道路の一戸建て
- 横浜市神奈川区のLDK15畳以上の一戸建て
- 横浜市神奈川区のリフォーム・リノベーション済一戸建て
- 横浜市神奈川区の海が見える一戸建て
- 横浜市神奈川区の庭付き一戸建て
横浜市神奈川区の不動産を別の種別から探す
































































































































































































































































































































