逗子・葉山駅の一戸建て物件(新築・中古・建売)一覧
「逗子・葉山駅」で14件の一戸建てが見つかりました。
逗子・葉山駅の一戸建て・分譲住宅情報を、新築から中古まで幅広くご紹介した総合ページです。逗子・葉山駅で戸建て住宅をお探しの方はウスイホームにお任せください。
該当物件14件
×
中古一戸建
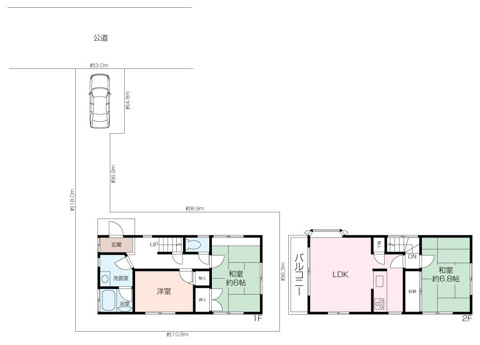
*こだわりの詰まった注文住宅*葉山町長柄中古戸建
中古一戸建
セールスポイント
●内装はドライウォール、ビニールクロスなどを使用した注文住宅!
●吹き抜けの2階LDKとなり、明るく、とても開放的な間取りとなっております。
●逗子・葉山駅、逗子駅までも平坦かつ徒歩圏内立地、静かな環境で生活環境も良好!
●南向きのデッキバルコニーは遮るものも無く、陽当り、風通しも良好!
●全居室に収納スペースを完備、そして屋根裏のスペースも約12.7帖確保しております!
所在地 |
神奈川県三浦郡葉山町長柄 |
建物面積 |
99.36㎡ |
||
|---|---|---|---|---|---|
販売価格 |
5580万円 |
築年数 |
築15年 |
間取り |
4LDK |
交通 |
京急逗子線「逗子・葉山」駅 徒歩23分 |
||||
中古一戸建
*逗子市の静かな住宅地*小坪1丁目中古戸建
中古一戸建
セールスポイント
◎逗子市小坪の「亀ヶ岡団地内」にある閑静な住宅地
◎新規内外装フルリフォーム済みの中古戸建になります。
◎南向きのLDKで、ご家族皆様で暖かくお過ごしいただけます。
◎カースペースもあり、お車をお持ちの方でも安心です。
◎換気乾燥暖房機付き浴室や食洗器付きのキッチン等、嬉しい設備も充実しております。
所在地 |
神奈川県逗子市小坪1丁目 |
建物面積 |
80.28㎡ |
||
|---|---|---|---|---|---|
販売価格 |
2997万円 |
築年数 |
築21年 |
間取り |
4LDK |
交通 |
横須賀線「逗子」駅 徒歩25分 |
||||
中古一戸建
~大型7LDK~沼間2丁目中古戸建
中古一戸建
セールスポイント
【東逗子駅から徒歩5分・カーポート付き7LDK戸建】
◆JR横須賀線「東逗子駅」から徒歩5分の間取り
◆7LDKの大型の間取り。ロフトもついています。
◆約49坪のゆとりある敷地
◆全居室収納つき、収納豊富な間取り
◆2階にもキッチン・浴室・トイレがあり2世帯住宅としてのご検討可能な物件です。
◆スーパー、公園近く住環境良好
※敷地の大半が「土砂災害特別警戒区域」に指定されております。
所在地 |
神奈川県逗子市沼間2丁目 |
建物面積 |
150.27㎡ |
||
|---|---|---|---|---|---|
販売価格 |
3980万円 |
築年数 |
築19年 |
間取り |
7LDK |
交通 |
横須賀線「東逗子」駅 徒歩5分 |
||||
中古一戸建
*2世帯住宅仕様の注文住宅*葉山町長柄中古戸建
中古一戸建
セールスポイント
◎平成9年築のこだわりの詰まった注文住宅施工(2世帯住宅仕様)
◎長柄交差点付近で、「駅まで平坦」「森戸海岸まで徒歩約14分」の立地
◎「敷地面積は約76坪以上」と、お車も2台並列で駐車可能です。
◎令和7年に賃料約20万円でベース賃貸履歴もございます。
◎建売用地・投資用としてもご検討いただけます。
◎葉山の自然を感じられる、そんな環境が整っております。
所在地 |
神奈川県三浦郡葉山町長柄 |
建物面積 |
150.29㎡ |
||
|---|---|---|---|---|---|
販売価格 |
6880万円 |
築年数 |
築28年 |
間取り |
5LDK |
交通 |
京急逗子線「逗子・葉山」駅 徒歩33分 |
||||
中古一戸建
逗子6丁目 戸建住宅
中古一戸建
セールスポイント
~生活利便性×海を感じる暮らし~
●逗子・葉山駅まで平坦徒歩5分の立地!
●敷地面積95坪、建坪57坪とゆったりとした空間が印象的な大型住宅。
徒歩10分圏内には、スーパー、コンビニ、小学校などがあり
県道24号線より一本裏通りに入っているため人混みも無く
生活利便性を求めながら、のんびりと暮らしたい方へお勧めな立地
建物はリフォームしてそのまま利用や建て替え用地としてご検討頂いても良いですね。
所在地 |
神奈川県逗子市逗子6丁目 |
建物面積 |
190.04㎡ |
||
|---|---|---|---|---|---|
販売価格 |
1億5300万円 |
築年数 |
築46年 |
間取り |
7DK |
交通 |
京急逗子線「逗子・葉山」駅 徒歩5分 |
||||
中古一戸建
葉山町一色(一色ひかげ通り) 再生住宅
中古一戸建
セールスポイント
~葉山町一色(一色ひかげ通り)の再生住宅~
●生活利便性×風情を感じる周辺環境
●周辺にはスーパーや小学校、バス停があり、便利な立地
今回の一軒は、一色海岸や大峰山などの自然を身近に感じられるだけでなく
飲食店や品揃えの良いスーパー、小学校、役場、郵便局などが
近隣にあり「生活利便性」もお勧めです。
建物は、新規内外装フルリフォーム済みの再生住宅。
防蟻処理なども施しており安心の保証付きです。
所在地 |
神奈川県三浦郡葉山町一色636-10 |
建物面積 |
80.34㎡ |
||
|---|---|---|---|---|---|
販売価格 |
4297万円 |
築年数 |
築28年 |
間取り |
3LDK |
交通 |
京急逗子線「逗子・葉山」駅 バス14分 「一色住宅」 停歩5分 |
||||
中古一戸建
秋谷1丁目中古戸建(こだわりの注文建築)
中古一戸建
セールスポイント
秋谷1丁目の中古戸建、リビングの窓、ルーフテラスから相模湾を望む事ができます。秋谷海岸まで徒歩約5分以内の立地、きらきら公園まで徒歩約1分の立地。毎日海を近くに感じながら優雅なひとときを満喫できます。
1階にはアトリエスペース、リモートワークスペースがございます。居住用として、セカンドハウスとしてもおすすめです。竹内 申一氏設計のこだわりの平成24年築注文住宅。1階、中2階、2階、ルーフテラス有り
所在地 |
神奈川県横須賀市秋谷1丁目 |
建物面積 |
94.02㎡ |
||
|---|---|---|---|---|---|
販売価格 |
2950万円 |
築年数 |
築13年 |
間取り |
1LDK+1S(納戸) |
交通 |
京急逗子線「逗子・葉山」駅 バス17分 「秋谷」 停歩7分 |
||||
セールスポイント
◎逗子市桜山の閑静な住宅地に位置する中古戸建
◎嬉しい15帖のウッドデッキ付き
◎室内リフォームも完了しました!
◎7.8帖のロフト付きで、収納スペースも全居室に完備しております
◎約20帖のLDK!ゆとりのある間取りとなっております。
所在地 |
神奈川県逗子市桜山5丁目 |
建物面積 |
102.26㎡ |
||
|---|---|---|---|---|---|
販売価格 |
3298万円 |
築年数 |
築15年 |
間取り |
3LDK |
交通 |
横須賀線「東逗子」駅 徒歩19分 |
||||
中古一戸建
葉山町堀内(つつじヶ丘分譲地)戸建
中古一戸建
セールスポイント
~生活利便×自然を感じる「つつじヶ丘分譲地内」~
森戸海岸まで約1.2km、また徒歩10分圏内には小学校、役場、スーパーなど
生活利便性も良好な為、ファミリー層に特にお勧めできる立地です。
建物は、3LDKで豊富な収納スペースもポイント。
室内の状態も良好で、外壁は約5年前に塗装済みです。
そしてリビングから眺める景色は「空と山、、、風情を感じられる街並み」
是非ご覧頂きたい一軒です。
所在地 |
神奈川県三浦郡葉山町堀内 |
建物面積 |
70.54㎡ |
||
|---|---|---|---|---|---|
販売価格 |
2980万円 |
築年数 |
築29年 |
間取り |
3LDK |
交通 |
京急逗子線「逗子・葉山」駅 バス6分 「向原」 停歩4分 |
||||
新築一戸建
桜山5丁目 新築戸建(1号棟)
新築一戸建
セールスポイント
●駅まで平坦徒歩5分の立地!
●充実した収納スペースでゆとりある空間演出。
周辺にはスーパー、コンビニ、小学校などがあります。
県道24号線より一本裏通りに入っているため人混みも無く
生活利便性を求めながら、のんびりと暮らしたい方へお勧めな立地。
建物は4LDKと収納スペースを多く取り入れた設計。
性能にも拘り環境&家計にも優しい「省エネ住宅」で長く住みやすいをコンセプトに設計いたしました。
所在地 |
神奈川県逗子市桜山5丁目 |
交通 |
横須賀線「東逗子」駅 徒歩5分 |
|---|---|---|---|
築年数/階数 |
新築 / 2階建 |
販売価格
間取り
建物面積
土地面積
マイページ
詳細
中古一戸建
佐島1丁目海見え建物2棟
中古一戸建
セールスポイント
2階建ての居宅と、3階建ての倉庫兼居宅セットになった建物2棟の物件。
3階建ての3階部分の部屋からは海を見ることが出来、陽当たりも大変良好です。
2棟の建物を2階の廊下で繋げており、以前は民宿として使っていた物件です。
道幅が狭く車は入れないのですが、道路との高低差は無いので、バイクや自転車進入可能です。
セカンドハウスや民宿用の建物として検討できる物件です。
所在地 |
神奈川県横須賀市佐島1丁目19-11 |
建物面積 |
112.35㎡ |
||
|---|---|---|---|---|---|
販売価格 |
800万円 |
築年数 |
築63年 |
間取り |
7LDK |
交通 |
横須賀線「逗子」駅 バス29分 「佐島1丁目」 停歩2分 |
||||
中古一戸建
葉山町長柄 店舗付邸宅
中古一戸建
セールスポイント
県道311号線沿いで海、駅までも平坦の立地で、高速道路も近く都市部へのアクセスも良く交通利便性も良好です。
建物は「環境デザイン研究所設計」の注文建築です。
壁一面の窓で自然の明るさと木々、空を身近に感じる開放的な設計。
住宅部分は、LDK30帖以上+4部屋そして豊富な収納もポイント。
店舗部分は、美容室や教室、飲食店、展示場など様々な用途が検討できそうな広さ・開放感があります。
所在地 |
神奈川県三浦郡葉山町長柄 |
建物面積 |
256.58㎡ |
||
|---|---|---|---|---|---|
販売価格 |
1億9800万円 |
築年数 |
築16年 |
間取り |
5LDK |
交通 |
京急逗子線「逗子・葉山」駅 徒歩22分 |
||||
セールスポイント
建物は、20帖のLDKそして各居室6帖以上と一部屋ごとのゆとりが印象的な住宅です。
リフォームをしても良し、建て替えても良し、お客様の創造が膨らみますね、
そしてガーデンスペースの開放感は、是非体感ください。
夜には星空、耳をすませば波の音が、、、
そして懐かしい港町のような落ち着いた住宅地。
そのような不動産をお求めの方へ是非ご覧頂きたい一軒です。
所在地 |
神奈川県横須賀市長井3丁目 |
建物面積 |
158.78㎡ |
||
|---|---|---|---|---|---|
販売価格 |
3280万円 |
築年数 |
築24年 |
間取り |
6LDK |
交通 |
京急久里浜線「三崎口」駅 バス12分 「仮屋ヶ崎」 停歩2分 |
||||
該当物件14件 1〜14件表示
逗子・葉山周辺の情報
逗子・葉山の戸建て販売情報でよくある質問
逗子・葉山周辺の店舗情報
近くの市区町村から探す
同じエリアにある駅から探す
特集から探す
- 逗子・葉山駅の日当たり良好な一戸建て
- 逗子・葉山駅のファミリー向け一戸建て
- 逗子・葉山駅の築浅一戸建て
- 逗子・葉山駅の駅徒歩10分以内の一戸建て
- 逗子・葉山駅の南向き・南道路の一戸建て
- 逗子・葉山駅のLDK15畳以上の一戸建て
- 逗子・葉山駅のリフォーム・リノベーション済一戸建て
- 逗子・葉山駅の海が見える一戸建て
- 逗子・葉山駅の庭付き一戸建て
逗子・葉山駅の不動産を別の種別から探す
































































































































































































































































































































































































































































































































































































































