ファミリー向け物件特集
三浦市のファミリー向け新築一戸建て(新築一軒家・新築分譲住宅)一覧
「三浦市」「ファミリー向け特集」で3件の新築一戸建てが見つかりました。
三浦市の新築戸建て物件をお探しの方に向けた新築戸建て専用ページです。最新の新築物件情報を豊富に掲載し、新築戸建ての特徴や魅力、購入時のポイントも解説しています。ウスイホームが理想の住まい探しをサポートします。
該当物件3件
×
チェックした物件を
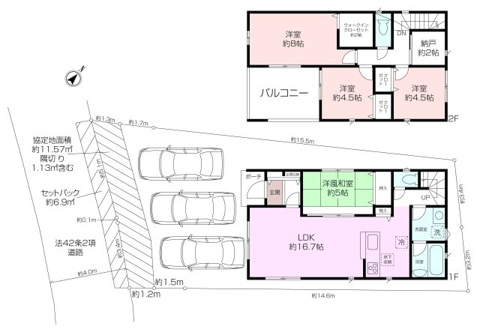
新築一戸建
南下浦町上宮田第5 全3棟
新築一戸建
セールスポイント
駅から平坦徒歩圏、海まで徒歩2分!
閑静な住環境にある新築戸建です。
ほっこりくつろげるタタミコーナーのある4LDK!
カースペースは並列2台分♪
所在地 |
神奈川県三浦市南下浦町上宮田562-1 |
交通 |
京急久里浜線「三浦海岸」駅 徒歩13分 |
|---|---|---|---|
築年数/階数 |
新築 / 2階建 |
販売価格
間取り
建物面積
土地面積
マイページ
詳細
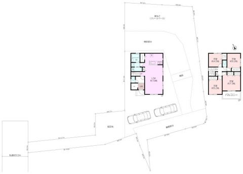
新築一戸建
三崎町諸磯新築分譲住宅
新築一戸建
セールスポイント
たっぷりと陽射しが降り注ぐ南ひな壇の南西向き!
敷地面積約127坪、広々した「多目的平場」付き!
S.I.Cやパントリー等豊富な収納を備えた4LDK新築戸建!
所在地 |
神奈川県三浦市三崎町諸磯 |
交通 |
京急久里浜線「三崎口」駅 バス17分 「屋志倉」 停歩5分 |
|---|---|---|---|
築年数/階数 |
新築 / 2階建 |
販売価格
間取り
建物面積
土地面積
マイページ
詳細
チェックした物件を
該当物件3件 1〜3件表示
三浦市周辺の情報
三浦市の新築戸建て販売情報でよくある質問
三浦市周辺の店舗情報
三浦市の新築戸建て販売情報でよくあるご質問
新築戸建てを購入するメリットとは?
最新設備が満載:最新の建材や設備が採用されているため、快適な暮らしを送ることができます。 住宅性能が高い:断熱性や気密性が高く、省エネで快適な住環境が期待できます。 構造が新しく、耐久性が高い:新しい構造のため、高い耐震性や建物の耐久性が高く、安心して暮らすことができます。
新築戸建てのデメリットは?
価格が高い:中古戸建てに比べて、初期費用が高額になる傾向があります。 建築期間がかかる:注文住宅の場合、建築期間が長くなることがあります。 建売住宅の場合、間取りやデザインの自由度が低い:建売住宅は、あらかじめ設計された間取りやデザインから選ぶことになります。 周辺環境がまだ整っていない場合がある:新興住宅地の場合、周辺の施設がまだ少ないことがあります。
新築戸建てを探すときのポイントは?
予算:まずは、購入可能な予算を明確にし、それに合った物件を探しましょう。 立地:通勤・通学の便や周辺環境、将来的な発展性などを考慮し、理想の立地を選びましょう。 間取り:家族構成やライフスタイルに合った間取りかどうかをしっかりと確認しましょう。 設備:必要な設備が揃っているか、また、将来的な設備の増設も考慮しましょう。
新築戸建てで人気の設備は?
オール電化: ガスを使わないため、安全性が高く、光熱費を抑えることができます。 床暖房: 足元から暖めるため、快適な室内環境を実現できます。 浴室乾燥機: 雨の日でも洗濯物が乾かせ、浴室をカビから守ります。 スマートホーム: スマホで家電を操作できるなど、便利な機能が満載です。
新築戸建てを購入したら、どれくらいの期間で住めるようになる?
契約から引き渡しまで:住宅ローンの手続きなどがあるため、お客様への物件の引き渡しは契約から約1ヶ月後が目安です。 引き渡しから引っ越しまで:物件の引き渡し後にはカーテンレールやエアコン設置のリフォームがあるため、引き渡しから引っ越しまで2週間程度は見ておきましょう。 (リフォーム内容によって変動します)
近くの市区町村から探す
同じエリアにある駅から探す
特集から探す
- 三浦市の日当たり良好な新築一戸建て
- 三浦市の駅徒歩10分以内の新築一戸建て
- 三浦市の南向き・南道路の新築一戸建て
- 三浦市のLDK15畳以上の新築一戸建て
- 三浦市の海が見える新築一戸建て
- 三浦市の庭付き新築一戸建て
三浦市の不動産を別の種別から探す

























































































































