藤沢市の新築一戸建て(新築一軒家・新築分譲住宅)一覧
「藤沢市」で69件の新築一戸建てが見つかりました。
藤沢市の新築戸建て物件をお探しの方に向けた新築戸建て専用ページです。最新の新築物件情報を豊富に掲載し、新築戸建ての特徴や魅力、購入時のポイントも解説しています。ウスイホームが理想の住まい探しをサポートします。
該当物件69件
×
チェックした物件を
セールスポイント
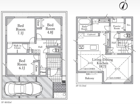
LD天井高約2.6mで広々とした空間!キッチンはお洒落な下がり天井を採用♪
所在地 |
神奈川県藤沢市西富2丁目 |
交通 |
東海道本線「藤沢」駅 徒歩19分 |
|---|---|---|---|
築年数/階数 |
予定 / 2階建 |
販売価格
間取り
建物面積
土地面積
マイページ
詳細
NEW 新築一戸建
南西角地!【広々4LDK】 大庭新築戸建 限定1棟
新築一戸建
セールスポイント
大庭新築分譲戸建 最終1棟 耐震等級【最 高 等 級 取 得】南西角地の開放感のある好立地です!
◎ファミリーに嬉しい4LDK◎南向きバルコニーでお家が明るく照らされるこの場所で、落ち着いたご家族の時間をご提供いたします。
~快適な暮らしを実現する最終1棟~
◎前面道路6mで圧迫感の無い立地です。
◎カースペース2台分+ご家族の自転車を置くスペースもございます。
◎近隣に公園やスーパー学校も充実
所在地 |
神奈川県藤沢市大庭5428-11 |
交通 |
小田急江ノ島線「湘南台」駅 バス9分 「弁天前(藤沢市)」 停歩4分 |
|---|---|---|---|
築年数/階数 |
新築 / 2階建 |
販売価格
間取り
建物面積
土地面積
マイページ
詳細
セールスポイント
海・駅・スーパー・コンビニ・学校まで徒歩圏内!
床暖房完備、吹抜けやロフト付きの設備充実物件です♪
所在地 |
神奈川県藤沢市鵠沼海岸6丁目 |
交通 |
小田急江ノ島線「鵠沼海岸」駅 徒歩13分 |
|---|---|---|---|
築年数/階数 |
新築 / 2階建 |
販売価格
間取り
建物面積
土地面積
マイページ
詳細
NEW 新築一戸建
Vergarden藤沢市立石
新築一戸建
セールスポイント
~Vergarden藤沢市立石~
◎敷地内カースペース2台分有り(車種による)
◎東側が抜けており眺望良好!
◎設備充実の新築戸建
所在地 |
神奈川県藤沢市立石1丁目 |
交通 |
小田急江ノ島線「善行」駅 徒歩13分 |
|---|---|---|---|
築年数/階数 |
新築 / 2階建 |
販売価格
間取り
建物面積
土地面積
マイページ
詳細
新築一戸建
\完成済/ 即日内見可能!藤沢市善行坂 新築戸建
新築一戸建
セールスポイント
\8月末完成/ 即日内見可能 当日予約可能【詳細ボタン】クリック !
所在地 |
神奈川県藤沢市善行坂2丁目9-10 |
交通 |
小田急江ノ島線「善行」駅 徒歩13分 |
|---|---|---|---|
築年数/階数 |
新築 / 2階建 |
販売価格
間取り
建物面積
土地面積
マイページ
詳細
新築一戸建
藤沢市羽鳥1期 新築戸建 全2棟
新築一戸建
セールスポイント
\辻堂駅 徒歩18分/現地ご案内可能 藤沢市羽鳥1期 新築戸建
所在地 |
神奈川県藤沢市羽鳥2丁目 |
交通 |
東海道本線「辻堂」駅 徒歩18分 |
|---|---|---|---|
築年数/階数 |
新築 / 2階建 |
販売価格
間取り
建物面積
土地面積
マイページ
詳細
新築一戸建
藤沢市善行1期 新築戸建 全3棟
新築一戸建
セールスポイント
●全3棟の新築戸建●善行駅徒歩9分!カースペース2台*11月完成予定
所在地 |
神奈川県藤沢市善行6丁目5-12 |
交通 |
小田急江ノ島線「善行」駅 徒歩9分 |
|---|---|---|---|
築年数/階数 |
新築 / 2階建 |
販売価格
間取り
建物面積
土地面積
マイページ
詳細
新築一戸建
藤沢市亀井野の新築一戸建
新築一戸建
セールスポイント
【早期成約キャンペーン対象物件】詳細はウスイホーム辻堂店までお問合せ下さい
所在地 |
神奈川県藤沢市亀井野1053-15 |
交通 |
小田急江ノ島線「六会日大前」駅 徒歩5分 |
|---|---|---|---|
築年数/階数 |
予定 / 2階建 |
販売価格
間取り
建物面積
土地面積
マイページ
詳細
新築一戸建
藤沢市鵠沼桜が岡1丁目の新築一戸建
新築一戸建
セールスポイント
【早期成約キャンペーン対象物件】こだわりつまった湘南品質の家!当日見学可能
所在地 |
神奈川県藤沢市鵠沼桜が岡1丁目 |
交通 |
江ノ島電鉄「柳小路」駅 徒歩7分 |
|---|---|---|---|
築年数/階数 |
新築 / 2階建 |
販売価格
間取り
建物面積
土地面積
マイページ
詳細
新築一戸建
藤沢市善行1丁目戸建
新築一戸建
セールスポイント
◆建物完成済み!内見可能です。
お気軽にお問合せ下さい。
◆充実した設備搭載で過ごしやすい環境
◆カースペース1台あり
所在地 |
神奈川県藤沢市善行1丁目 |
交通 |
小田急江ノ島線「善行」駅 徒歩7分 |
|---|---|---|---|
築年数/階数 |
新築 / 2階建 |
販売価格
間取り
建物面積
土地面積
マイページ
詳細
新築一戸建
本鵠沼3丁目新築戸建
新築一戸建
セールスポイント
【人気の駅近新築戸建!】
◇本鵠沼駅まで徒歩6分の好立地!
◇備蓄倉庫・ロフト付き!収納設備充実!
◇周辺にスーパー・コンビニ・小学校など生活利便性良好です!
所在地 |
神奈川県藤沢市本鵠沼3丁目 |
交通 |
小田急江ノ島線「本鵠沼」駅 徒歩6分 |
|---|---|---|---|
築年数/階数 |
新築 / 2階建 |
販売価格
間取り
建物面積
土地面積
マイページ
詳細
NEW 新築一戸建
藤沢市下土棚新築戸建
新築一戸建
セールスポイント
~藤沢市下土棚新築戸建~
◎小田急江ノ島線「長後」駅 徒歩8分
◎2025年3月完成の新築戸建物件
◎2LDK+ロフトのコンパクトな間取り
◎使い勝手に優れ、設備充実
所在地 |
神奈川県藤沢市下土棚373-7 |
交通 |
小田急江ノ島線「長後」駅 徒歩8分 |
|---|---|---|---|
築年数/階数 |
新築 / 2階建 |
販売価格
間取り
建物面積
土地面積
マイページ
詳細
新築一戸建
鵠沼海岸3丁目新築戸建
新築一戸建
セールスポイント
【小田急江ノ島線「鵠沼海岸」駅まで徒歩9分!】
◇海が身近にある生活を実現!
◇人気のロフト付き!
◇周辺にスーパー・コンビニ・小学校など生活利便性良好です!
所在地 |
神奈川県藤沢市鵠沼海岸3丁目 |
交通 |
小田急江ノ島線「鵠沼海岸」駅 徒歩9分 |
|---|---|---|---|
築年数/階数 |
新築 / 2階建 |
販売価格
間取り
建物面積
土地面積
マイページ
詳細
NEW 新築一戸建
藤沢市亀井野4丁目新築戸建
新築一戸建
セールスポイント
【人気の藤沢エリア!落ち着いた住環境に新築分譲住宅登場!!】
所在地 |
神奈川県藤沢市亀井野4丁目 |
交通 |
小田急江ノ島線「六会日大前」駅 徒歩10分 |
|---|---|---|---|
築年数/階数 |
新築 / 2階建 |
販売価格
間取り
建物面積
土地面積
マイページ
詳細
NEW 新築一戸建
藤沢市高倉新築戸建
新築一戸建
セールスポイント
【小田急江ノ島線 「長後駅」まで 徒歩14分の好立地♪】
◇大型浴室TVでゆったり癒しの時間を☆
◇収納設備充実!
◇周辺にスーパー・コンビニなど生活利便性良好です!
所在地 |
神奈川県藤沢市高倉 |
交通 |
小田急江ノ島線「長後」駅 徒歩14分 |
|---|---|---|---|
築年数/階数 |
予定 / 2階建 |
販売価格
間取り
建物面積
土地面積
マイページ
詳細
NEW 新築一戸建
藤沢市石川新築戸建 全3棟
新築一戸建
セールスポイント
【暮らしを豊かにする充実の設備!藤沢市石川全3棟!】
◇小田急江ノ島線「湘南台」バス17分「石川橋」歩6分
◇全居室収納完備!パントリーやSIC、WICなど収納豊富!
◇南向きで陽当たり良好の4LDK♪
所在地 |
神奈川県藤沢市石川 |
交通 |
小田急江ノ島線「六会日大前」駅 バス4分 「5号西」 停歩6分 |
|---|---|---|---|
築年数/階数 |
新築 / 2階建 |
販売価格
間取り
建物面積
土地面積
マイページ
詳細
新築一戸建
VerGarden辻堂東海岸 全3棟
新築一戸建
セールスポイント
\\6月毎週土・日現地販売会実施//
*内装・設計にこだわったデザイナーズ戸建
*全棟2階リビング・勾配天井の開放感ある間取り
*ZEH水準省エネ住宅(住宅ローン控除・贈与税 優遇措置あり)
所在地 |
神奈川県藤沢市辻堂東海岸1丁目 |
交通 |
東海道本線「辻堂」駅 徒歩22分 |
|---|---|---|---|
築年数/階数 |
新築 / 2階建 |
販売価格
間取り
建物面積
土地面積
マイページ
詳細
新築一戸建
善行坂2丁目新築戸建
新築一戸建
セールスポイント
小田急江ノ島線「善行」駅まで徒歩13分♪
◇人気の南向き物件☆新築4LDK!
◇20帖の広々LDKで快適生活☆
◇周辺にスーパー・コンビニなど生活利便性良好です!!
所在地 |
神奈川県藤沢市善行坂2丁目 |
交通 |
小田急江ノ島線「善行」駅 徒歩13分 |
|---|---|---|---|
築年数/階数 |
新築 / 2階建 |
販売価格
間取り
建物面積
土地面積
マイページ
詳細
新築一戸建
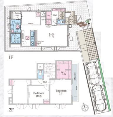
並木台1丁目新築戸建
新築一戸建
セールスポイント
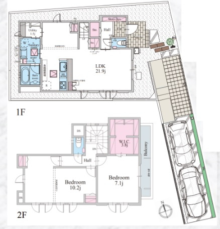
【高気密・高断熱の住まい☆】
◇約21.9帖LDK♪ゆったり快適生活
◇3.8帖☆大型ウォークインクローゼットあり!
◇周辺にスーパー・コンビニなど生活利便性良好です
所在地 |
神奈川県藤沢市並木台1丁目 |
交通 |
東海道本線「大船」駅 バス13分 「渡内(神奈川県)」 停歩2分 |
|---|---|---|---|
築年数/階数 |
新築 / 2階建 |
販売価格
間取り
建物面積
土地面積
マイページ
詳細
新築一戸建
藤沢市高倉 新築戸建
新築一戸建
セールスポイント
小田急江ノ島線「長後」駅まで徒歩10分!
南東角地で陽当り良好!カースペース2台可能♪(車種による)
所在地 |
神奈川県藤沢市高倉 |
交通 |
小田急江ノ島線「長後」駅 徒歩10分 |
|---|---|---|---|
築年数/階数 |
新築 / 2階建 |
販売価格
間取り
建物面積
土地面積
マイページ
詳細
新築一戸建
片瀬海岸3丁目新築戸建 全3棟
新築一戸建
セールスポイント
【江ノ電「湘南海岸公園」駅まで徒歩4分!】
◇通勤・通学に便利です♪
◇海がすぐ近くにある憧れの生活☆
◇周辺にスーパー・コンビニなど生活利便性良好です
所在地 |
神奈川県藤沢市片瀬海岸3丁目 |
交通 |
江ノ島電鉄「湘南海岸公園」駅 徒歩4分 |
|---|---|---|---|
築年数/階数 |
新築 / 2階建 |
販売価格
間取り
建物面積
土地面積
マイページ
詳細
新築一戸建
~富士山が眺めます~藤沢市用田 新築戸建て
新築一戸建
セールスポイント
♪北東角地で富士山が眺める新築戸建て♪
■西側隣地が更地のため、三方角地のような開放感があります。
■閑静な住宅地です。
■駐車スペース1台あり
■家族との会話が弾む対面キッチンを採用
■2階リビングは勾配天井を使用しているため、帖数以上に広く感じます。
所在地 |
神奈川県藤沢市用田2804-11 |
交通 |
小田急江ノ島線「湘南台」駅 バス18分 「女坂」 停歩4分 |
|---|---|---|---|
築年数/階数 |
新築 / 2階建 |
販売価格
間取り
建物面積
土地面積
マイページ
詳細
NEW 新築一戸建
石川1丁目新築戸建
新築一戸建
セールスポイント
【屋上のある家♪3LDK新築戸建!】
◇開放感あふれる吹抜けのリビング☆
◇最寄りバス停まで徒歩1分!
◇周辺にスーパー・コンビニ・小学校など生活利便性良好です!
所在地 |
神奈川県藤沢市石川1丁目 |
交通 |
小田急江ノ島線「六会日大前」駅 徒歩25分 |
|---|---|---|---|
築年数/階数 |
新築 / 2階建 |
販売価格
間取り
建物面積
土地面積
マイページ
詳細
セールスポイント
■辻堂海岸まで徒歩圏内!
■角地につき陽当たり、通風良好!
■近隣に学校・スーパーやドラックストアがあり生活環境良好!
■LDKには床下暖房完備!
■備蓄倉庫・ウォークインクローゼット付きで収納スペース豊富!
■カースペース2台分(車種による)
所在地 |
神奈川県藤沢市辻堂東海岸3丁目 |
交通 |
東海道本線「辻堂」駅 徒歩26分 |
|---|---|---|---|
築年数/階数 |
新築 / 2階建 |
販売価格
間取り
建物面積
土地面積
マイページ
詳細
NEW 新築一戸建
石川1丁目新築戸建 全6棟
新築一戸建
セールスポイント
【暮らしを彩る充実仕様☆新築3LDK】
◇大型浴室TV付き♪癒しのバスタイムを
◇豊富な収納設備ですっきり快適生活!
◇周辺にスーパー・コンビニなど生活利便性良好です
所在地 |
神奈川県藤沢市石川1丁目 |
交通 |
ブルーライン「湘南台」駅 バス11分 「和泉橋(神奈川県)」 停歩7分 |
|---|---|---|---|
築年数/階数 |
予定 / 2階建 |
販売価格
間取り
建物面積
土地面積
マイページ
詳細
新築一戸建
藤沢市辻堂元町5丁目新築戸建
新築一戸建
セールスポイント
「辻堂」駅より徒歩18分。
洗練されたデザインの邸宅誕生
\内見予約可能/
所在地 |
神奈川県藤沢市辻堂元町5丁目 |
交通 |
東海道本線「辻堂」駅 徒歩18分 |
|---|---|---|---|
築年数/階数 |
新築 / 2階建 |
販売価格
間取り
建物面積
土地面積
マイページ
詳細
NEW 新築一戸建
藤沢市高倉新築戸建 全3棟
新築一戸建
セールスポイント
【小田急江ノ島線「長後」駅まで徒歩11分の好立地】
◇21.7の開放感あるLDK♪
◇収納設備充実!
◇周辺にスーパー・コンビニ・小学校など生活利便性良好です☆
所在地 |
神奈川県藤沢市高倉 |
交通 |
小田急江ノ島線「長後」駅 徒歩11分 |
|---|---|---|---|
築年数/階数 |
新築 / 2階建 |
販売価格
間取り
建物面積
土地面積
マイページ
詳細
新築一戸建
辻堂東海岸3丁目新築戸建
新築一戸建
セールスポイント
【個性光るロフト付きの2邸が登場】
使い方自由なロフトは広々6.7帖
所在地 |
神奈川県藤沢市辻堂東海岸3丁目 |
交通 |
東海道本線「辻堂」駅 バス5分 「辻堂東海岸」 停歩2分 |
|---|---|---|---|
築年数/階数 |
新築 / 2階建 |
販売価格
間取り
建物面積
土地面積
マイページ
詳細
新築一戸建
藤沢市白旗4丁目新築戸建
新築一戸建
セールスポイント
【開放感のある角地にたつ新築3階建て♪】
◇小田急江ノ島線「善行」駅まで徒歩11分!
◇人気のアイランドキッチン☆
◇周辺にスーパー・コンビニなど生活利便性良好です!
所在地 |
神奈川県藤沢市白旗4丁目 |
交通 |
小田急江ノ島線「善行」駅 徒歩11分 |
|---|---|---|---|
築年数/階数 |
新築 / 3階建 |
販売価格
間取り
建物面積
土地面積
マイページ
詳細
チェックした物件を
藤沢市周辺の情報
藤沢市の新築戸建て販売情報でよくある質問
藤沢市周辺の店舗情報
藤沢市の新築戸建て販売情報でよくあるご質問
新築戸建てを購入するメリットとは?
最新設備が満載:最新の建材や設備が採用されているため、快適な暮らしを送ることができます。 住宅性能が高い:断熱性や気密性が高く、省エネで快適な住環境が期待できます。 構造が新しく、耐久性が高い:新しい構造のため、高い耐震性や建物の耐久性が高く、安心して暮らすことができます。
新築戸建てのデメリットは?
価格が高い:中古戸建てに比べて、初期費用が高額になる傾向があります。 建築期間がかかる:注文住宅の場合、建築期間が長くなることがあります。 建売住宅の場合、間取りやデザインの自由度が低い:建売住宅は、あらかじめ設計された間取りやデザインから選ぶことになります。 周辺環境がまだ整っていない場合がある:新興住宅地の場合、周辺の施設がまだ少ないことがあります。
新築戸建てを探すときのポイントは?
予算:まずは、購入可能な予算を明確にし、それに合った物件を探しましょう。 立地:通勤・通学の便や周辺環境、将来的な発展性などを考慮し、理想の立地を選びましょう。 間取り:家族構成やライフスタイルに合った間取りかどうかをしっかりと確認しましょう。 設備:必要な設備が揃っているか、また、将来的な設備の増設も考慮しましょう。
新築戸建てで人気の設備は?
オール電化: ガスを使わないため、安全性が高く、光熱費を抑えることができます。 床暖房: 足元から暖めるため、快適な室内環境を実現できます。 浴室乾燥機: 雨の日でも洗濯物が乾かせ、浴室をカビから守ります。 スマートホーム: スマホで家電を操作できるなど、便利な機能が満載です。
新築戸建てを購入したら、どれくらいの期間で住めるようになる?
契約から引き渡しまで:住宅ローンの手続きなどがあるため、お客様への物件の引き渡しは契約から約1ヶ月後が目安です。 引き渡しから引っ越しまで:物件の引き渡し後にはカーテンレールやエアコン設置のリフォームがあるため、引き渡しから引っ越しまで2週間程度は見ておきましょう。 (リフォーム内容によって変動します)
近くの市区町村から探す
同じエリアにある駅から探す
特集から探す
- 藤沢市の日当たり良好な新築一戸建て
- 藤沢市のファミリー向け新築一戸建て
- 藤沢市の駅徒歩10分以内の新築一戸建て
- 藤沢市の南向き・南道路の新築一戸建て
- 藤沢市のLDK15畳以上の新築一戸建て
- 藤沢市の海が見える新築一戸建て
- 藤沢市の庭付き新築一戸建て
藤沢市の不動産を別の種別から探す























































































































































































































































































































































































































































































































































































































































































































































































































































































































































































































































































































