湘南台駅の新築一戸建て(新築一軒家・新築分譲住宅)一覧
「湘南台駅」で16件の新築一戸建てが見つかりました。
湘南台駅の新築戸建て物件をお探しの方に向けた新築戸建て専用ページです。最新の新築物件情報を豊富に掲載し、新築戸建ての特徴や魅力、購入時のポイントも解説しています。ウスイホームが理想の住まい探しをサポートします。
該当物件16件
×
チェックした物件を
セールスポイント
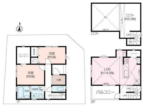
大庭新築分譲戸建 最終1棟 耐震等級【最 高 等 級 取 得】南西角地の開放感のある好立地です!
◎ファミリーに嬉しい4LDK◎南向きバルコニーでお家が明るく照らされるこの場所で、落ち着いたご家族の時間をご提供いたします。
~快適な暮らしを実現する最終1棟~
◎前面道路6mで圧迫感の無い立地です。
◎カースペース2台分+ご家族の自転車を置くスペースもございます。
◎近隣に公園やスーパー学校も充実
所在地 |
神奈川県藤沢市大庭5428-11 |
交通 |
東海道本線「辻堂」駅 バス11分 「大庭小学校」 停歩10分 |
|---|---|---|---|
築年数/階数 |
新築 / 2階建 |
販売価格
間取り
建物面積
土地面積
マイページ
詳細
新築一戸建
Vergarden藤沢市立石
新築一戸建
セールスポイント
~Vergarden藤沢市立石~
◎敷地内カースペース2台分有り(車種による)
◎東側が抜けており眺望良好!
◎設備充実の新築戸建
所在地 |
神奈川県藤沢市立石1丁目 |
交通 |
小田急江ノ島線「善行」駅 徒歩13分 |
|---|---|---|---|
築年数/階数 |
予定 / 2階建 |
販売価格
間取り
建物面積
土地面積
マイページ
詳細
新築一戸建
藤沢市下土棚新築戸建
新築一戸建
セールスポイント
~藤沢市下土棚新築戸建~
◎小田急江ノ島線「長後」駅 徒歩8分
◎2025年3月完成の新築戸建物件
◎2LDK+ロフトのコンパクトな間取り
◎使い勝手に優れ、設備充実
所在地 |
神奈川県藤沢市下土棚373-7 |
交通 |
小田急江ノ島線「長後」駅 徒歩8分 |
|---|---|---|---|
築年数/階数 |
新築 / 2階建 |
販売価格
間取り
建物面積
土地面積
マイページ
詳細
新築一戸建
藤沢市亀井野4丁目新築戸建
新築一戸建
セールスポイント
【人気の藤沢エリア!落ち着いた住環境に新築分譲住宅登場!!】
所在地 |
神奈川県藤沢市亀井野4丁目 |
交通 |
小田急江ノ島線「六会日大前」駅 徒歩10分 |
|---|---|---|---|
築年数/階数 |
新築 / 2階建 |
販売価格
間取り
建物面積
土地面積
マイページ
詳細
新築一戸建
藤沢市石川新築戸建 全3棟
新築一戸建
セールスポイント
【暮らしを豊かにする充実の設備!藤沢市石川全3棟!】
◇小田急江ノ島線「湘南台」バス17分「石川橋」歩6分
◇全居室収納完備!パントリーやSIC、WICなど収納豊富!
◇南向きで陽当たり良好の4LDK♪
所在地 |
神奈川県藤沢市石川 |
交通 |
小田急江ノ島線「六会日大前」駅 バス4分 「5号西」 停歩6分 |
|---|---|---|---|
築年数/階数 |
新築 / 2階建 |
販売価格
間取り
建物面積
土地面積
マイページ
詳細
新築一戸建
藤沢市遠藤 新築戸建 全2棟
新築一戸建
セールスポイント
~三方角地の物件~
■駐車スペース2台
■前面道路が6m以上あるため、駐車がしやすいです
■小学校、買い物施設が徒歩10分圏内に揃っている
■閑静な住宅街
■LDKが20帖以上
■LDKにウォークインクロゼットがあり、多くのものが収納できます。
■収納スペースが豊富
所在地 |
神奈川県藤沢市遠藤876-1 |
交通 |
小田急江ノ島線「湘南台」駅 徒歩59分 |
|---|---|---|---|
築年数/階数 |
新築 / 2階建 |
販売価格
間取り
建物面積
土地面積
マイページ
詳細
新築一戸建
~富士山が眺めます~藤沢市用田 新築戸建て
新築一戸建
セールスポイント
♪北東角地で富士山が眺める新築戸建て♪
■西側隣地が更地のため、三方角地のような開放感があります。
■閑静な住宅地です。
■駐車スペース1台あり
■家族との会話が弾む対面キッチンを採用
■2階リビングは勾配天井を使用しているため、帖数以上に広く感じます。
所在地 |
神奈川県藤沢市用田2804-11 |
交通 |
小田急江ノ島線「湘南台」駅 バス18分 「女坂」 停歩4分 |
|---|---|---|---|
築年数/階数 |
新築 / 2階建 |
販売価格
間取り
建物面積
土地面積
マイページ
詳細
新築一戸建
石川1丁目新築戸建
新築一戸建
セールスポイント
【屋上のある家♪3LDK新築戸建!】
◇開放感あふれる吹抜けのリビング☆
◇最寄りバス停まで徒歩1分!
◇周辺にスーパー・コンビニ・小学校など生活利便性良好です!
所在地 |
神奈川県藤沢市石川1丁目 |
交通 |
小田急江ノ島線「六会日大前」駅 徒歩25分 |
|---|---|---|---|
築年数/階数 |
新築 / 2階建 |
販売価格
間取り
建物面積
土地面積
マイページ
詳細
新築一戸建
石川1丁目新築戸建 全6棟
新築一戸建
セールスポイント
【暮らしを彩る充実仕様☆新築3LDK】
◇大型浴室TV付き♪癒しのバスタイムを
◇豊富な収納設備ですっきり快適生活!
◇周辺にスーパー・コンビニなど生活利便性良好です
所在地 |
神奈川県藤沢市石川1丁目 |
交通 |
ブルーライン「湘南台」駅 バス11分 「和泉橋(神奈川県)」 停歩7分 |
|---|---|---|---|
築年数/階数 |
予定 / 2階建 |
販売価格
間取り
建物面積
土地面積
マイページ
詳細
新築一戸建
藤沢市亀井野新築戸建 全3棟
新築一戸建
セールスポイント
【小田急江ノ島「六会日大前」駅まで徒歩13分】
敷地面積40坪超え・建物32坪台のゆとりある住まいの誕生です!
所在地 |
神奈川県藤沢市亀井野 |
交通 |
小田急江ノ島線「六会日大前」駅 徒歩14分 |
|---|---|---|---|
築年数/階数 |
新築 / 2階建 |
販売価格
間取り
建物面積
土地面積
マイページ
詳細
新築一戸建
藤沢市用田新築戸建
新築一戸建
セールスポイント
【人気の湘南エリア☆南向き新築戸建登場!】
◇おしゃれな人造大理石カウンターシステムキッチン♪
◇南側公道に面した駐車スペース2台分!(※車種によります)
所在地 |
神奈川県藤沢市用田 |
交通 |
ブルーライン「湘南台」駅 バス11分 「御所見中学校前」 停歩9分 |
|---|---|---|---|
築年数/階数 |
新築 / 2階建 |
販売価格
間取り
建物面積
土地面積
マイページ
詳細
チェックした物件を
該当物件16件 1〜16件表示
湘南台周辺の情報
湘南台の新築戸建て販売情報でよくある質問
湘南台周辺の店舗情報
湘南台の新築戸建て販売情報でよくあるご質問
新築戸建てを購入するメリットとは?
最新設備が満載:最新の建材や設備が採用されているため、快適な暮らしを送ることができます。 住宅性能が高い:断熱性や気密性が高く、省エネで快適な住環境が期待できます。 構造が新しく、耐久性が高い:新しい構造のため、高い耐震性や建物の耐久性が高く、安心して暮らすことができます。
新築戸建てのデメリットは?
価格が高い:中古戸建てに比べて、初期費用が高額になる傾向があります。 建築期間がかかる:注文住宅の場合、建築期間が長くなることがあります。 建売住宅の場合、間取りやデザインの自由度が低い:建売住宅は、あらかじめ設計された間取りやデザインから選ぶことになります。 周辺環境がまだ整っていない場合がある:新興住宅地の場合、周辺の施設がまだ少ないことがあります。
新築戸建てを探すときのポイントは?
予算:まずは、購入可能な予算を明確にし、それに合った物件を探しましょう。 立地:通勤・通学の便や周辺環境、将来的な発展性などを考慮し、理想の立地を選びましょう。 間取り:家族構成やライフスタイルに合った間取りかどうかをしっかりと確認しましょう。 設備:必要な設備が揃っているか、また、将来的な設備の増設も考慮しましょう。
新築戸建てで人気の設備は?
オール電化: ガスを使わないため、安全性が高く、光熱費を抑えることができます。 床暖房: 足元から暖めるため、快適な室内環境を実現できます。 浴室乾燥機: 雨の日でも洗濯物が乾かせ、浴室をカビから守ります。 スマートホーム: スマホで家電を操作できるなど、便利な機能が満載です。
新築戸建てを購入したら、どれくらいの期間で住めるようになる?
契約から引き渡しまで:住宅ローンの手続きなどがあるため、お客様への物件の引き渡しは契約から約1ヶ月後が目安です。 引き渡しから引っ越しまで:物件の引き渡し後にはカーテンレールやエアコン設置のリフォームがあるため、引き渡しから引っ越しまで2週間程度は見ておきましょう。 (リフォーム内容によって変動します)
近くの市区町村から探す
同じエリアにある駅から探す
特集から探す
- 湘南台駅の日当たり良好な新築一戸建て
- 湘南台駅のファミリー向け新築一戸建て
- 湘南台駅の駅徒歩10分以内の新築一戸建て
- 湘南台駅の南向き・南道路の新築一戸建て
- 湘南台駅のLDK15畳以上の新築一戸建て
- 湘南台駅の海が見える新築一戸建て
- 湘南台駅の庭付き新築一戸建て
湘南台駅の不動産を別の種別から探す

























































































































































































































































































































































































































































































