ファミリー向け物件特集
横須賀市のファミリー向け一戸建て物件(新築・中古・建売)購入情報
「横須賀市」「ファミリー向け特集」で77件の一戸建てが見つかりました。
横須賀市の一戸建て・分譲住宅情報を、新築から中古まで幅広くご紹介した総合ページです。横須賀市で戸建て住宅をお探しの方はウスイホームにお任せください。
該当物件77件
×
チェックした物件を
新築一戸建
長井3丁目6期新築分譲住宅 全4棟
新築一戸建
所在地 |
神奈川県横須賀市長井3丁目 |
交通 |
京急久里浜線「三崎口」駅 バス14分 「井尻(神奈川県)」 停歩4分 |
|---|---|---|---|
築年数/階数 |
新築 / 2階建 |
販売価格
間取り
建物面積
土地面積
マイページ
詳細
新築一戸建
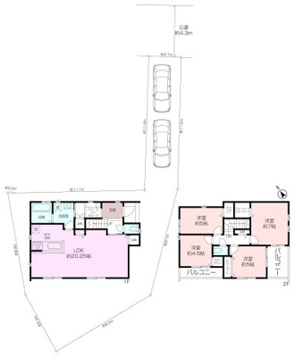
長井1丁目新築一戸建て
新築一戸建
セールスポイント
敷地広々約63坪!
芝生の敷かれたお庭のある南東向きの4LDK新築戸建!
リビングの吹抜や居室の勾配天井等開放感があります!
充実設備・仕様の長期優良住宅です♪
所在地 |
神奈川県横須賀市長井1丁目 |
交通 |
京急久里浜線「三崎口」駅 バス10分 「長井(神奈川県)」 停歩3分 |
|---|---|---|---|
築年数/階数 |
新築 / 2階建 |
販売価格
間取り
建物面積
土地面積
マイページ
詳細
新築一戸建
久里浜台2丁目新築戸建
新築一戸建
セールスポイント
【久里浜台2丁目新築戸建 内見予約受付中!】
〇2026年5月建物完成予定の新築戸建!
〇京急線「京急久里浜駅」から徒歩26分!バスでのアクセス可能!JR横須賀線利用可能!
〇大きな間取りの4LDK、吹抜け天井、南西側道路に面しています。
〇カースペースは3台分駐車可能です!(車種による)
〇建物完成例もご内見出来ますのでお申し付けください。
ご内見やその他詳細についてはお問い合わせください!
所在地 |
神奈川県横須賀市久里浜台2丁目25-14 |
交通 |
京急久里浜線「京急久里浜」駅 徒歩23分 |
|---|---|---|---|
築年数/階数 |
予定 / 2階建 |
販売価格
間取り
建物面積
土地面積
マイページ
詳細
中古一戸建
ハイランド2丁目中古戸建
中古一戸建
セールスポイント
内外装リノベーション済!
公園目の前、前面道路幅6.4mの開放的な住環境!
全室6帖以上のゆったり広い4LDK中古戸建!
嬉しいお庭もあります♪
所在地 |
神奈川県横須賀市ハイランド2丁目 |
建物面積 |
107.3㎡ |
||
|---|---|---|---|---|---|
販売価格 |
2980万円 |
築年数 |
築28年 |
間取り |
4LDK |
交通 |
京急久里浜線「YRP野比」駅 徒歩17分 |
||||
中古一戸建
南西角地 ハイランド三丁目中古戸建
中古一戸建
セールスポイント
土地50坪以上!南西角地に位置するハイランド三丁目中古戸建です。
☆京急久里浜線「京急久里浜」駅徒歩26分!JR横須賀線「久里浜」駅徒歩29分!
☆南西角地のため日当たり良好!建物2階からの眺望、風通りもご確認いただけます。
☆前面道路は幅員約6mですので開放感があります。
☆築年数は経っておりますがリフォーム履歴がございますので室内きれいです。
詳細や内見はウスイホーム久里浜まで!
所在地 |
神奈川県横須賀市ハイランド3丁目 |
建物面積 |
113.4㎡ |
||
|---|---|---|---|---|---|
販売価格 |
2980万円 |
築年数 |
築48年 |
間取り |
4LDK |
交通 |
京急久里浜線「京急久里浜」駅 徒歩26分 |
||||
新築一戸建
鴨居3丁目3期新築一戸建て
新築一戸建
セールスポイント
お洒落なデザイン階段のある吹抜のリビング!
閑静な住宅街の東南角地に建つ長期優良住宅!
敷地面積約56坪、ゆったり広い4LDK新築戸建です♪
所在地 |
神奈川県横須賀市鴨居3丁目 |
交通 |
京急本線「浦賀」駅 バス10分 「小原台入口(横須賀市)」 停歩11分 |
|---|---|---|---|
築年数/階数 |
予定 / 2階建 |
販売価格
間取り
建物面積
土地面積
マイページ
詳細
新築一戸建
ハイランド1丁目新築一戸建て
新築一戸建
セールスポイント
敷地面積約56坪!
開放的な角地に建つ安心の長期優良住宅!
お洒落な吹抜のリビングやインナーバルコニー等
ワンランク上の新築戸建です♪
所在地 |
神奈川県横須賀市ハイランド1丁目 |
交通 |
京急久里浜線「京急久里浜」駅 バス8分 「入口商店会前」 停歩4分 |
|---|---|---|---|
築年数/階数 |
予定 / 2階建 |
販売価格
間取り
建物面積
土地面積
マイページ
詳細
セールスポイント
◆JR衣笠駅まで徒歩15分圏内の3LDKの戸建てになります。
◆各洋室6帖以上、各居室収納がありすっきりとお過ごしいただけます。
◆窓が多く、自然の光を取り込むことのできる仕様となります。
◆カースペースは並列2台で駐車することができます。(車種による)
所在地 |
神奈川県横須賀市平作1丁目 |
交通 |
横須賀線「衣笠」駅 徒歩12分 |
|---|---|---|---|
築年数/階数 |
新築 / 2階建 |
販売価格
間取り
建物面積
土地面積
マイページ
詳細
新築一戸建
★限定1棟★VerGarden舟倉2丁目新築戸建
新築一戸建
セールスポイント
京急久里浜駅・JR久里浜駅最寄りの人気エリアになります!建物天井の高さが2.6mあり、開放感あふれるリビングが魅力です!閑静な住宅街にありながら、近隣にスーパー・ガソリンスタンド・ホームセンターがございますので、日常生活に困ることはございません!住宅ローンの事前審査(仮審査)も受付しております。各金融機関の住宅ローンの審査を ウスイホームでまとめてご手配いたします。ウスイホーム久里浜店、板倉まで!
所在地 |
神奈川県横須賀市舟倉2丁目 |
交通 |
横須賀線「久里浜」駅 徒歩13分車6分 |
|---|---|---|---|
築年数/階数 |
予定 / 2階建 |
販売価格
間取り
建物面積
土地面積
マイページ
詳細
セールスポイント
~浦賀丘新築分譲戸建て~
●天井高2.7m、約20帖のリビングが開放的です
● ガーデニングにアウトドアと多趣味な方に嬉しい庭付き
● 居室以外にもリビング、脱衣場、廊下、玄関まで嬉しい収納豊富な間取り
● カースペース2台付
所在地 |
神奈川県横須賀市浦賀丘1丁目 |
交通 |
京急本線「浦賀」駅 徒歩19分 |
|---|---|---|---|
築年数/階数 |
新築 / 2階建 |
販売価格
間取り
建物面積
土地面積
マイページ
詳細
中古一戸建
南浦賀中古戸建
中古一戸建
セールスポイント
南西角地!土地80坪以上の大和ハウス施工の専有面積約190㎡の大型戸建です。
☆京急久里浜線「京急久里浜」駅徒歩20分、JR横須賀線「久里浜」駅徒歩21分です。
☆各居室6帖以上でして、納戸やウォークインクローゼットがあり収納たっぷりです。
☆カースペース縦列2台分ございます。
☆敷地にゆとりがあるため、ガーデニング等楽しめます。
詳細や内見はウスイホーム久里浜までご連絡ください!
所在地 |
神奈川県横須賀市南浦賀 |
建物面積 |
189.55㎡ |
||
|---|---|---|---|---|---|
販売価格 |
4380万円 |
築年数 |
築27年 |
間取り |
6LDK |
交通 |
京急久里浜線「京急久里浜」駅 徒歩20分 |
||||
セールスポイント
南東角地で陽当たり良好な平成15年築の中古戸建です。令和2年に外壁塗装を行い、室内は新規リフォーム済みで、すぐに快適にお住まいいただけます。駐車スペースは車種によりますが3台分確保可能で、広々とした小屋裏収納(約10.1帖)もあります。明るく開放的な住まいで、家族みんなが快適に暮らせます。
所在地 |
神奈川県横須賀市粟田1丁目 |
建物面積 |
104.5㎡ |
||
|---|---|---|---|---|---|
販売価格 |
2780万円 |
築年数 |
築22年 |
間取り |
4LDK |
交通 |
京急久里浜線「YRP野比」駅 徒歩27分 |
||||
新築一戸建
~デザイナーズ住宅~森崎4丁目新築戸建
新築一戸建
セールスポイント
**森崎4丁目「デザイナーズ住宅」**
設計・施工は大正12年創業の歴史ある建設会社です。キッチンには約1帖分のパントリー、主寝室には一坪のWIC、洗面脱衣所にはランドリー収納、奥様には嬉しい収納力のある新築住宅です。玄関は仕切りのない斬新な収納スペースで開放的な空間です。各居室は6帖以上・主寝室は約10帖とゆとりのある設計。随時ご内見予約受け付けております。
所在地 |
神奈川県横須賀市森崎4丁目 |
交通 |
横須賀線「衣笠」駅 徒歩26分 |
|---|---|---|---|
築年数/階数 |
新築 / 2階建 |
販売価格
間取り
建物面積
土地面積
マイページ
詳細
中古一戸建
ハイランド4丁目中古戸建
中古一戸建
セールスポイント
庭付き・カースペース2台!前面道路南向き幅員6mの好立地に位置する中古戸建です。
☆京急久里浜線「京急久里浜」駅徒歩24分!JR横須賀線「久里浜」駅まで徒歩27分です。
☆全居室南向きですので日当たり良好!バルコニーへ3部屋から出入りできます。
☆全居室収納付き、廊下収納や階段収納、また納戸もございますので収納たっぷりです。
☆南面の庭もございますのでガーデンやバーベキュー等楽しめます。
所在地 |
神奈川県横須賀市ハイランド4丁目 |
建物面積 |
107.64㎡ |
||
|---|---|---|---|---|---|
販売価格 |
2380万円 |
築年数 |
築24年 |
間取り |
4LDK+1S(納戸) |
交通 |
京急久里浜線「京急久里浜」駅 徒歩24分 |
||||
中古一戸建
浦賀6丁目中古戸建
中古一戸建
セールスポイント
車種により縦列で2台駐車可能な一戸建て住宅です。
浦賀駅からほぼ平坦な道のりで徒歩12分で行くことが出来、バスを利用して久里浜駅にも出ることが出来る物件です。
大通りから離れるため、静かな住環境となっております。
各部屋6帖以上の広々した4DKの間取りで、ファミリー世帯も居住可能
玄関前、建物裏には小さな庭スペースもあります。
スーパー、百円ショップまでも徒歩7分で、買い物便利な立地です
所在地 |
神奈川県横須賀市浦賀6丁目14-12 |
建物面積 |
86.94㎡ |
||
|---|---|---|---|---|---|
販売価格 |
1080万円 |
築年数 |
築44年 |
間取り |
4DK |
交通 |
京急本線「浦賀」駅 徒歩12分 |
||||
新築一戸建
湘南鷹取6丁目新築分譲住宅
新築一戸建
セールスポイント
開放感いっぱいの北西角地!
広々したお庭を持つゆったり広い4LDK新築戸建!
お洒落なアイランドキッチンのあるお家です♪
安心の長期優良住宅!
所在地 |
神奈川県横須賀市湘南鷹取6丁目 |
交通 |
京急本線「追浜」駅 バス14分 「マンション北口」 停歩5分 |
|---|---|---|---|
築年数/階数 |
新築 / 2階建 |
販売価格
間取り
建物面積
土地面積
マイページ
詳細
新築一戸建
湘南鷹取1丁目新築戸建
新築一戸建
セールスポイント
リビングから海を望む!
陽当たりと開放感に恵まれた高台の新築戸建!
3LDKから4LDKへ間取り変更可能です!
駅からも徒歩圏ですよ♪
所在地 |
神奈川県横須賀市湘南鷹取1丁目 |
交通 |
京急本線「追浜」駅 徒歩11分 |
|---|---|---|---|
築年数/階数 |
新築 / 2階建 |
販売価格
間取り
建物面積
土地面積
マイページ
詳細
新築一戸建
湘南鷹取5丁目1期新築分譲住宅
新築一戸建
セールスポイント
南道路で陽当たり良好!
敷地面積48坪のゆったり広い整形地!
食洗機や浴室乾燥機等設備充実!
全室6帖以上ののびのび暮らせる4LDK新築戸建♪
所在地 |
神奈川県横須賀市湘南鷹取5丁目 |
交通 |
京急本線「追浜」駅 バス11分 「たかとりプール前」 停歩4分 |
|---|---|---|---|
築年数/階数 |
新築 / 2階建 |
販売価格
間取り
建物面積
土地面積
マイページ
詳細
新築一戸建
森崎4丁目新築デザイナーズ住宅
新築一戸建
セールスポイント
住まいやすくお洒落なデザイナーズ住宅!
閑静な住宅街の開放的な角地に建つ新築戸建!
ウォークインクローゼットやパントリーなど収納豊富!
全室6帖以上のゆったり広い3LDK!
所在地 |
神奈川県横須賀市森崎4丁目 |
交通 |
京急久里浜線「北久里浜」駅 バス9分 「森崎商店街」 停歩11分 |
|---|---|---|---|
築年数/階数 |
新築 / 2階建 |
販売価格
間取り
建物面積
土地面積
マイページ
詳細
新築一戸建
VerGarden公郷町六丁目新築戸建 2号棟
新築一戸建
セールスポイント
【公郷町六丁目新築戸建全2棟 内見予約受付中!】
〇2026年2月末建物完成予定の新築戸建!年度内入居可能です!
〇京急線「堀ノ内駅」から徒歩20分!バスでのアクセス可能!JR横須賀線利用可能!
〇南西面に接道している好立地な物件。
〇カースペースは2台分駐車可能です!(車種による)
〇建物完成例もご内見出来ますのでお申し付けください。
ご内見やその他詳細についてはお問い合わせください!
所在地 |
神奈川県横須賀市公郷町6丁目20-162 |
交通 |
京急本線「堀ノ内」駅 徒歩20分 |
|---|---|---|---|
築年数/階数 |
予定 / 2階建 |
販売価格
間取り
建物面積
土地面積
マイページ
詳細
新築一戸建
VerGarden公郷町六丁目新築戸建 1号棟
新築一戸建
セールスポイント
【公郷町六丁目新築戸建全2棟 内見予約受付中!】
〇2026年2月末建物完成予定の新築戸建!年度内入居可能です!
〇京急線「堀ノ内駅」から徒歩20分!バスでのアクセス可能!JR横須賀線利用可能!
〇南西面に接道している好立地な物件。
〇カースペースは2台分駐車可能です!(車種による)
〇建物完成例もご内見出来ますのでお申し付けください。
ご内見やその他詳細についてはお問い合わせください!
所在地 |
神奈川県横須賀市公郷町6丁目20-162 |
交通 |
京急本線「堀ノ内」駅 徒歩20分 |
|---|---|---|---|
築年数/階数 |
予定 / 2階建 |
販売価格
間取り
建物面積
土地面積
マイページ
詳細
セールスポイント
◆角地に位置した開放感のある新築戸建てになります。
◆各居室収納付き、リネン庫やパントリー等収納豊富です。
◆LDKは背の高い窓が多く明るい光がはいりこみます。
◆対面キッチンやリビングイン階段等家族の会話が弾む仕様です。
所在地 |
神奈川県横須賀市鴨居3丁目 |
交通 |
京急本線「浦賀」駅 徒歩40分 |
|---|---|---|---|
築年数/階数 |
新築 / 2階建 |
販売価格
間取り
建物面積
土地面積
マイページ
詳細
中古一戸建
森崎5丁目リアンシティ中古戸建
中古一戸建
セールスポイント
住環境の良い「森崎リアンシティ」分譲地内!
平成28年11月築、ヘーベルハウス施工のオール電化住宅です!
南道路で陽当たり良好、個性あるこだわりが魅力的な3LDK♪
所在地 |
神奈川県横須賀市森崎5丁目 |
建物面積 |
95.58㎡ |
||
|---|---|---|---|---|---|
販売価格 |
4680万円 |
築年数 |
築9年 |
間取り |
3LDK |
交通 |
京急久里浜線「北久里浜」駅 バス12分 「森崎リアンシティ」 停歩3分 |
||||
セールスポイント
暮らしやすさと機能性を兼ね備えた新築戸建てが登場しました。価格は2,780万円と、新築物件としては非常にリーズナブル。家計に優しく、マイホームの夢を現実にしやすい物件です。
敷地内にはカースペースを2台分確保。ご夫婦で車を所有しているご家庭はもちろん、来客時にも安心です。周辺は閑静な住宅街で、車通りも少なく、落ち着いた生活環境が整っています。子育て世帯にもぴったりの立地です。
所在地 |
神奈川県横須賀市粟田1丁目 |
交通 |
京急久里浜線「YRP野比」駅 バス9分 「焼木坂」 停歩7分 |
|---|---|---|---|
築年数/階数 |
新築 / 2階建 |
販売価格
間取り
建物面積
土地面積
マイページ
詳細
新築一戸建
岩戸5丁目新築一戸建て
新築一戸建
セールスポイント
敷地面積約47坪!
南側を道路に面してたっぷりと陽射しが当たる新築戸建!
吹抜やインナーバルコニー、室内物干し等ワンランク上の
設備・収納を備えた長期優良住宅です♪
所在地 |
神奈川県横須賀市岩戸5丁目 |
交通 |
京急久里浜線「北久里浜」駅 バス14分 「岩戸町内会館」 停歩10分 |
|---|---|---|---|
築年数/階数 |
新築 / 2階建 |
販売価格
間取り
建物面積
土地面積
マイページ
詳細
新築一戸建
上町3丁目新築戸建A号棟
新築一戸建
セールスポイント
京急本線「県立大学」駅徒歩12分、「横須賀中央」駅徒歩15分!駅近新築戸建です。
☆京急ストア目の前!いつでもお買い物に行ける便利な立地にございます。
☆横須賀中央駅が徒歩圏内のため、駅周辺は商業・医療施設が充実しております。
☆カースペースは2台ございますのでお車複数お持ちの方でも安心です。
☆バス停まで徒歩1分のため、雨の時はバス利用で駅まで楽々です。
詳細や内見はウスイホーム久里浜まで!
所在地 |
神奈川県横須賀市上町3丁目 |
交通 |
京急本線「横須賀中央」駅 徒歩15分 |
|---|---|---|---|
築年数/階数 |
新築 / 2階建 |
販売価格
間取り
建物面積
土地面積
マイページ
詳細
中古一戸建
~インスペクション実施済~公郷町3丁目中古戸建
中古一戸建
セールスポイント
【インスペクション実施済み物件!】
〇2000年築の中古戸建!室内内覧可能です!
〇JR横須賀線「衣笠駅」から平坦徒歩16分!バス利用も可能です!
○売買契約後、構造上主要な部分をリフォームしてからお引渡し致します。
〇その他リフォーム必要箇所は弊社にて無料で御見積可能です。
〇カースペース1台有り(車種による)
○新たに測量は行いません。
ご内見やその他詳細についてはお問い合わせください!
所在地 |
神奈川県横須賀市公郷町3丁目115-19 |
建物面積 |
80.52㎡ |
||
|---|---|---|---|---|---|
販売価格 |
2080万円 |
築年数 |
築25年 |
間取り |
4DK |
交通 |
横須賀線「衣笠」駅 徒歩16分 |
||||
横須賀市周辺の情報
横須賀市の戸建て販売情報でよくある質問
横須賀市周辺の店舗情報
近くの市区町村から探す
同じエリアにある駅から探す
特集から探す
- 横須賀市の日当たり良好な一戸建て
- 横須賀市の築浅一戸建て
- 横須賀市の駅徒歩10分以内の一戸建て
- 横須賀市の南向き・南道路の一戸建て
- 横須賀市のLDK15畳以上の一戸建て
- 横須賀市のリフォーム・リノベーション済一戸建て
- 横須賀市の海が見える一戸建て
- 横須賀市の庭付き一戸建て
横須賀市の不動産を別の種別から探す






























































































































































































































































































































































































































































































































































































































































































































































































































































































































































































































































































































































































































































































































































































































































































































































