YRP野比駅の新築一戸建て(新築一軒家・新築分譲住宅)一覧
「YRP野比駅」で29件の新築一戸建てが見つかりました。
YRP野比駅の新築戸建て物件をお探しの方に向けた新築戸建て専用ページです。最新の新築物件情報を豊富に掲載し、新築戸建ての特徴や魅力、購入時のポイントも解説しています。ウスイホームが理想の住まい探しをサポートします。
該当物件29件
×
チェックした物件を
新築一戸建
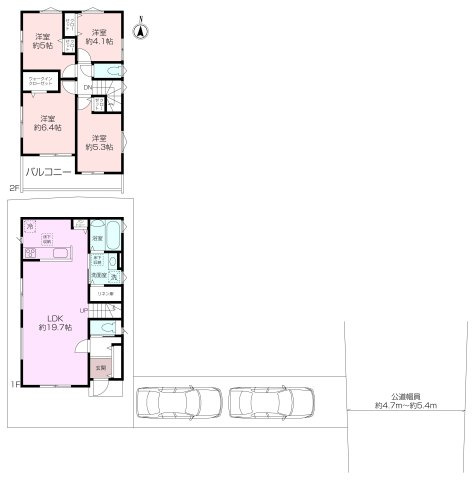
~前面道路6m以上~林2丁目新築戸建
新築一戸建
セールスポイント
・LDK19帖と広々した空間
・南向きのため日当たり良好
・浴室乾燥機、宅配ボックスなど設備が充実
・カースペース2台分完備(車種による)
・前面道路6m以上と車の駐車場がしやすい。
所在地 |
神奈川県横須賀市林2丁目1-12 |
交通 |
横須賀線「衣笠」駅 バス15分 「一騎塚」 停歩5分 |
|---|---|---|---|
築年数/階数 |
新築 / 2階建 |
販売価格
間取り
建物面積
土地面積
マイページ
詳細
セールスポイント
・長期優良住宅、ZEH水準省エネ住宅
・敷地面積40坪と広々とした土地
・バス停まで徒歩3分
・コンビニ、スーパー、薬局が徒歩5分圏内
・日当たり良好
・LDK18帖と広々した空間
所在地 |
神奈川県横須賀市長井3丁目11-4 |
交通 |
京急久里浜線「三崎口」駅 バス12分 「井尻(神奈川県)」 停歩4分 |
|---|---|---|---|
築年数/階数 |
新築 / 2階建 |
販売価格
間取り
建物面積
土地面積
マイページ
詳細
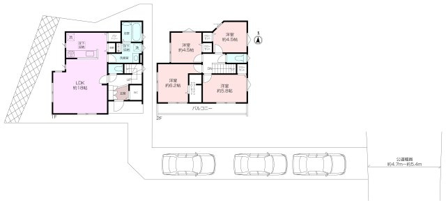
新築一戸建
Vergarden林3丁目新築戸建
新築一戸建
セールスポイント
「林3丁目新築戸建」
■天井高2.7mの開放感あるリビング
■パントリー・リネン庫・玄関収納・WIC等収納豊富
■無駄のないコンパクトな間取
■2階5.25帖、6帖の洋室の間仕切りは撤去可能です(別途費用要す)
■カースペース2台分有(車種による)
所在地 |
神奈川県横須賀市林3丁目2-15 |
交通 |
横須賀線「衣笠」駅 バス15分 「一騎塚」 停歩7分 |
|---|---|---|---|
築年数/階数 |
予定 / 2階建 |
販売価格
間取り
建物面積
土地面積
マイページ
詳細
新築一戸建
長坂3丁目新築戸建
新築一戸建
セールスポイント
~長坂3丁目新築戸建~
■ZEH水準の省エネ住宅(住宅性能評価W取得)
■カースペース2台分有り(車種による)
■徒歩圏内にコンビニがあります
■日当たりの良い2階リビング
■二面バルコニー
所在地 |
神奈川県横須賀市長坂3丁目10-36 |
交通 |
横須賀線「衣笠」駅 バス22分 「長坂(横須賀市)」 停歩2分 |
|---|---|---|---|
築年数/階数 |
新築 / 2階建 |
販売価格
間取り
建物面積
土地面積
マイページ
詳細
新築一戸建
VerGarden野比3丁目 全4棟
新築一戸建
セールスポイント
VerGaden野比3丁目全4棟 残り3棟
LDKの天井高2.7mと開放的
所在地 |
神奈川県横須賀市野比3丁目 |
交通 |
京急久里浜線「YRP野比」駅 徒歩17分 |
|---|---|---|---|
築年数/階数 |
新築 / 2階建 |
販売価格
間取り
建物面積
土地面積
マイページ
詳細
新築一戸建
ハイランド1丁目新築一戸建て
新築一戸建
セールスポイント
敷地面積約56坪!
開放的な角地に建つ安心の長期優良住宅!
お洒落な吹抜のリビングやインナーバルコニー等
ワンランク上の新築戸建です♪
所在地 |
神奈川県横須賀市ハイランド1丁目 |
交通 |
京急久里浜線「京急久里浜」駅 バス8分 「入口商店会前」 停歩4分 |
|---|---|---|---|
築年数/階数 |
予定 / 2階建 |
販売価格
間取り
建物面積
土地面積
マイページ
詳細
新築一戸建
武2丁目新築戸建
新築一戸建
セールスポイント
カースペース3台分あり!
南道路で全室南東向き!
たっぷりと陽射しが当たる3LDK新築戸建!
床暖房に食洗機、浴室乾燥機等設備も充実しています♪
所在地 |
神奈川県横須賀市武2丁目 |
交通 |
横須賀線「衣笠」駅 バス11分 「南武入口」 停歩3分 |
|---|---|---|---|
築年数/階数 |
新築 / 2階建 |
販売価格
間取り
建物面積
土地面積
マイページ
詳細
新築一戸建
岩戸5丁目新築一戸建て
新築一戸建
セールスポイント
敷地面積約47坪!
南側を道路に面してたっぷりと陽射しが当たる新築戸建!
吹抜やインナーバルコニー、室内物干し等ワンランク上の
設備・収納を備えた長期優良住宅です♪
所在地 |
神奈川県横須賀市岩戸5丁目 |
交通 |
京急久里浜線「北久里浜」駅 バス14分 「岩戸町内会館」 停歩10分 |
|---|---|---|---|
築年数/階数 |
新築 / 2階建 |
販売価格
間取り
建物面積
土地面積
マイページ
詳細
新築一戸建
野比2丁目新築戸建
新築一戸建
セールスポイント
南側に広がるオーシャンビュー!
明るく開放的な2階リビングでくつろげる3LDK新築戸建!
全室6帖以上と広く、豊富な収納の嬉しいお家です♪
所在地 |
神奈川県横須賀市野比2丁目 |
交通 |
京急久里浜線「YRP野比」駅 徒歩8分 |
|---|---|---|---|
築年数/階数 |
新築 / 2階建 |
販売価格
間取り
建物面積
土地面積
マイページ
詳細
新築一戸建
粟田2丁目6期新築一戸建て
新築一戸建
セールスポイント
バス停から徒歩4分!コンビニも近く便利な立地の新築戸建!
リビング広々21帖!4LDKへも間取り変更可能な3LDK!
南側にお庭のある長期優良住宅です♪
所在地 |
神奈川県横須賀市粟田2丁目 |
交通 |
京急久里浜線「YRP野比」駅 バス9分 「焼木坂」 停歩4分 |
|---|---|---|---|
築年数/階数 |
新築 / 2階建 |
販売価格
間取り
建物面積
土地面積
マイページ
詳細
新築一戸建
粟田1丁目第5新築分譲住宅 全1棟
新築一戸建
セールスポイント
とても静かな住宅街に生まれる3LDK新築戸建!
分譲地の奥に位置するため、落ち着いた環境で暮らせます。
周囲に公園が豊富で子育てにもぴったり♪
所在地 |
神奈川県横須賀市粟田1丁目 |
交通 |
京急久里浜線「YRP野比」駅 バス9分 「焼木坂」 停歩7分 |
|---|---|---|---|
築年数/階数 |
新築 / 2階建 |
販売価格
間取り
建物面積
土地面積
マイページ
詳細
新築一戸建
ハイランド3丁目新築戸建
新築一戸建
セールスポイント
公園徒歩1分、バス停徒歩5分!
子育てに優しい立地にある明るい南向きの新築戸建!
敷地面積約55坪、ゆったり広い4LDKです。
ZEH水準の省エネ住宅♪
所在地 |
神奈川県横須賀市ハイランド3丁目 |
交通 |
京急久里浜線「京急久里浜」駅 バス11分 「ハイランド(横須賀市)」 停歩5分 |
|---|---|---|---|
築年数/階数 |
新築 / 2階建 |
販売価格
間取り
建物面積
土地面積
マイページ
詳細
新築一戸建
ハイランド三丁目新築戸建
新築一戸建
セールスポイント
京急久里浜線「京急久里浜」駅徒歩25分!閑静な住宅街に位置する新築戸建です。
☆リビング20帖超!ダイニング上部が吹抜のためさらに開放感がございます!
☆カースペース2台!前面道路も住宅街で交通量が少ない為駐車も楽々です。
☆室内大変おしゃれな作りでして、注文住宅のような建売住宅です。
☆区画・街並みが整った住宅街に位置しており、公園も多くあるため子育て環境充実!
詳細はウスイホーム久里浜まで!
所在地 |
神奈川県横須賀市ハイランド3丁目 |
交通 |
京急久里浜線「京急久里浜」駅 徒歩25分 |
|---|---|---|---|
築年数/階数 |
新築 / 2階建 |
販売価格
間取り
建物面積
土地面積
マイページ
詳細
新築一戸建
大矢部3丁目新築戸建
新築一戸建
セールスポイント
バス停徒歩3分!
スーパーやコンビニも近く生活便利な新築戸建!
大通りから中に入っているため静かで穏やかな住環境です♪
所在地 |
神奈川県横須賀市大矢部3丁目 |
交通 |
京急久里浜線「北久里浜」駅 バス6分 「大矢部2丁目」 停歩3分 |
|---|---|---|---|
築年数/階数 |
新築 / 2階建 |
販売価格
間取り
建物面積
土地面積
マイページ
詳細
セールスポイント
暮らしやすさと機能性を兼ね備えた新築戸建てが登場しました。価格は2,780万円と、新築物件としては非常にリーズナブル。家計に優しく、マイホームの夢を現実にしやすい物件です。
敷地内にはカースペースを2台分確保。ご夫婦で車を所有しているご家庭はもちろん、来客時にも安心です。周辺は閑静な住宅街で、車通りも少なく、落ち着いた生活環境が整っています。子育て世帯にもぴったりの立地です。
所在地 |
神奈川県横須賀市粟田1丁目 |
交通 |
京急久里浜線「YRP野比」駅 バス9分 「焼木坂」 停歩7分 |
|---|---|---|---|
築年数/階数 |
新築 / 2階建 |
販売価格
間取り
建物面積
土地面積
マイページ
詳細
新築一戸建
VerGarden久里浜6丁目 4号棟
新築一戸建
セールスポイント
◆京急久里浜駅まで平坦徒歩9分の3LDKSの物件になります。
◆各居室収納やパントリーなど収納豊ですっきりと生活できます。
◆商業施設や商店街なども近く、日々のお買い物に便利な立地。
◆久里浜海岸や久里浜花の国など、自然を身近に感じることができます。
所在地 |
神奈川県横須賀市久里浜6丁目 |
交通 |
京急久里浜線「京急久里浜」駅 徒歩9分 |
|---|---|---|---|
築年数/階数 |
新築 / 2階建 |
販売価格
間取り
建物面積
土地面積
マイページ
詳細
新築一戸建
VerGarden久里浜6丁目 6号棟
新築一戸建
セールスポイント
◆京急久里浜駅まで平坦徒歩9分の3LDKの物件になります。
◆各居室収納やパントリーなど収納豊ですっきりと生活できます。
◆商業施設や商店街なども近く、日々のお買い物に便利な立地。
◆久里浜海岸や久里浜花の国など、自然を身近に感じることができます。
所在地 |
神奈川県横須賀市久里浜6丁目 |
交通 |
京急久里浜線「京急久里浜」駅 徒歩9分 |
|---|---|---|---|
築年数/階数 |
新築 / 2階建 |
販売価格
間取り
建物面積
土地面積
マイページ
詳細
新築一戸建
*Vergarden野比3丁目*
新築一戸建
セールスポイント
~Vergarden野比3丁目全4棟中2棟販売 新築分譲住宅~
〇天井高2.7mの開放感あるリビングを実現
〇「YRP野比駅」まで徒歩17分
〇小学校・中学校徒歩圏内の立地
〇全窓シャッター付(掃き出し窓・腰窓のみ)
所在地 |
神奈川県横須賀市野比3丁目 |
交通 |
京急久里浜線「YRP野比」駅 徒歩17分 |
|---|---|---|---|
築年数/階数 |
新築 / 2階建 |
販売価格
間取り
建物面積
土地面積
マイページ
詳細
新築一戸建
Vergarde久里浜6丁目 全6棟
新築一戸建
セールスポイント
京急久里浜駅「平坦」徒歩9分の好立地!
利便性が魅力の新築戸建
所在地 |
神奈川県横須賀市久里浜6丁目13-1 |
交通 |
京急久里浜線「京急久里浜」駅 徒歩9分 |
|---|---|---|---|
築年数/階数 |
新築 / 2階建 |
販売価格
間取り
建物面積
土地面積
マイページ
詳細
新築一戸建
岩戸5丁目新築戸建
新築一戸建
セールスポイント
●京浜急行久里浜線「北久里浜」駅からバス12分、京急バス「岩戸町内会館」から徒歩6分
●リビングは吹き抜け、南向きの為、陽当良好です
●リビング横の和室はおしゃれな琉球畳です
●浴室乾燥機と2階洋室には室内物干しがあり、部屋干しも可能です
●駐車場は2台並列駐車可能です
所在地 |
神奈川県横須賀市岩戸5丁目12-5 |
交通 |
京急久里浜線「YRP野比」駅 徒歩47分 |
|---|---|---|---|
築年数/階数 |
新築 / 2階建 |
販売価格
間取り
建物面積
土地面積
マイページ
詳細
新築一戸建
粟田1丁目新築戸建
新築一戸建
セールスポイント
【完成済!内見のご予約承っております】
◎佐原ICまで車で6分・野比海岸まで車で10分
◎京急久里浜駅・YRP野比駅の2路線利用可
◎駐車スペース2台可能!(車種要確認)
所在地 |
神奈川県横須賀市粟田1丁目 |
交通 |
京急久里浜線「京急久里浜」駅 バス19分 「粟田かめさん公園」 停歩4分 |
|---|---|---|---|
築年数/階数 |
新築 / 2階建 |
販売価格
間取り
建物面積
土地面積
マイページ
詳細
新築一戸建
粟田2丁目新築戸建
新築一戸建
セールスポイント
●京浜急行久里浜線「YRP野比」駅からバス6分、京急バス「焼木坂」停から徒歩4分
●リビングは広々とした21畳!折上天井となり、開放的な印象です
●キッチンにはパントリーがあり、食品のストック収納に便利です
●2階の4.5畳洋室は間仕切り壁を設置すれば4LDKへ変更可能(有償)
●駐車場は2台並列駐車可能、前面道路も4mの幅があります
所在地 |
神奈川県横須賀市粟田2丁目27-13 |
交通 |
京急久里浜線「北久里浜」駅 徒歩41分 |
|---|---|---|---|
築年数/階数 |
新築 / 2階建 |
販売価格
間取り
建物面積
土地面積
マイページ
詳細
セールスポイント
◇京急長沢駅徒歩3分の駅近物件!
◆並列2台駐車可能です!
◇洗面室と脱衣室がセパレートされた間取り
◆SIC、WIC、玄関収納のある豊富な収納
◇20帖の広々リビング
◆室内カラーセレクト可能!
☆ベルガーデンシリーズの特徴☆
■天井高2.7mの開放的なリビングスペース
■食洗器付きシステムキッチン、浴室乾燥機、ウォシュレット
■高気密、高断熱、高効率な省エネ住宅(ZEH水準省エネ住宅に適合)
所在地 |
神奈川県横須賀市長沢1丁目 |
交通 |
京急久里浜線「京急長沢」駅 徒歩3分 |
|---|---|---|---|
築年数/階数 |
予定 / 2階建 |
販売価格
間取り
建物面積
土地面積
マイページ
詳細
新築一戸建
~VerGarden野比3丁目3号棟~残り2棟
新築一戸建
セールスポイント
~野比海岸まで徒歩4分・海が近くにある生活~
横須賀市立野比東小学校まで徒歩5分・横須賀市立野比中学校まで徒歩12分と通学に便利な立地であり、お子様のいる家庭におすすめの物件です!
カースペースは3台分(車種による・縦列)ございます!
所在地 |
神奈川県横須賀市野比3丁目 |
交通 |
京急久里浜線「YRP野比」駅 徒歩15分 |
|---|---|---|---|
築年数/階数 |
新築 / 2階建 |
販売価格
間取り
建物面積
土地面積
マイページ
詳細
新築一戸建
~VerGarden野比3丁目2号棟~残り2棟
新築一戸建
セールスポイント
~野比海岸まで徒歩4分・海が近くにある生活~
横須賀市立野比東小学校まで徒歩5分・横須賀市立野比中学校まで徒歩12分と通学に便利な立地であり、お子様のいる家庭におすすめの物件です!
カースペースは2台分(車種による・縦列)ございます!
所在地 |
神奈川県横須賀市野比3丁目 |
交通 |
京急久里浜線「YRP野比」駅 徒歩15分 |
|---|---|---|---|
築年数/階数 |
新築 / 2階建 |
販売価格
間取り
建物面積
土地面積
マイページ
詳細
チェックした物件を
該当物件29件 1〜29件表示
YRP野比周辺の情報
YRP野比の新築戸建て販売情報でよくある質問
YRP野比周辺の店舗情報
YRP野比の新築戸建て販売情報でよくあるご質問
新築戸建てを購入するメリットとは?
最新設備が満載:最新の建材や設備が採用されているため、快適な暮らしを送ることができます。 住宅性能が高い:断熱性や気密性が高く、省エネで快適な住環境が期待できます。 構造が新しく、耐久性が高い:新しい構造のため、高い耐震性や建物の耐久性が高く、安心して暮らすことができます。
新築戸建てのデメリットは?
価格が高い:中古戸建てに比べて、初期費用が高額になる傾向があります。 建築期間がかかる:注文住宅の場合、建築期間が長くなることがあります。 建売住宅の場合、間取りやデザインの自由度が低い:建売住宅は、あらかじめ設計された間取りやデザインから選ぶことになります。 周辺環境がまだ整っていない場合がある:新興住宅地の場合、周辺の施設がまだ少ないことがあります。
新築戸建てを探すときのポイントは?
予算:まずは、購入可能な予算を明確にし、それに合った物件を探しましょう。 立地:通勤・通学の便や周辺環境、将来的な発展性などを考慮し、理想の立地を選びましょう。 間取り:家族構成やライフスタイルに合った間取りかどうかをしっかりと確認しましょう。 設備:必要な設備が揃っているか、また、将来的な設備の増設も考慮しましょう。
新築戸建てで人気の設備は?
オール電化: ガスを使わないため、安全性が高く、光熱費を抑えることができます。 床暖房: 足元から暖めるため、快適な室内環境を実現できます。 浴室乾燥機: 雨の日でも洗濯物が乾かせ、浴室をカビから守ります。 スマートホーム: スマホで家電を操作できるなど、便利な機能が満載です。
新築戸建てを購入したら、どれくらいの期間で住めるようになる?
契約から引き渡しまで:住宅ローンの手続きなどがあるため、お客様への物件の引き渡しは契約から約1ヶ月後が目安です。 引き渡しから引っ越しまで:物件の引き渡し後にはカーテンレールやエアコン設置のリフォームがあるため、引き渡しから引っ越しまで2週間程度は見ておきましょう。 (リフォーム内容によって変動します)
近くの市区町村から探す
同じエリアにある駅から探す
特集から探す
- YRP野比駅の日当たり良好な新築一戸建て
- YRP野比駅のファミリー向け新築一戸建て
- YRP野比駅の駅徒歩10分以内の新築一戸建て
- YRP野比駅の南向き・南道路の新築一戸建て
- YRP野比駅のLDK15畳以上の新築一戸建て
- YRP野比駅の海が見える新築一戸建て
- YRP野比駅の庭付き新築一戸建て
YRP野比駅の不動産を別の種別から探す





































































































































































































































































































































































































































































































































































































































































































































































































































































































































































































































































































































































































































































































































































