YRP野比駅の中古一戸建て(中古住宅)一覧
「YRP野比駅」で19件の中古一戸建てが見つかりました。
YRP野比駅の中古戸建て物件情報を紹介したページです。リフォーム可能な物件や手頃な価格の物件など、幅広い選択肢をご紹介。中古物件のメリットや注意点、購入後の活用方法についても解説しています。ウスイホームがお得で魅力的な中古戸建てを見つけるお手伝いをします。
該当物件19件
×
中古一戸建
長沢4丁目 築浅中古一戸建
中古一戸建
セールスポイント
■IHクッキングヒーター・蓄電池・太陽光パネル・エコキュート
■令和2年11月築
■カースペース2台(車種制限あり)
■室内リフォーム後引渡(壁紙・クリーニング・庭木剪定 など)
所在地 |
神奈川県横須賀市長沢4丁目 |
建物面積 |
67.06㎡ |
||
|---|---|---|---|---|---|
販売価格 |
2680万円 |
築年数 |
築5年 |
間取り |
3LDK |
交通 |
京急久里浜線「京急長沢」駅 徒歩7分 |
||||
セールスポイント
◇令和元年築の注文住宅~窓の多い明るい邸宅~大矢部3丁目中古戸建セールスポイント◇
■窓の多さにこだわり設計した注文住宅
■令和元年築の築浅中古戸建
■リビングの中にタタミスペースあり
■カースペース2台分あり(1台は小さめの軽のみ可)
■おしゃれなインナーバルコニー
■お風呂にTVあり
■インスペクション調査済み
所在地 |
神奈川県横須賀市大矢部3丁目 |
建物面積 |
95.56㎡ |
||
|---|---|---|---|---|---|
販売価格 |
3330万円 |
築年数 |
築6年 |
間取り |
3LDK |
交通 |
京急久里浜線「北久里浜」駅 徒歩28分 |
||||
中古テラスハウス
武三丁目テラスハウス
中古テラスハウス
セールスポイント
室内外リフォーム済カースペース1台分付(車種による)の中古テラスハウスのご紹介です。間取はコンパクトですが、室内外新規でリフォームされており非常にきれいでお洒落な物件です。また1階には約5帖分のウッドデッキを新設したアウトドアリビングも魅力の物件。セカンドハウスや大人の隠れ家的な利用もご検討ください♪
所在地 |
神奈川県横須賀市武3丁目10-7 |
建物面積 |
58.74㎡ |
||
|---|---|---|---|---|---|
販売価格 |
650万円 |
築年数 |
築49年 |
間取り |
2LDK |
交通 |
横須賀線「衣笠」駅 バス15分 「竹川」 停歩7分 |
||||
投資向け物件
野比3丁目中古戸建
投資向け物件
セールスポイント
オーナーチェンジ物件、現状賃貸中。すぐに賃貸収入が得られます。2016年7月頃、内装壁、天井クロス張り替え済み、水廻り(キッチン、浴室、トイレ、洗面化粧台交換済み)、外壁塗装済み。敷地内駐車場あり(駐車スペースは限られますので、車種により駐車ができない場合があります。)高台につき、バルコニーからは海を遠望することができます。南側から東側にかけて開けておりますので、開放感のある立地です。
所在地 |
神奈川県横須賀市野比3丁目 |
建物面積 |
66.03㎡ |
||
|---|---|---|---|---|---|
販売価格 |
1180万円 |
築年数 |
築31年 |
利回り |
- |
物件種別 |
中古一戸建 |
建物構造 |
木造 / 2階建 |
||
交通 |
京急久里浜線「YRP野比」駅 徒歩18分 |
||||
セールスポイント
~ハイランド2丁目中古戸建てのご紹介~
◎2階LDKの開放感ある暖かい空間となります。
◎バス停から徒歩圏内の立地
◎ワイドバルコニーになっており、ホッとしたいときに寛げるスペースとなります。
◎カースペースも縦列で2台可能です。
◎居住用、セカンドハウスと両方ご活用いただけます。
所在地 |
神奈川県横須賀市ハイランド2丁目 |
建物面積 |
118.98㎡ |
||
|---|---|---|---|---|---|
販売価格 |
2780万円 |
築年数 |
築16年 |
間取り |
4LDK |
交通 |
京急久里浜線「YRP野比」駅 徒歩20分 |
||||
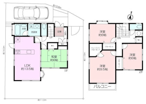
中古一戸建
ハイランド三丁目中古建て
中古一戸建
セールスポイント
築年数が浅い良好な中古物件になります。南に庭があり大型ウッドデッキが設置されています。室内の状態もとても良く日当たりも良好なので各室とても明るいです。敷地は高低差がなく並列で車が3台駐車することができます(車種による)前面道路幅員も6mですのでお車の出し入れはとてもスムーズかと思います。電動シャッターも設置されています。
所在地 |
神奈川県横須賀市ハイランド3丁目 |
建物面積 |
98.94㎡ |
||
|---|---|---|---|---|---|
販売価格 |
3680万円 |
築年数 |
築7年 |
間取り |
4LDK |
交通 |
京急久里浜線「YRP野比」駅 徒歩24分 |
||||
中古一戸建
ハイランド2丁目中古戸建
中古一戸建
セールスポイント
内外装リノベーション済!
公園目の前、前面道路幅6.4mの開放的な住環境!
全室6帖以上のゆったり広い4LDK中古戸建!
嬉しいお庭もあります♪
所在地 |
神奈川県横須賀市ハイランド2丁目 |
建物面積 |
107.3㎡ |
||
|---|---|---|---|---|---|
販売価格 |
2680万円 |
築年数 |
築28年 |
間取り |
4LDK |
交通 |
京急久里浜線「YRP野比」駅 徒歩17分 |
||||
中古一戸建
武3丁目中古戸建
中古一戸建
セールスポイント
カースペース付きの中古戸建!居室が4部屋と広々した間取りです。室内は少し傷んでおりますが、リフォーム・修繕を行えば充分利用できます。車通りも少なく、とてもゆったりとした生活を送ることができます。居住用でも投資用でも検討可能です!
所在地 |
神奈川県横須賀市武3丁目10-5 |
建物面積 |
80.18㎡ |
||
|---|---|---|---|---|---|
販売価格 |
499万円 |
築年数 |
築54年 |
間取り |
4LDK |
交通 |
京急久里浜線「YRP野比」駅 バス20分 「竹川」 停歩6分 |
||||
中古一戸建
南西角地 ハイランド三丁目中古戸建
中古一戸建
セールスポイント
土地50坪以上!南西角地に位置するハイランド三丁目中古戸建です。
☆京急久里浜線「京急久里浜」駅徒歩26分!JR横須賀線「久里浜」駅徒歩29分!
☆南西角地のため日当たり良好!建物2階からの眺望、風通りもご確認いただけます。
☆前面道路は幅員約6mですので開放感があります。
☆築年数は経っておりますがリフォーム履歴がございますので室内きれいです。
詳細や内見はウスイホーム久里浜まで!
所在地 |
神奈川県横須賀市ハイランド3丁目 |
建物面積 |
113.4㎡ |
||
|---|---|---|---|---|---|
販売価格 |
2980万円 |
築年数 |
築48年 |
間取り |
4LDK |
交通 |
京急久里浜線「京急久里浜」駅 徒歩26分 |
||||
中古一戸建
太田和1丁目中古戸建
中古一戸建
セールスポイント
公園目の前!
敷地面積約51坪、幅6.2mの道路に二面を接した開放的な中古戸建!
内外装リフォーム済の広々した4LDK!
南側に明るいお庭もあります♪
所在地 |
神奈川県横須賀市太田和1丁目 |
建物面積 |
110.13㎡ |
||
|---|---|---|---|---|---|
販売価格 |
2980万円 |
築年数 |
築32年 |
間取り |
4LDK |
交通 |
横須賀線「衣笠」駅 バス16分 「縦貫道下」 停歩6分 |
||||
中古一戸建
*築浅/カースペース3台分 長沢3丁目中古戸建て
中古一戸建
セールスポイント
◎カースペース(車種による)3台駐車可能です。
◎「YRP野比駅」徒歩約7分の立地。
◎アイランドキッチン仕様、2階から海が遠望できます。
◎築5年のこだわりの注文住宅。
◎ALSOK完備されており、セキュリティ面も安心。
所在地 |
神奈川県横須賀市長沢3丁目 |
建物面積 |
103.92㎡ |
||
|---|---|---|---|---|---|
販売価格 |
4580万円 |
築年数 |
築5年 |
間取り |
3LDK |
交通 |
京急久里浜線「YRP野比」駅 徒歩7分 |
||||
中古一戸建
海 見 え 武3丁目中古戸建
中古一戸建
セールスポイント
1階、2階から海の見える眺望大変良好な庭付き一戸建て
間取りも振り分けタイプの4DKの間取りになっており、南側には
庭スペースもあります。
南側の家が一段下がっている為、1階でも陽当たり良好な立地です。
カースぺースも車種制限はありますが1台分付いています。
現在空室の為いつでも内見可能です。是非一度現地をご覧下さい。
所在地 |
神奈川県横須賀市武3丁目15-1 |
建物面積 |
74.52㎡ |
||
|---|---|---|---|---|---|
販売価格 |
1080万円 |
築年数 |
築32年 |
間取り |
4DK |
交通 |
横須賀線「衣笠」駅 バス11分 「一騎塚」 停歩7分 |
||||
中古一戸建
*カースペース2台分*長沢6丁目中古戸建て
中古一戸建
セールスポイント
~長沢6丁目中古戸建て~
◎カースペース2台可(車種による)
◎平成17年築の建物となります。
◎「YRP野比駅」まで徒歩圏内の立地にて周辺環境充実しております。
◎中学校すぐそばの立地となります。
所在地 |
神奈川県横須賀市長沢6丁目 |
建物面積 |
77.84㎡ |
||
|---|---|---|---|---|---|
販売価格 |
1680万円 |
築年数 |
築20年 |
間取り |
3DK |
交通 |
京急久里浜線「YRP野比」駅 徒歩17分 |
||||
投資向け物件
OC久里浜3丁目中古戸建
投資向け物件
セールスポイント
■オーナーチェンジ物件
■月額65,000円で賃貸中(利回り5.6%)
■約10坪の庭でBBQやプールも可能
■夏には久里浜花火大会が一望できます
■令和7年に内外装リフォーム済
所在地 |
神奈川県横須賀市久里浜3丁目 |
建物面積 |
61.69㎡ |
||
|---|---|---|---|---|---|
販売価格 |
1380万円 |
築年数 |
築41年 |
利回り |
- |
物件種別 |
中古一戸建 |
建物構造 |
木造 / 2階建 |
||
交通 |
京急久里浜線「京急久里浜」駅 徒歩16分 |
||||
中古一戸建
大矢部四丁目中古戸建
中古一戸建
セールスポイント
□和のテイストを感じる日本住宅
□リフォーム履歴があり室内の状況は良好です。
□敷地面積約47坪以上で土地としても検討できます。
□1階には風情がある広めの縁側付
□南側前面が道路の為、日当たり良好です。
□1、2階の畳は琉球畳を使用で状態良好です。
□ガーデニングが楽しめそうな広いお庭付き
所在地 |
神奈川県横須賀市大矢部4丁目39-19 |
建物面積 |
115.26㎡ |
||
|---|---|---|---|---|---|
販売価格 |
1980万円 |
築年数 |
築37年 |
間取り |
4DK+1S(納戸) |
交通 |
京急久里浜線「北久里浜」駅 バス10分 「大矢部四丁目」 停歩5分 |
||||
セールスポイント
◇太田和1丁目のリフォーム施工戸建
◆室内リフォーム完工しました!内見可能です!
◆車庫1台有!幅や奥行にもゆとりがあります
◇憧れのルーフバルコニー(約8.5帖)のある戸建
◆全居室南西向きで、明るい空間です
◇小学校やスーパー、コンビニが近くにあり周辺環境良好
◆武山小学校・武山中学校
所在地 |
神奈川県横須賀市太田和1丁目 |
建物面積 |
95.22㎡ |
||
|---|---|---|---|---|---|
販売価格 |
2480万円 |
築年数 |
築17年 |
間取り |
4LDK |
交通 |
横須賀線「衣笠」駅 バス15分 「一騎塚」 停歩5分 |
||||
中古一戸建
ハイランド2丁目中古戸建
中古一戸建
セールスポイント
【価格改定!】
◎2025年12月、新規内外装リノベーション!
◎京急久里浜線「YRP野比駅」徒歩17分
◎前面道路幅員約6.4mと駐車もスムーズ
◎スーパー・小学校徒歩10分圏内で生活環境良好!
所在地 |
神奈川県横須賀市ハイランド2丁目24-16 |
建物面積 |
107.3㎡ |
||
|---|---|---|---|---|---|
販売価格 |
2680万円 |
築年数 |
築28年 |
間取り |
4LDK |
交通 |
京急久里浜線「YRP野比」駅 徒歩17分 |
||||
該当物件19件 1〜19件表示
YRP野比周辺の情報
YRP野比の中古戸建て販売情報でよくある質問
YRP野比周辺の店舗情報
YRP野比の中古戸建て販売情報でよくあるご質問
中古戸建てを購入するメリットとは?
価格が安い:新築戸建てに比べて、価格が安く抑えられることが多いです。 立地が良い物件が手に入りやすい:交通の便が良いなど、立地条件が良いエリアはすでに家が建っていることが多いため、新築物件で探すのは難しいことがあります。 リフォームで自分好みの空間にできる:中古戸建ては、リフォームすることで自分好みの空間にすることができます。 周辺環境が既にできあがっている:新築戸建てに比べて、周辺環境が既にできあがっているため、生活のイメージがしやすいです。
中古戸建てのデメリットは?
見えない劣化がある可能性がある:外見上は問題なくても、見えない部分に劣化がある可能性があります。 リフォーム費用がかかる場合がある: 老朽化した部分の修繕やリフォームが必要になる場合があります。 周辺住民との関係性: 長く住んでいる人が多く、地域との関係性がすでにできあがっている場合があります。 前の住人の生活痕が残っている場合がある: リノベーションがされていない場合、前の住人の生活痕が残っている場合があります。
中古戸建てを探すときのポイントは?
築年数: 築年数が古いほど、修繕が必要になる箇所が増える可能性があります。 予算: 中古物件はリフォームが必要になる場合が多いため、リフォーム金額も組み込んだうえで予算を立てましょう。 立地: 通勤・通学の便や周辺環境、将来的な発展性などを考慮し、理想の立地を選びましょう。 間取り: 家族構成やライフスタイルに合った間取りかどうかをしっかりと確認しましょう。 設備: 必要な設備が揃っているか、また、リフォームで交換・設置が必要な設備がないか確認しましょう。
中古物件をリフォームするときのポイントは?
建物診断:専門家による建物診断を依頼し、建物の状態を正確に把握しましょう。構造的な問題やシロアリ被害など、目に見えない部分の劣化も確認できます。 ライフラインの点検:電気配線、水道管、ガス管など、ライフラインの老朽化も確認しましょう。必要であれば、交換や増設工事が必要になる場合があります。 設備品の確認:エアコンなどの生活に必要な設備はしっかりついているかも確認しましょう。元々ついているものはちゃんと使うことができるのかを確認する必要があります。 リフォーム費用:リフォームの内容によって費用は大きく変動します。大規模なリフォームであれば、予算をしっかりと立てておくことが重要です。 余裕を持った計画: 工事中予想外の事態が発生することも考慮し、余裕を持ったスケジュールを立てましょう。
買いたい物件が空家ではなく居住中になっているのは?
居住中の販売物件:物件を売却しながらその物件に売主様が住んている物件も多くございます。 内見は可能な場合が多い:すでに家具や生活品が設置されているため、購入後のイメージがわきやすいことがメリットです。 売主様のとコミュニケーション:実際に住んでいて感じたメリットやデメリット、周辺環境を売主様と会話することもできます。
近くの市区町村から探す
同じエリアにある駅から探す
特集から探す
- YRP野比駅の日当たり良好な中古一戸建て
- YRP野比駅のファミリー向け中古一戸建て
- YRP野比駅の築浅中古一戸建て
- YRP野比駅のLDK15畳以上の中古一戸建て
- YRP野比駅のリフォーム・リノベーション済中古一戸建て
- YRP野比駅の海が見える中古一戸建て











































































































































































































































































































































































































































































































































































































































































































































































































































