浦賀駅の中古一戸建て(中古住宅)一覧
「浦賀駅」で27件の中古一戸建てが見つかりました。
浦賀駅の中古戸建て物件情報を紹介したページです。リフォーム可能な物件や手頃な価格の物件など、幅広い選択肢をご紹介。中古物件のメリットや注意点、購入後の活用方法についても解説しています。ウスイホームがお得で魅力的な中古戸建てを見つけるお手伝いをします。
該当物件27件
×
中古一戸建
浦上台1丁目中古戸建
中古一戸建
セールスポイント
-浦上台1丁目中古-
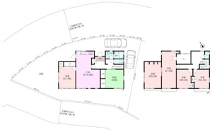
〇北西角地の4LDK中古
〇平成20年に大規模リフォーム
〇ベース賃貸にも検討いただけます
所在地 |
神奈川県横須賀市浦上台1丁目19-1 |
建物面積 |
97.73㎡ |
||
|---|---|---|---|---|---|
販売価格 |
2490万円 |
築年数 |
築53年 |
間取り |
4LDK |
交通 |
京急本線「浦賀」駅 徒歩10分 |
||||
中古一戸建
~ 海を望める戸建 走水 ~ 敷地面積117坪
中古一戸建
セールスポイント
オーシャンビュー 敷地面積約117坪のリフォーム済み中古戸建です。カースペース2台分ございますが増設も可能。建物の室内からも海を望めます。建物はほぼリフォーム済みのため、手を加えずともそのまま利用可能です。バス停までも徒歩1分の好立地です。
所在地 |
神奈川県横須賀市走水2丁目 |
建物面積 |
113.43㎡ |
||
|---|---|---|---|---|---|
販売価格 |
4600万円 |
築年数 |
築57年 |
間取り |
4LDK |
交通 |
京急本線「浦賀」駅 徒歩44分 |
||||
投資向け物件
【ベ ー ス 賃 貸 中】桜が丘2丁目中古戸建
投資向け物件
セールスポイント
~ベース賃貸中・室内リフォーム済中古戸建~
■京急本線「馬堀海岸駅」まで徒歩約9分
■賃料189,000円でベース賃貸中
■東京湾の魅力溢れるオーシャンビュー
■公園や学校も近くにあり子育てがしやすいエリア
所在地 |
神奈川県横須賀市桜が丘2丁目7-15 |
建物面積 |
85.33㎡ |
||
|---|---|---|---|---|---|
販売価格 |
1980万円 |
築年数 |
築37年 |
利回り |
表面11.45% |
物件種別 |
中古一戸建 |
建物構造 |
軽量鉄骨 / 2階建 |
||
交通 |
京急本線「馬堀海岸」駅 徒歩9分 |
||||
セールスポイント
【駅まで5分の好立地*随時内見可能*3台駐車可】浦賀1丁目中古戸建
●人気の浦賀エリア、静かな住環境
●駅まで徒歩5分の好立地
●室内大変綺麗にお使いです
●3台駐車可能(車種による)
●ご案内のご予約は随時承っております
詳細は「ウスイホーム㈱馬堀海岸店」までお問い合わせをお願いいたします。
所在地 |
神奈川県横須賀市浦賀1丁目 |
建物面積 |
86.12㎡ |
||
|---|---|---|---|---|---|
販売価格 |
1980万円 |
築年数 |
築23年 |
間取り |
4LDK |
交通 |
京急本線「浦賀」駅 徒歩5分 |
||||
投資向け物件
【賃 貸 中】馬堀町3丁目中古戸建
投資向け物件
セールスポイント
●賃料210,000円で賃貸中
●風通し・陽当り良好
●閑静な住宅街にある一戸建て
●外壁塗装済・室内リフォーム済
●馬堀海岸駅まで徒歩10分圏内の好立地
所在地 |
神奈川県横須賀市馬堀町3丁目 |
建物面積 |
93.77㎡ |
||
|---|---|---|---|---|---|
販売価格 |
2390万円 |
築年数 |
築23年 |
利回り |
表面10.54% |
物件種別 |
中古一戸建 |
建物構造 |
木造 / 2階建 |
||
交通 |
京急本線「馬堀海岸」駅 徒歩7分 |
||||
中古一戸建
【眺望良好×陽だまり】小原台中古戸建
中古一戸建
セールスポイント
■京浜急行本線「浦賀」駅からバス10分、京急バス「小原台入口」停から徒歩14分
■平成17年9月内装一部リフォーム済み
■LD19帖と広々としており、家具を置いても充分な広さです
■9帖のロフト付きの為、お子様の遊ぶスペースや荷物置きとしてもお使いいただけます
■リビング天井高4.5m/洗面台人工大理石/食器洗浄乾燥機/2面バルコニー
所在地 |
神奈川県横須賀市小原台10-7 |
建物面積 |
104.45㎡ |
||
|---|---|---|---|---|---|
販売価格 |
1680万円 |
築年数 |
築35年 |
間取り |
4LDK |
交通 |
京急本線「浦賀」駅 徒歩25分 |
||||
中古一戸建
吉井1丁目中古戸建
中古一戸建
セールスポイント
三井ホーム施工の注文建築。高台に立地しているので目線が気になりません。西から南側にかけて建物がなく、開放感があります。地下車庫1台分あり、シャッター付で大切な愛車を駐車できます。南側に庭があり日当たり良好です。断熱性、耐震性に優れた2×4工法住宅。南側から西側にかけてはなにも遮る物がなく、周辺の緑や公園を見渡せます。納戸をリモートワークの部屋として活用もできます。
所在地 |
神奈川県横須賀市吉井1丁目11-1 |
建物面積 |
86.12㎡ |
||
|---|---|---|---|---|---|
販売価格 |
1890万円 |
築年数 |
築28年 |
間取り |
2LDK+1S(納戸) |
交通 |
京急久里浜線「京急久里浜」駅 バス11分 「山手入口(神奈川県)」 停歩6分 |
||||
中古一戸建
久比里2丁目分譲住宅
中古一戸建
セールスポイント
利便性が良く人気の久里浜エリア!
食洗機や浴室乾燥機等充実設備のお家です♪
南側にはお庭もあるオールフローリングの4LDK!
所在地 |
神奈川県横須賀市久比里2丁目 |
建物面積 |
94.39㎡ |
||
|---|---|---|---|---|---|
販売価格 |
4090万円 |
築年数 |
築1年 |
間取り |
4LDK |
交通 |
京急久里浜線「京急久里浜」駅 徒歩8分 |
||||
中古一戸建
浦賀6丁目中古戸建
中古一戸建
セールスポイント
車種により縦列で2台駐車可能な一戸建て住宅です。
浦賀駅からほぼ平坦な道のりで徒歩12分で行くことが出来、バスを利用して久里浜駅にも出ることが出来る物件です。
大通りから離れるため、静かな住環境となっております。
各部屋6帖以上の広々した4DKの間取りで、ファミリー世帯も居住可能
玄関前、建物裏には小さな庭スペースもあります。
スーパー、百円ショップまでも徒歩7分で、買い物便利な立地です
所在地 |
神奈川県横須賀市浦賀6丁目14-12 |
建物面積 |
86.94㎡ |
||
|---|---|---|---|---|---|
販売価格 |
1080万円 |
築年数 |
築44年 |
間取り |
4DK |
交通 |
京急本線「浦賀」駅 徒歩12分 |
||||
中古一戸建
南浦賀中古戸建
中古一戸建
セールスポイント
南西角地!土地80坪以上の大和ハウス施工の専有面積約190㎡の大型戸建です。
☆京急久里浜線「京急久里浜」駅徒歩20分、JR横須賀線「久里浜」駅徒歩21分です。
☆各居室6帖以上でして、納戸やウォークインクローゼットがあり収納たっぷりです。
☆カースペース縦列2台分ございます。
☆敷地にゆとりがあるため、ガーデニング等楽しめます。
詳細や内見はウスイホーム久里浜までご連絡ください!
所在地 |
神奈川県横須賀市南浦賀 |
建物面積 |
189.55㎡ |
||
|---|---|---|---|---|---|
販売価格 |
4380万円 |
築年数 |
築27年 |
間取り |
6LDK |
交通 |
京急久里浜線「京急久里浜」駅 徒歩20分 |
||||
中古一戸建
*価 格 改 定*二葉1丁目中古戸建
中古一戸建
セールスポイント
~二葉1丁目中古戸建~
▼建物約110㎡の広々とした4LDK
▼南側に大きなお庭付き
所在地 |
神奈川県横須賀市二葉1丁目 |
建物面積 |
110.07㎡ |
||
|---|---|---|---|---|---|
販売価格 |
1250万円 |
築年数 |
築49年 |
間取り |
4LDK |
交通 |
京急本線「浦賀」駅 徒歩14分 |
||||
中古一戸建
【庭付き】浦上台2丁目中古戸建
中古一戸建
セールスポイント
〇京急本線「浦賀駅」徒歩9分の好立地です。
〇庭付き・カースペース1台付きです。
〇LDK約15帖と広々とした間取りです。
〇南向きの為日当たり良好です。
〇風通しの良いお部屋です。
〇各階にトイレ・独立洗面台・追い焚き等設備が充実しております。
〇静かで落ち着いた住環境です。
〇収納豊富です。
所在地 |
神奈川県横須賀市浦上台2丁目 |
建物面積 |
97.71㎡ |
||
|---|---|---|---|---|---|
販売価格 |
1980万円 |
築年数 |
築19年 |
間取り |
3LDK |
交通 |
京急本線「浦賀」駅 徒歩9分 |
||||
中古一戸建
西浦賀三丁目中古戸建
中古一戸建
セールスポイント
~西浦賀三丁目リフォーム済み中古戸建~
◎室内外の一部を新規リフォーム済み
◎陽当り・通風・眺望が良好な静かな環境
◎カースペース1台分有り
◎開放感のあるウッドデッキ
所在地 |
神奈川県横須賀市西浦賀3丁目11-20 |
建物面積 |
85.29㎡ |
||
|---|---|---|---|---|---|
販売価格 |
1990万円 |
築年数 |
築20年 |
間取り |
3LDK |
交通 |
京急本線「浦賀」駅 徒歩21分 |
||||
投資向け物件
OC鴨居2丁目中古戸建
投資向け物件
セールスポイント
~オーナーチェンジ物件~鴨居2丁目中古戸建
●月額53,000円で賃貸中(利回り約8.0%)
●カースペース1台有り
●バス停まで徒歩4分
所在地 |
神奈川県横須賀市鴨居2丁目28-9 |
建物面積 |
77.84㎡ |
||
|---|---|---|---|---|---|
販売価格 |
780万円 |
築年数 |
築38年 |
利回り |
- |
物件種別 |
中古一戸建 |
建物構造 |
木造 / 2階建 |
||
交通 |
京急本線「浦賀」駅 バス12分 「脇方(神奈川県)」 停歩4分 |
||||
中古一戸建
「海 一 望」東浦賀1丁目中古戸建
中古一戸建
セールスポイント
2階から海一望の眺望良好な一戸建てで、セカンドハウスとしても検討できる物件です
現状化カースペースはありませんが、道路との高低差はなく、自転車・バイクは駐輪可能です。
浦賀駅まで徒歩圏内で駅徒歩圏内には京急ストア、セブンイレブンもあり買い物便利です。
南側には庭スペースもあり、ゆったりとした生活ができる環境です。
現在空室のため室内いつでも内見可能です
所在地 |
神奈川県横須賀市東浦賀1丁目18-16 |
建物面積 |
66.25㎡ |
||
|---|---|---|---|---|---|
販売価格 |
880万円 |
築年数 |
築55年 |
間取り |
5K |
交通 |
京急本線「浦賀」駅 徒歩14分 |
||||
投資向け物件
西浦賀4丁目戸建
投資向け物件
セールスポイント
現在53,000円で賃貸中のオーナーチェンジ戸建
道幅が狭く車の侵入はできませんが、道路との高低差の無い敷地です。
バス停から徒歩3分の立地で通勤・通学便利で、徒歩圏内に
浦賀病院、ファミリーマート等あり、海までも歩いて行けます。
所在地 |
神奈川県横須賀市西浦賀4丁目1-22 |
建物面積 |
80.94㎡ |
||
|---|---|---|---|---|---|
販売価格 |
480万円 |
築年数 |
築38年 |
利回り |
表面10.2% |
物件種別 |
中古一戸建 |
建物構造 |
木造 / 2階建 |
||
交通 |
京急久里浜線「京急久里浜」駅 バス15分 「浦賀病院前」 停歩3分 |
||||
中古一戸建
湘南山手分譲地内 吉井4丁目中古戸建
中古一戸建
セールスポイント
湘南山手分譲地内のダイワハウス施行の一戸建て
南側には庭スペースがあり、家庭菜園を楽しめます。
使い勝手のいい4SLDKの間取りになっており、全部屋南側に窓があり室内大変明るいです。
カースぺースは2台分あり、バス停まで徒歩2分で通勤・通学も不便ありません。
2020年には外壁・屋根の塗装も行っている外観きれいな物件となっております。
所在地 |
神奈川県横須賀市吉井4丁目 |
建物面積 |
124.63㎡ |
||
|---|---|---|---|---|---|
販売価格 |
3480万円 |
築年数 |
築25年 |
間取り |
4LDK |
交通 |
京急本線「馬堀海岸」駅 徒歩18分 |
||||
投資向け物件
海一望鴨居3丁目中古戸建
投資向け物件
セールスポイント
庭部分、1階室内、2階から海が一望の眺望大変良好な一戸建て住宅
500㎡を超える広々した敷地で、庭スペース大きくとってあり、南側は一段下がっているため日当たりも大変良好です。
カースペースは地下車庫で車種により2台駐車可能です。
現在350,000円でベース賃貸している物件で、前入居者が退去の日にそのまま内見し申し込みは入っています。
投資用としてもいいですが、セカンドハウスや保養所等の利用可能
所在地 |
神奈川県横須賀市鴨居3丁目 |
建物面積 |
176㎡ |
||
|---|---|---|---|---|---|
販売価格 |
6480万円 |
築年数 |
築15年 |
利回り |
表面6.4% |
物件種別 |
中古一戸建 |
建物構造 |
木造 / 2階建 |
||
交通 |
京急本線「浦賀」駅 バス10分 「鴨居(横須賀市)」 停歩5分 |
||||
中古一戸建
*建物35坪×敷地78坪*二葉1丁目中古戸建
中古一戸建
セールスポイント
〇京急本線「浦賀」駅まで徒歩14分の距離!
〇建物床面積が1階71.93㎡・2階44.58㎡の5LDKとゆとりのある間取り。
〇交通量の少ない閑静な住宅街。
〇敷地の南側には広々としたお庭あり。
〇増築未登記部分15.04㎡あり。
本物件は空家のため、いつでも内見が可能です。
また弊社ではリフォーム部門もございますので、
リフォーム相談もお気軽にお申し付けください。
所在地 |
神奈川県横須賀市二葉1丁目 |
建物面積 |
116.51㎡ |
||
|---|---|---|---|---|---|
販売価格 |
2200万円 |
築年数 |
築55年 |
間取り |
5LDK |
交通 |
京急本線「浦賀」駅 徒歩14分 |
||||
投資向け物件
【大型貸駐車場付き】浦賀2丁目中古戸建
投資向け物件
セールスポイント
■京急本線「馬堀海岸」駅から徒歩17分、京急バス6分「水道局前」停から徒歩2分
■建物は全部屋7帖以上、LDK22帖とゆったりとした間取りです
■自己居住でも投資(ベース賃貸)でもどちらもオススメです
■貸駐車場42台付き(月額11,000~16,000円、全42台中18台契約中)
※月極駐車場はオーナーチェンジとなります
※月極駐車場は月232,000円の収入です(2025年9月9日現在)
所在地 |
神奈川県横須賀市浦賀2丁目 |
建物面積 |
119.59㎡ |
||
|---|---|---|---|---|---|
販売価格 |
7000万円 |
築年数 |
築46年 |
利回り |
表面11.8% |
物件種別 |
中古一戸建 |
建物構造 |
木造 / 2階建 |
||
交通 |
京急本線「馬堀海岸」駅 徒歩17分 |
||||
中古一戸建
鴨居3丁目借地権付き中古戸建て
中古一戸建
セールスポイント
鴨居3丁目借地権付き戸建て
●120㎡越えの大きな間取り
●人気のお庭付き物件
●外壁・屋根リフォーム履歴あり
●2階主寝室には洗面スペース有
●キッチン横には納戸があり、収納に便利
所在地 |
神奈川県横須賀市鴨居3丁目9-9 |
建物面積 |
128.88㎡ |
||
|---|---|---|---|---|---|
販売価格 |
1000万円 |
築年数 |
築43年 |
間取り |
4LDK |
交通 |
京急本線「浦賀」駅 バス10分 「鴨居(横須賀市)」 停歩3分 |
||||
セールスポイント
~お庭付き・カースペース2台~鴨居3丁目中古戸建て
●間取りはファミリー向けの4SLDK
●室内の状態・陽当り良好
●人気のお庭付き物件
●駐車場2台分あり
所在地 |
神奈川県横須賀市鴨居3丁目78-25 |
建物面積 |
102.67㎡ |
||
|---|---|---|---|---|---|
販売価格 |
2180万円 |
築年数 |
築19年 |
間取り |
4LDK |
交通 |
京急本線「浦賀」駅 バス13分 「堀田(神奈川県)」 停歩8分 |
||||
該当物件27件 1〜27件表示
浦賀周辺の情報
浦賀の中古戸建て販売情報でよくある質問
浦賀周辺の店舗情報
浦賀の中古戸建て販売情報でよくあるご質問
中古戸建てを購入するメリットとは?
価格が安い:新築戸建てに比べて、価格が安く抑えられることが多いです。 立地が良い物件が手に入りやすい:交通の便が良いなど、立地条件が良いエリアはすでに家が建っていることが多いため、新築物件で探すのは難しいことがあります。 リフォームで自分好みの空間にできる:中古戸建ては、リフォームすることで自分好みの空間にすることができます。 周辺環境が既にできあがっている:新築戸建てに比べて、周辺環境が既にできあがっているため、生活のイメージがしやすいです。
中古戸建てのデメリットは?
見えない劣化がある可能性がある:外見上は問題なくても、見えない部分に劣化がある可能性があります。 リフォーム費用がかかる場合がある: 老朽化した部分の修繕やリフォームが必要になる場合があります。 周辺住民との関係性: 長く住んでいる人が多く、地域との関係性がすでにできあがっている場合があります。 前の住人の生活痕が残っている場合がある: リノベーションがされていない場合、前の住人の生活痕が残っている場合があります。
中古戸建てを探すときのポイントは?
築年数: 築年数が古いほど、修繕が必要になる箇所が増える可能性があります。 予算: 中古物件はリフォームが必要になる場合が多いため、リフォーム金額も組み込んだうえで予算を立てましょう。 立地: 通勤・通学の便や周辺環境、将来的な発展性などを考慮し、理想の立地を選びましょう。 間取り: 家族構成やライフスタイルに合った間取りかどうかをしっかりと確認しましょう。 設備: 必要な設備が揃っているか、また、リフォームで交換・設置が必要な設備がないか確認しましょう。
中古物件をリフォームするときのポイントは?
建物診断:専門家による建物診断を依頼し、建物の状態を正確に把握しましょう。構造的な問題やシロアリ被害など、目に見えない部分の劣化も確認できます。 ライフラインの点検:電気配線、水道管、ガス管など、ライフラインの老朽化も確認しましょう。必要であれば、交換や増設工事が必要になる場合があります。 設備品の確認:エアコンなどの生活に必要な設備はしっかりついているかも確認しましょう。元々ついているものはちゃんと使うことができるのかを確認する必要があります。 リフォーム費用:リフォームの内容によって費用は大きく変動します。大規模なリフォームであれば、予算をしっかりと立てておくことが重要です。 余裕を持った計画: 工事中予想外の事態が発生することも考慮し、余裕を持ったスケジュールを立てましょう。
買いたい物件が空家ではなく居住中になっているのは?
居住中の販売物件:物件を売却しながらその物件に売主様が住んている物件も多くございます。 内見は可能な場合が多い:すでに家具や生活品が設置されているため、購入後のイメージがわきやすいことがメリットです。 売主様のとコミュニケーション:実際に住んでいて感じたメリットやデメリット、周辺環境を売主様と会話することもできます。
近くの市区町村から探す
同じエリアにある駅から探す
特集から探す
- 浦賀駅の日当たり良好な中古一戸建て
- 浦賀駅のファミリー向け中古一戸建て
- 浦賀駅の築浅中古一戸建て
- 浦賀駅のLDK15畳以上の中古一戸建て
- 浦賀駅のリフォーム・リノベーション済中古一戸建て
- 浦賀駅の海が見える中古一戸建て













































































































































































































































































































































































































































































































































































































































































































































































































































































































































































































































































































































































































































































































































































