逗子ヘルス・ケア・マンション 物件詳細
価格価格(管理費等)180万円(81,848円) 間取り1LDK 専有面積43.73㎡ 築年数築42年
逗子ヘルス・ケア・マンションのおすすめポイント
逗子ヘルス・ケア・マンションは、数少ない中・高齢者向け所有権方式のマンションです。
◎所有権方式ですので、相続できます。
◎協力医療機関、看護師による健康相談。
◎専任の栄養士、調理師によるカロリー・栄養バランスを考慮した食事。
◎クラブ活動が盛んです。
◎併設の逗子パーク・ヴィラでは終身介護を行なっています。
こだわりの条件 |
|
|---|---|
設備 |
オール電化。給湯電気温水器。 |
物件情報
物件名 |
逗子ヘルス・ケア・マンション |
価格 |
180万円(管理費 81,848円) |
|---|---|---|---|
所在地 |
神奈川県逗子市小坪3丁目2-1 |
交通 |
京急逗子線 逗子・葉山駅 徒歩28分 |
間取り |
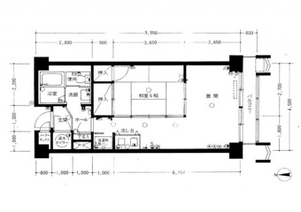
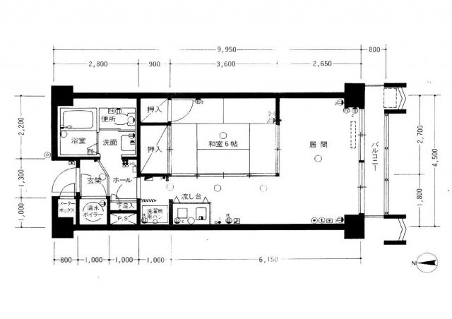
1LDK |
専有面積/バルコニー面積 |
43.73㎡/4㎡ |
ルーフバルコニー面積 |
- |
テラス面積/専用庭面積 |
-/- |
修繕積立金 |
15,730円 |
修繕積立基金 |
- |
権利金 |
- |
駐車場 |
-/- |
土地の敷金/保証金 |
-/- |
借地料/借地期間 |
-/- |
土地権利 |
所有権 |
国土法届出要否 |
不要 |
用途地域 |
第一種住居 |
地勢 |
- |
築年数 |
築42年 |
種別/構造 |
中古マンション/鉄筋コンクリート |
所在階 |
4階/6階建 |
向き |
南 |
棟総戸数/販売戸数 |
-/- |
入居可能日 |
- |
管理組合有無 |
有 |
管理形態 |
管理会社に全部委託 |
管理員の勤務形態 |
常駐 |
管理会社 |
- |
取引態様 |
一般媒介 |
現況 |
空家 |
引渡し |
相談 |
建築確認番号 |
- |
設備 |
日当たり良好/眺望良好/室内洗濯機置場/バルコニー/公営水道/公共下水/オール電化/エレベーター/電気有/IHクッキングヒーター/コンロ1口/バス・トイレ別 |
||
備考 |
※管理費保証金は、管理契約所定条項に従って債務分を差し引き残金を無利息にて返金し、同じく、逗子パーク・ヴィラ管理・運営一時金は、所定条項に従って償却いたします。 |
||
設備(その他) |
オール電化。給湯電気温水器。 |
||
条件(その他) |
食費月:4万8,206円 逗子パークヴィラ施設管理・運営一時金一括:396万円 修繕積立一時金一括:110万円 |
||
管理コード |
84775367 |
||
情報更新日 |
2026年02月02日 |
取引条件の有効期限 |
2026年02月16日 |
※地図上に表示される物件の位置は付近住所に所在することを表すものであり、実際の物件所在地とは異なる場合がございます。
取り扱い店舗
神奈川県知事 (12) 第10799号
所在地 |
神奈川県横須賀市馬堀海岸2丁目27-7 |
||
|---|---|---|---|
TEL |
0120-938-155 |
|---|
物件番号 |
84775367 |
|---|
お電話でお問い合わせの際は |
お問い合わせ
逗子ヘルス・ケア・マンション
価格180万円
築42年 / - / 1LDK / 43.73㎡
物件番号 |
物件種別 |
所在地 |
価格 |
面積/間取り |
|---|---|---|---|---|
84775367 |
中古マンション |
神奈川県逗子市小坪3丁目2-1 |
180万円 |
43.73㎡/1LDK |
- 入力
- 完了
