×

横浜市杉田8期1棟 物件詳細

新築一戸建

横浜市杉田8期1棟

価格価格5980万円 間取り4LDK 専有面積101.02㎡ 築年数予定

-

横浜市杉田8期1棟のおすすめポイント

◇2026年2月下旬築予定の新築戸建!
◇角地につき陽当り良好!
◇駐車場2台駐車可能!
◇是非一度お問い合わせください!

こだわりの条件

  • バス・トイレ別

  • 追い焚き

  • 浴室乾燥機

  • 洗面所独立

  • 温水洗浄便座

  • エアコン

  • 都市ガス

  • インターネット無料

  • 宅配ボックス

  • オートロック

  • TV付きモニターホン

  • 2階以上

物件情報

物件名

横浜市杉田8期1棟

価格

5980万円

所在地

神奈川県横浜市磯子区杉田8丁目

交通

京急本線 杉田駅 徒歩21分
「上中里町」バス停下車 徒歩5分
京浜東北線 新杉田駅 徒歩20分

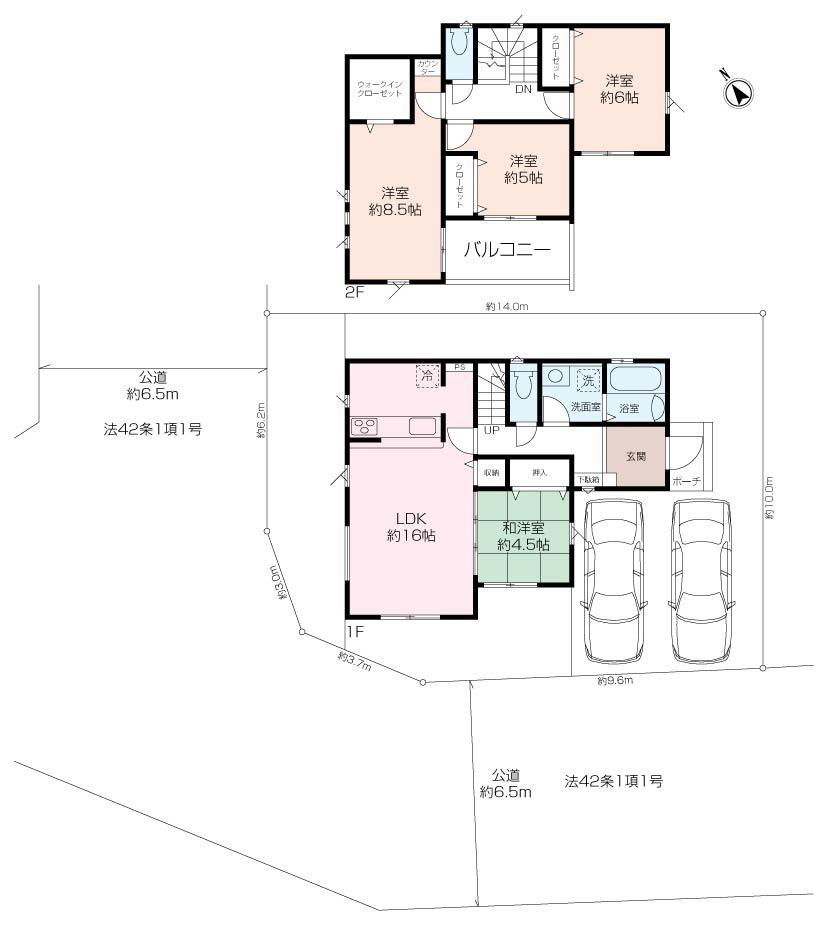
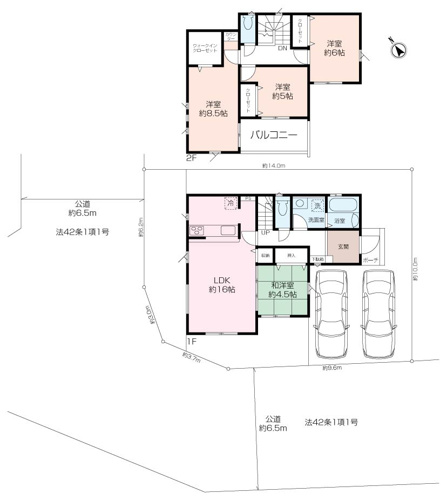
間取り/詳細

4LDK/
LDK 16帖 1室/和室 4.5帖 1室/洋室 8.5帖 1室/洋室 6帖 1室/洋室 5帖 1室

建物面積(坪数)

101.02㎡(30.55坪)

土地の敷金/保証金

-/-

借地料/借地期間

-/-

土地権利

所有権

土地面積(坪数)

140.54㎡(42.51坪)

傾斜地部分面積

-

路地状敷地

-

私道負担面積/セットバック

-/-

高圧線下面積

-

地目/地勢

宅地/-

接道状況

角地(南西 公道 6.5m 間口 9.6m)(北西 公道 6.5m 間口 6.2m)

建ぺい率/容積率

60%/80%

用途地域

第一種低層住居専用

都市計画

市街化区域

種別/構造

新築一戸建/木造

階建

2階建

築年数

予定

総区画数/販売区画数

-/-

向き

南西

現況

未完成

その他の法令上の制限

-

取引態様

仲介

引渡時期

2026年2月下旬

設備

日当たり良好/閑静な住宅地/室内洗濯機置場/フローリング/バルコニー/都市ガス/公営水道/公共下水/24時間換気システム/システムキッチン/バス・トイレ別/浴室乾燥機/トイレ2ヶ所/独立洗面台/ウォークインクロゼット/収納豊富/TVモニタ付インターホン

備考

ウスイホーム(株)上大岡店は地元密着の不動産屋です。

【こんなお悩みありませんか?】
・まだ探し始めで具体的ではないけど相談してみたい
・ローンについて全く分からないので一から教えてほしい
・自分たちの理想はあるけど、実際どのくらいの家がかえるのかな?
・どんな家があるのか、とりあえず見てみたい!
・今の家を売って住み替えたいけどタイミングがわからない

ご安心してお任せください!
お客様一人一人のご希望を丁寧にお伺いし、物件探しのお手伝いをさせていただきます。
周辺環境を熟知したスタッフが対応いたしますので、お気軽にご相談ください。

建築確認番号

第HPA-25-13168-1号

管理コード

99779821

情報更新日

2026年01月12日

取引条件の有効期限

2026年01月26日

※地図上に表示される物件の位置は付近住所に所在することを表すものであり、実際の物件所在地とは異なる場合がございます。

周辺環境

杉田大谷第二公園
杉田大谷第二公園(徒歩4分/247m)

取り扱い店舗

ウスイホーム株式会社 上大岡店 地図

神奈川県知事 (12) 第10799号

所在地

神奈川県横浜市港南区上大岡西1丁目10-11 

TEL

0120-938-175

物件番号

99779821

お電話でお問い合わせの際は
「物件番号」をお伝えいただくとスムーズです

お問い合わせ

新築一戸建

横浜市杉田8期1棟

価格5980万円

予定 / - / 4LDK / 101.02㎡

物件番号

物件種別

所在地

価格

面積/間取り

99779821

新築一戸建

神奈川県横浜市磯子区杉田8丁目

5980万円

101.02㎡/4LDK

  • 入力
  • 完了

要望必須

※ご要望を選択してください。

お名前必須

※お名前を入力してください。

メールアドレス必須

※メールアドレス形式に誤りがあります。

電話番号任意

内容任意

利用規約及び個人情報保護方針を必ずお読みください。左記内容に同意いただいた場合は、確認画面へお進み下さい。

この物件と同じ駅、隣接駅の物件を探す

この物件と同じ沿線の物件を探す