鴨居3丁目3期新築一戸建て 物件詳細
価格価格4780万円 間取り4LDK 専有面積117.78㎡ 築年数予定
鴨居3丁目3期新築一戸建てのおすすめポイント
お洒落なデザイン階段のある吹抜のリビング!
閑静な住宅街の東南角地に建つ長期優良住宅!
敷地面積約56坪、ゆったり広い4LDK新築戸建です♪
こだわりの条件 |
|
|---|
物件情報
物件名 |
鴨居3丁目3期新築一戸建て |
価格 |
4780万円 |
|---|---|---|---|
所在地 |
神奈川県横須賀市鴨居3丁目 |
交通 |
京急本線 浦賀駅 バス10分 「小原台入口(横須賀市)」 停歩11分 |
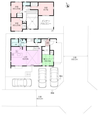
間取り/詳細 |
4LDK/ |
建物面積(坪数) |
117.78㎡(35.62坪) |
土地の敷金/保証金 |
-/- |
借地料/借地期間 |
-/- |
土地権利 |
所有権 |
土地面積(坪数) |
186.76㎡(56.49坪) |
傾斜地部分面積 |
- |
路地状敷地 |
- |
私道負担面積/セットバック |
-/無 |
高圧線下面積 |
- |
地目/地勢 |
宅地/高台 |
接道状況 |
角地(南西 公道 4m)(北東 公道 6m) |
建ぺい率/容積率 |
40%/80% |
用途地域 |
第一種低層住居専用 |
都市計画 |
- |
種別/構造 |
新築一戸建/木造 |
階建 |
2階建 |
築年数 |
予定 |
総区画数/販売区画数 |
1区画/1区画 |
向き |
南西 |
現況 |
未完成 |
その他の法令上の制限 |
景観法/宅地造成及び特定盛土等規制法/風致地区/建築協定有 |
取引態様 |
仲介 |
引渡時期 |
2026年3月下旬 |
設備 |
日当たり良好/閑静な住宅地/天井が高い/ファミリー向け/室内洗濯機置場/フローリング/バルコニー/都市ガス/公営水道/公共下水/24時間換気システム/電気有/インナーバルコニー/耐震構造/ガスコンロ/コンロ2口以上/食器洗い乾燥機/システムキッチン/対面式キッチン/コンロ3口/オープンキッチン/バス・トイレ別/追焚機能浴室/浴室乾燥機/トイレ2ヶ所/浴室1坪以上/独立洗面台/床下収納/収納豊富/宅配ボックス/複層ガラス/ディンプルキー |
||
建築確認番号 |
第R07SHC12541号 |
管理コード |
99496235 |
情報更新日 |
2026年01月19日 |
取引条件の有効期限 |
2026年02月02日 |
※地図上に表示される物件の位置は付近住所に所在することを表すものであり、実際の物件所在地とは異なる場合がございます。
周辺環境
取り扱い店舗
神奈川県知事 (12) 第10799号
所在地 |
神奈川県横須賀市久里浜4丁目6-12 |
||
|---|---|---|---|
TEL |
0120-938-151 |
|---|
物件番号 |
99496235 |
|---|
お電話でお問い合わせの際は |
STAFF COMMENT
お問い合わせ
鴨居3丁目3期新築一戸建て
価格4780万円
予定 / - / 4LDK / 117.78㎡
物件番号 |
物件種別 |
所在地 |
価格 |
面積/間取り |
|---|---|---|---|---|
99496235 |
新築一戸建 |
神奈川県横須賀市鴨居3丁目 |
4780万円 |
117.78㎡/4LDK |
- 入力
- 完了
