×

茅ヶ崎市東海岸南4丁目新築戸建 全2棟 2号棟 物件詳細

新築一戸建

茅ヶ崎市東海岸南4丁目新築戸建 全2棟

価格価格7180万円 間取り2LDK+1S(納戸) 専有面積104.75㎡ 築年数予定

-

茅ヶ崎市東海岸南4丁目新築戸建 全2棟のおすすめポイント

【JR東海道線「茅ヶ崎」駅まで徒歩16分☆】
◇宅配ボックス付き門柱
◇電気自動車充電用電源スイッチ付き♪
◇周辺にスーパー・コンビニ・小学校など生活利便性良好です!

こだわりの条件

  • バス・トイレ別

  • 追い焚き

  • 浴室乾燥機

  • 洗面所独立

  • 温水洗浄便座

  • エアコン

  • 都市ガス

  • インターネット無料

  • 宅配ボックス

  • オートロック

  • TV付きモニターホン

  • 2階以上

物件情報

物件名

茅ヶ崎市東海岸南4丁目新築戸建 全2棟

価格

7180万円

所在地

神奈川県茅ヶ崎市東海岸南4丁目

交通

東海道本線 茅ケ崎駅 徒歩16分
湘南新宿ライン高海 茅ケ崎駅 徒歩16分
相模線 北茅ケ崎駅 徒歩30分

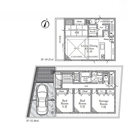
間取り/詳細

2LDK+1S(納戸)/
LDK 17.6帖 1室/洋室 5.3帖 2室/S 7帖 1室
2SLDK+畳コーナー(約4帖)

建物面積(坪数)

104.75㎡(31.68坪)

土地の敷金/保証金

-/-

借地料/借地期間

-/-

土地権利

所有権

土地面積(坪数)

106.11㎡(32.09坪)

傾斜地部分面積

-

路地状敷地

-

私道負担面積/セットバック

-/済

高圧線下面積

-

地目/地勢

宅地/-

接道状況

-(南西 公道 3.7m)

建ぺい率/容積率

-/-

用途地域

-

都市計画

-

種別/構造

新築一戸建/木造

階建

2階建

築年数

予定

総区画数/販売区画数

-/-

向き

南西

現況

未完成

その他の法令上の制限

準防火地域

取引態様

仲介

引渡時期

相談

設備

室内洗濯機置場/フローリング/バルコニー/都市ガス/公営水道/公共下水/電気有/ガスコンロ/コンロ2口以上/食器洗い乾燥機/システムキッチン/コンロ3口/バス・トイレ別/追焚機能浴室/浴室乾燥機/温水洗浄便座/トイレ2ヶ所/独立洗面台/収納豊富/TVモニタ付インターホン

備考

※カースペース1台分(車種による)
※図面と現況が異なる場合は現況優先

建築確認番号

第25UDI1T建00668号

管理コード

98134492

情報更新日

2025年12月08日

取引条件の有効期限

2025年12月22日

※地図上に表示される物件の位置は付近住所に所在することを表すものであり、実際の物件所在地とは異なる場合がございます。

周辺環境

茅ヶ崎市美術館
茅ヶ崎市美術館(徒歩13分/995m)
サザンビーチちがさき
サザンビーチちがさき(徒歩19分/1455m)
茅ヶ崎市立図書館
茅ヶ崎市立図書館(徒歩14分/1045m)

取り扱い店舗

ウスイホーム株式会社 辻堂店 地図

神奈川県知事 (12) 第10799号

所在地

神奈川県藤沢市辻堂2丁目3-1 マリス湘南 A-1

TEL

0466-36-8778

物件番号

98134492

お電話でお問い合わせの際は
「物件番号」をお伝えいただくとスムーズです

STAFF COMMENT

担当者画像

ウスイホーム(株)辻堂店は地元密着の不動産屋です。

【こんなお悩みありませんか?】
・まだ探し始めで具体的ではないけど相談してみたい
・ローンについて全く分からないので一から教えてほしい
・自分たちの理想あるけど、実際どのくらいの家がかえるのかな?
・どんな家があるのか、とりあえず見てみたい!
・今の家を打って住み替えたいけどタイミングがわからない

ご安心してお任せください!
お客様一人一人のご希望を丁寧にお伺いし、物件探しのお手伝いをさせていただきます。
周辺環境を熟知したスタッフが対応いたしますので、お気軽にご相談ください。

お問い合わせ

新築一戸建

茅ヶ崎市東海岸南4丁目新築戸建 全2棟

価格7180万円

予定 / - / 2LDK+1S(納戸) / 104.75㎡

物件番号

物件種別

所在地

価格

面積/間取り

98134492

新築一戸建

神奈川県茅ヶ崎市東海岸南4丁目

7180万円

104.75㎡/2LDK+1S(納戸)

  • 入力
  • 完了

要望必須

※ご要望を選択してください。

お名前必須

※お名前を入力してください。

メールアドレス必須

※メールアドレス形式に誤りがあります。

電話番号任意

内容任意

利用規約及び個人情報保護方針を必ずお読みください。左記内容に同意いただいた場合は、確認画面へお進み下さい。

この物件と同じ駅、隣接駅の物件を探す

この物件と同じ沿線の物件を探す