神之木台新築戸建て 物件詳細
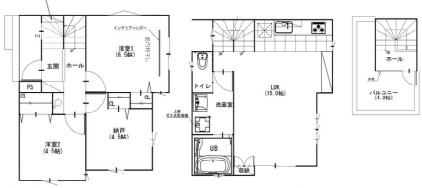
価格価格4780万円 間取り2LDK+1S(納戸) 専有面積76.8㎡ 築年数予定
神之木台新築戸建てのおすすめポイント
【南西向きのLDKとルーフバルコニーで日当たり良好☀】
◇家事時短な豊富な設備が詰まった新築戸建!
◇JP横浜線 大口駅まで12分!
◇周辺にスーパー・コンビニ・小学校など生活利便性良好です!!
こだわりの条件 |
|
|---|

物件情報
物件名 |
神之木台新築戸建て |
価格 |
4780万円 |
|---|---|---|---|
所在地 |
神奈川県横浜市神奈川区神之木台 |
交通 |
横浜線 大口駅 徒歩12分 |
間取り/詳細 |
2LDK+1S(納戸)/ |
建物面積(坪数) |
76.8㎡(23.23坪) |
土地の敷金/保証金 |
-/- |
借地料/借地期間 |
-/- |
土地権利 |
所有権 |
土地面積(坪数) |
75.8㎡(22.92坪) |
傾斜地部分面積 |
- |
路地状敷地 |
- |
私道負担面積/セットバック |
-/- |
高圧線下面積 |
- |
地目/地勢 |
宅地/- |
接道状況 |
一方 |
建ぺい率/容積率 |
60%/200% |
用途地域 |
第一種住居 |
都市計画 |
市街化区域 |
種別/構造 |
新築一戸建/木造 |
階建 |
2階建 |
築年数 |
予定 |
総区画数/販売区画数 |
-/- |
向き |
南 |
現況 |
未完成 |
その他の法令上の制限 |
景観法/航空法/宅地造成及び特定盛土等規制法/都市緑地法 |
取引態様 |
仲介 |
引渡時期 |
相談 |
設備 |
ファミリー向け/室内洗濯機置場/フローリング/バルコニー/ルーフバルコニー/都市ガス/公営水道/公共下水/24時間換気システム/電気有/照明器具付き/駐輪場/バイク置場あり/ガスコンロ/コンロ2口以上/食器洗い乾燥機/システムキッチン/コンロ3口/バス・トイレ別/追焚機能浴室/温水洗浄便座/洗面台/独立洗面台/床下収納/TVモニタ付インターホン/宅配ボックス/複層ガラス |
||
備考 |
※敷地内に駐車場置き場あり |
||
建築確認番号 |
第2025SBC-確00436H号 |
管理コード |
96971430 |
情報更新日 |
2026年02月12日 |
取引条件の有効期限 |
2026年02月16日 |
※地図上に表示される物件の位置は付近住所に所在することを表すものであり、実際の物件所在地とは異なる場合がございます。
取り扱い店舗
ウスイホーム株式会社 新横浜店 地図
神奈川県知事 (12) 第10799号
所在地 |
神奈川県横浜市港北区新横浜3丁目6-1 新横浜SRビル8階 |
||
|---|---|---|---|
TEL |
045-755-7510 |
|---|
物件番号 |
96971430 |
|---|
お電話でお問い合わせの際は |
STAFF COMMENT
ウスイホーム(株)新横浜店は地元密着の不動産屋です。
【こんなお悩みありませんか?】
・まだ探し始めで具体的ではないけど相談してみたい
・ローンについて全く分からないので一から教えてほしい
・自分たちの理想あるけど、実際どのくらいの家がかえるのかな?
・どんな家があるのか、とりあえず見てみたい!
・今の家を打って住み替えたいけどタイミングがわからない
ご安心してお任せください!
お客様一人一人のご希望を丁寧にお伺いし、物件探しのお手伝いをさせていただきます。
周辺環境を熟知したスタッフが対応いたしますので、お気軽にご相談ください。
お問い合わせ
神之木台新築戸建て
価格4780万円
予定 / - / 2LDK+1S(納戸) / 76.8㎡
物件番号 |
物件種別 |
所在地 |
価格 |
面積/間取り |
|---|---|---|---|---|
96971430 |
新築一戸建 |
神奈川県横浜市神奈川区神之木台 |
4780万円 |
76.8㎡/2LDK+1S(納戸) |
- 入力
- 完了