三崎町諸磯新築分譲住宅 物件詳細
価格価格3090万円 間取り4LDK 専有面積99.36㎡ 築年数新築
三崎町諸磯新築分譲住宅のおすすめポイント
たっぷりと陽射しが降り注ぐ南ひな壇の南西向き!
敷地面積約127坪、広々した「多目的平場」付き!
S.I.Cやパントリー等豊富な収納を備えた4LDK新築戸建!
こだわりの条件 |
|
|---|
物件情報
物件名 |
三崎町諸磯新築分譲住宅 |
価格 |
3090万円 |
|---|---|---|---|
所在地 |
神奈川県三浦市三崎町諸磯 |
交通 |
京急久里浜線 三崎口駅 バス17分 「屋志倉」 停歩5分 |
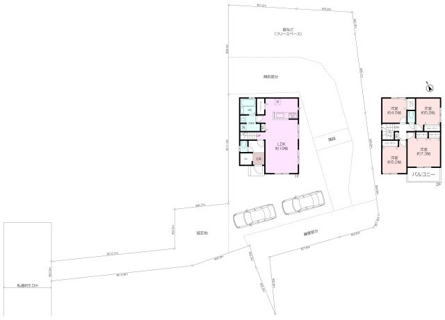
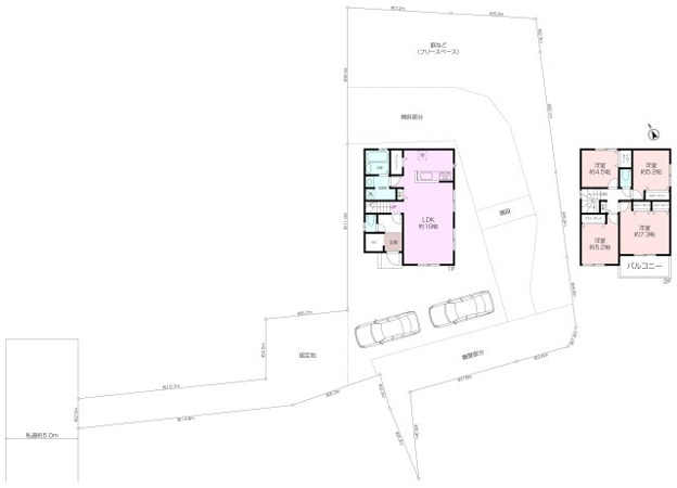
間取り/詳細 |
4LDK/ |
建物面積(坪数) |
99.36㎡(30.05坪) |
土地の敷金/保証金 |
-/- |
借地料/借地期間 |
-/- |
土地権利 |
所有権 |
土地面積(坪数) |
421.8㎡(127.59坪) |
傾斜地部分面積 |
- |
路地状敷地 |
61.79㎡ |
私道負担面積/セットバック |
128㎡/無 |
高圧線下面積 |
- |
地目/地勢 |
宅地/ひな段 |
接道状況 |
一方(西 私道 5m 間口 2m) |
建ぺい率/容積率 |
60%/200% |
用途地域 |
第一種中高層住居専用 |
都市計画 |
市街化区域 |
種別/構造 |
新築一戸建/木造 |
階建 |
2階建 |
築年数 |
新築 |
総区画数/販売区画数 |
1区画/1区画 |
向き |
南西 |
現況 |
完成済み |
その他の法令上の制限 |
高度地区/風致地区 |
取引態様 |
仲介 |
引渡時期 |
即時 |
設備 |
日当たり良好/閑静な住宅地/眺望良好/ファミリー向け/海が近い/室内洗濯機置場/フローリング/バルコニー/プロパンガス/公営水道/個別浄化槽/24時間換気システム/電気有/ガスコンロ/コンロ2口以上/食器洗い乾燥機/システムキッチン/対面式キッチン/コンロ3口/バス・トイレ別/追焚機能浴室/浴室乾燥機/温水洗浄便座/洗面台/トイレ2ヶ所/床下収納/ウォークインシューズクロゼット/食品庫/収納豊富/宅配ボックス/複層ガラス/ディンプルキー/住戸内覧可能 |
||
備考 |
私道持分:30m2×1/4、128m2×1/8 |
||
建築確認番号 |
第24KAK建確03742号 |
管理コード |
96328606 |
情報更新日 |
2025年10月27日 |
取引条件の有効期限 |
2025年11月10日 |
※地図上に表示される物件の位置は付近住所に所在することを表すものであり、実際の物件所在地とは異なる場合がございます。
周辺環境
取り扱い店舗
神奈川県知事 (12) 第10799号
所在地 |
神奈川県横須賀市久里浜4丁目6-12 |
||
|---|---|---|---|
TEL |
0120-938-151 |
|---|
物件番号 |
96328606 |
|---|
お電話でお問い合わせの際は |
STAFF COMMENT
お問い合わせ
三崎町諸磯新築分譲住宅
価格3090万円
新築 / - / 4LDK / 99.36㎡
物件番号 |
物件種別 |
所在地 |
価格 |
面積/間取り |
|---|---|---|---|---|
96328606 |
新築一戸建 |
神奈川県三浦市三崎町諸磯 |
3090万円 |
99.36㎡/4LDK |
- 入力
- 完了
