×

~富士山が眺めます~藤沢市用田 新築戸建て 物件詳細

新築一戸建

~富士山が眺めます~藤沢市用田 新築戸建て

価格価格3500万円 間取り2LDK 専有面積72.66㎡ 築年数新築

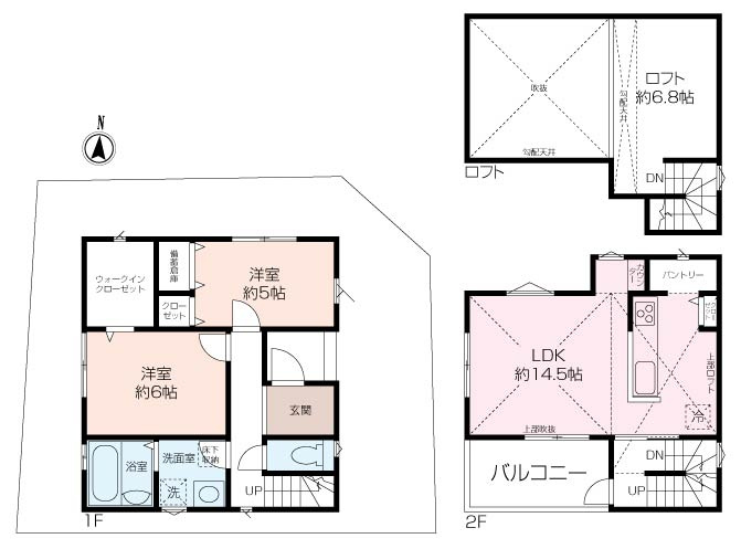
2LDK+ロフト

~富士山が眺めます~藤沢市用田 新築戸建てのおすすめポイント

♪北東角地で富士山が眺める新築戸建て♪
■西側隣地が更地のため、三方角地のような開放感があります。
■閑静な住宅地です。
■駐車スペース1台あり
■家族との会話が弾む対面キッチンを採用
■2階リビングは勾配天井を使用しているため、帖数以上に広く感じます。

こだわりの条件

  • バス・トイレ別

  • 追い焚き

  • 浴室乾燥機

  • 洗面所独立

  • 温水洗浄便座

  • エアコン

  • 都市ガス

  • インターネット無料

  • 宅配ボックス

  • オートロック

  • TV付きモニターホン

  • 2階以上

物件情報

物件名

~富士山が眺めます~藤沢市用田 新築戸建て

価格

3500万円

所在地

神奈川県藤沢市用田2804-11

交通

小田急江ノ島線 湘南台駅 バス18分 「女坂」 停歩4分
小田急江ノ島線 長後駅 バス21分 「女坂」 停歩4分
東海道本線 辻堂駅 バス36分 「女坂」 停歩4分

間取り/詳細

2LDK/
LDK 14.5帖 1室/洋室 5帖 1室/洋室 6帖 1室

建物面積(坪数)

72.66㎡(21.97坪)

土地の敷金/保証金

-/-

借地料/借地期間

-/-

土地権利

所有権

土地面積(坪数)

89.37㎡(27.03坪)

傾斜地部分面積

-

路地状敷地

-

私道負担面積/セットバック

-/無

高圧線下面積

-

地目/地勢

宅地/高台

接道状況

角地(東 公道 4m 間口 7m)(北 公道 4m 間口 7.6m)

建ぺい率/容積率

50%/80%

用途地域

無指定

都市計画

市街化調整区域

種別/構造

新築一戸建/木造

階建

2階建

築年数

新築

総区画数/販売区画数

-/-

向き

現況

完成済み

その他の法令上の制限

文化財保護法

取引態様

一般媒介

引渡時期

相談

設備

日当たり良好/閑静な住宅地/眺望良好/ファミリー向け/室内洗濯機置場/ロフト付き/バルコニー/プロパンガス/公営水道/浄化槽排水/24時間換気システム/ガスコンロ/コンロ2口以上/食器洗い乾燥機/システムキッチン/対面式キッチン/コンロ3口/バス・トイレ別/追焚機能浴室/浴室乾燥機/温水洗浄便座/ウォークインクロゼット/収納豊富

備考

ウスイホーム(株)は地元密着の不動産屋です。 【こんなお悩みありませんか?】 ・まだ探し始めで具体的ではないけど相談してみたい ・ローンについて全く分からないので一から教えてほしい ・自分達の理想はあるけど、実際どのくらいの家が買えるのかな? ・どんな家があるのか、とりあえず見てみたい! ・今の家を売って住替えたいけどタイミングがわからない等… ご安心してお任せ下さい! お客様一人一人のご希望を丁寧にお伺いし、物件探しのお手伝いをさせて頂きます。

建築確認番号

第23KAK建確03406号

管理コード

95778645

情報更新日

2026年01月05日

取引条件の有効期限

2026年01月19日

※地図上に表示される物件の位置は付近住所に所在することを表すものであり、実際の物件所在地とは異なる場合がございます。

周辺環境

御所見小学校
御所見小学校(徒歩28分/2223m)
マインマート用田
マインマート用田(徒歩25分/1957m)
ウエルシア藤沢用田店
ウエルシア藤沢用田店(徒歩26分/2016m)

取り扱い店舗

ウスイホーム株式会社 藤沢店 地図

神奈川県知事 (12) 第10799号

所在地

神奈川県藤沢市藤沢520 

TEL

0120-934-163

物件番号

95778645

お電話でお問い合わせの際は
「物件番号」をお伝えいただくとスムーズです

お問い合わせ

新築一戸建

~富士山が眺めます~藤沢市用田 新築戸建て

価格3500万円

新築 / - / 2LDK / 72.66㎡

物件番号

物件種別

所在地

価格

面積/間取り

95778645

新築一戸建

神奈川県藤沢市用田2804-11

3500万円

72.66㎡/2LDK

  • 入力
  • 完了

要望必須

※ご要望を選択してください。

お名前必須

※お名前を入力してください。

メールアドレス必須

※メールアドレス形式に誤りがあります。

電話番号任意

内容任意

利用規約及び個人情報保護方針を必ずお読みください。左記内容に同意いただいた場合は、確認画面へお進み下さい。

この物件と同じ沿線の物件を探す