●サウナ室付き● 鴨居3丁目新築戸建て 物件詳細
価格価格4180万円 間取り3LDK 専有面積108.06㎡ 築年数予定
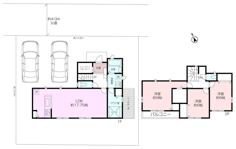
●サウナ室付き● 鴨居3丁目新築戸建てのおすすめポイント
ZEH水準省エネ住宅
◆サウナ室付き
◆カースペース2台
◆敷地60坪越えで広々
◆収納スペース豊富
◆都市ガス
こだわりの条件 |
|
|---|
物件情報
物件名 |
●サウナ室付き● 鴨居3丁目新築戸建て |
価格 |
4180万円 |
|---|---|---|---|
所在地 |
神奈川県横須賀市鴨居3丁目 |
交通 |
京急本線 浦賀駅 徒歩37分 |
間取り/詳細 |
3LDK/ |
建物面積(坪数) |
108.06㎡(32.68坪) |
土地の敷金/保証金 |
-/- |
借地料/借地期間 |
-/- |
土地権利 |
所有権 |
土地面積(坪数) |
200.3㎡(60.59坪) |
傾斜地部分面積 |
- |
路地状敷地 |
- |
私道負担面積/セットバック |
-/無 |
高圧線下面積 |
- |
地目/地勢 |
宅地/高台 |
接道状況 |
一方(北 公道 4m 間口 14.8m) |
建ぺい率/容積率 |
40%/80% |
用途地域 |
第一種低層住居専用 |
都市計画 |
市街化区域 |
種別/構造 |
新築一戸建/木造 |
階建 |
2階建 |
築年数 |
予定 |
総区画数/販売区画数 |
-/- |
向き |
- |
現況 |
未完成 |
その他の法令上の制限 |
宅地造成及び特定盛土等規制法/風致地区/都市再生特別地区/建築協定有 |
取引態様 |
仲介 |
引渡時期 |
2025年10月下旬 |
設備 |
室内洗濯機置場/バルコニー/都市ガス/公営水道/公共下水/ガスコンロ/コンロ2口以上/食器洗い乾燥機/システムキッチン/コンロ3口/バス・トイレ別/トイレ2ヶ所/浴室1坪以上/サウナ/ウォークインクロゼット/収納豊富 |
||
備考 |
徒歩6分の場所に小原台小学校があります。3口コンロが付いているので、同時にたくさん料理できるので毎日忙しい人におすすめです。接道幅10m以上となっております。価格4180万円のお住まいはこちらです。横須賀市の京急本線浦賀周辺には、マイホームに相応しい一戸建て情報が豊富です。引っ越しをお考えの方は、お気軽にご連絡ください。 |
||
建築確認番号 |
第25KAK建確00145号 |
管理コード |
95570443 |
情報更新日 |
2026年03月02日 |
取引条件の有効期限 |
2026年03月16日 |
※地図上に表示される物件の位置は付近住所に所在することを表すものであり、実際の物件所在地とは異なる場合がございます。
取り扱い店舗
神奈川県知事 (12) 第10799号
所在地 |
神奈川県横須賀市野比1丁目7-3 |
||
|---|---|---|---|
TEL |
0120-938-153 |
|---|
物件番号 |
95570443 |
|---|
お電話でお問い合わせの際は |
お問い合わせ
●サウナ室付き● 鴨居3丁目新築戸建て
価格4180万円
予定 / - / 3LDK / 108.06㎡
物件番号 |
物件種別 |
所在地 |
価格 |
面積/間取り |
|---|---|---|---|---|
95570443 |
新築一戸建 |
神奈川県横須賀市鴨居3丁目 |
4180万円 |
108.06㎡/3LDK |
- 入力
- 完了
