\住宅街を見下ろす開放的な大型バルコニー/共恵二丁目中古戸建 物件詳細
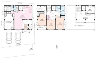
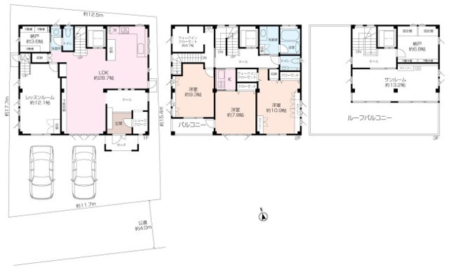
価格価格1億6000万円 間取り4LDK+2S(納戸) 専有面積243.13㎡ 築年数築17年
\住宅街を見下ろす開放的な大型バルコニー/共恵二丁目中古戸建のおすすめポイント
◎湘南の人気エリアに佇む70坪超の邸宅!
◎住宅街を見下ろす開放的な大型バルコニー!
◎建物の状態良好!設備充実、収納豊富なオール電化住宅です!
◎住宅、別荘、事務所等、様々な用途にお勧めです!
こだわりの条件 |
|
|---|
物件情報
物件名 |
\住宅街を見下ろす開放的な大型バルコニー/共恵二丁目中古戸建 |
価格 |
1億6000万円 |
|---|---|---|---|
所在地 |
神奈川県茅ヶ崎市共恵2丁目 |
交通 |
東海道本線 茅ケ崎駅 徒歩13分 |
間取り/詳細 |
4LDK+2S(納戸)/ |
建物面積(坪数) |
243.13㎡(73.54坪) |
土地の敷金/保証金 |
-/- |
借地料/借地期間 |
-/- |
土地権利 |
所有権 |
土地面積(坪数) |
210.92㎡(63.8坪) |
傾斜地部分面積 |
- |
路地状敷地 |
- |
私道負担面積/セットバック |
-/無 |
高圧線下面積 |
- |
地目/地勢 |
宅地/平坦 |
接道状況 |
一方(南 公道 4m 間口 11.7m) |
建ぺい率/容積率 |
60%/200% |
用途地域 |
第一種住居 |
都市計画 |
- |
種別/構造 |
中古一戸建/鉄骨造 |
階建 |
3階建 |
築年数 |
築17年 |
総区画数/販売区画数 |
-/- |
向き |
- |
現況 |
空家 |
その他の法令上の制限 |
景観法/高度地区/準防火地域 |
取引態様 |
専任媒介 |
引渡時期 |
相談 |
設備 |
日当たり良好/閑静な住宅地/眺望良好/二世帯住宅/ファミリー向け/海が近い/フローリング/ルーフバルコニー/公営水道/公共下水/オール電化/エレベーター/ガスコンロ/システムキッチン/ディスポーザー/バス・トイレ別/追焚機能浴室/洗面台/トイレ2ヶ所/浴室1坪以上/エアコン/ウォークインクロゼット/ウォークインシューズクロゼット/収納豊富 |
||
備考 |
◎陽当たり良好な南向きの63坪超の整形地です! |
||
建築確認番号 |
- |
管理コード |
87486936 |
情報更新日 |
2025年12月05日 |
取引条件の有効期限 |
2025年12月19日 |
※地図上に表示される物件の位置は付近住所に所在することを表すものであり、実際の物件所在地とは異なる場合がございます。
取り扱い店舗
神奈川県知事 (12) 第10799号
所在地 |
神奈川県藤沢市辻堂2丁目3-1 マリス湘南 A-1 |
||
|---|---|---|---|
TEL |
0466-36-8778 |
|---|
物件番号 |
87486936 |
|---|
お電話でお問い合わせの際は |
お問い合わせ
\住宅街を見下ろす開放的な大型バルコニー/共恵二丁目中古戸建
価格1億6000万円
築17年 / - / 4LDK+2S(納戸) / 243.13㎡
物件番号 |
物件種別 |
所在地 |
価格 |
面積/間取り |
|---|---|---|---|---|
87486936 |
中古一戸建 |
神奈川県茅ヶ崎市共恵2丁目 |
1億6000万円 |
243.13㎡/4LDK+2S(納戸) |
- 入力
- 完了
