×

ハイランド2丁目中古戸建 物件詳細

中古一戸建

ハイランド2丁目中古戸建

価格価格2680万円 間取り4LDK 専有面積107.3㎡ 築年数築28年

-

ハイランド2丁目中古戸建のおすすめポイント

【価格改定!】
◎2025年12月、新規内外装リノベーション!
◎京急久里浜線「YRP野比駅」徒歩17分
◎前面道路幅員約6.4mと駐車もスムーズ
◎スーパー・小学校徒歩10分圏内で生活環境良好!

こだわりの条件

  • バス・トイレ別

  • 追い焚き

  • 浴室乾燥機

  • 洗面所独立

  • 温水洗浄便座

  • エアコン

  • 都市ガス

  • インターネット無料

  • 宅配ボックス

  • オートロック

  • TV付きモニターホン

  • 2階以上

物件情報

物件名

ハイランド2丁目中古戸建

価格

2680万円

所在地

神奈川県横須賀市ハイランド2丁目24-16

交通

京急久里浜線 YRP野比駅 徒歩17分
京急久里浜線 YRP野比駅 バス5分 「島田(神奈川県)」 停歩7分
京急久里浜線 京急久里浜駅 バス11分 「ハイランド(横須賀市)」 停歩7分

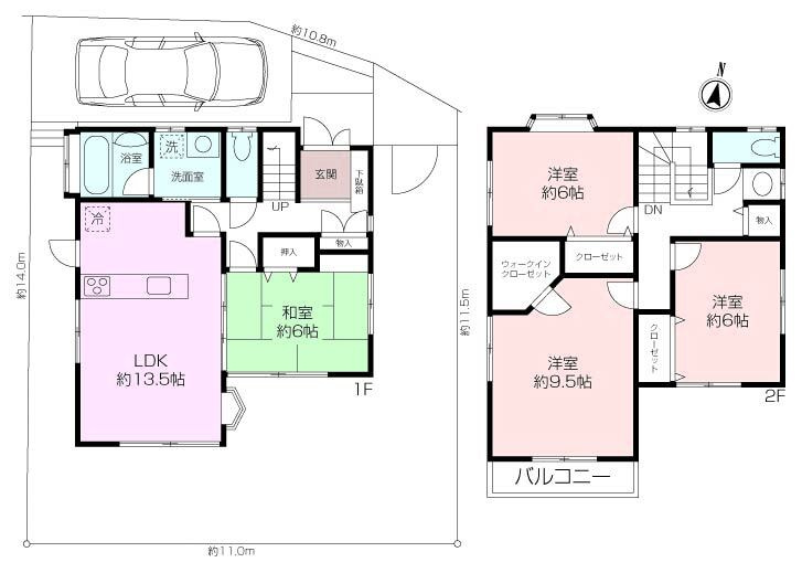
間取り/詳細

4LDK/
LDK 13.5帖 1室/和室 6帖 1室/洋室 9.5帖 1室/洋室 6帖 1室/洋室 6帖 1室

建物面積(坪数)

107.3㎡(32.45坪)

土地の敷金/保証金

-/-

借地料/借地期間

-/-

土地権利

所有権

土地面積(坪数)

138.17㎡(41.79坪)

傾斜地部分面積

-

路地状敷地

-

私道負担面積/セットバック

-/無

高圧線下面積

-

地目/地勢

宅地/高台

接道状況

一方(北 公道 6.4m 間口 10.8m)

建ぺい率/容積率

40%/80%

用途地域

第一種低層住居専用

都市計画

市街化区域

種別/構造

中古一戸建/木造

階建

2階建

築年数

築28年

総区画数/販売区画数

-/-

向き

-

現況

空家

その他の法令上の制限

建築基準法第22条地域

取引態様

仲介

引渡時期

相談

設備

リフォーム済/室内洗濯機置場/フローリング/バルコニー/都市ガス/公営水道/公共下水/駐輪場/バイク置場あり/ガスコンロ/コンロ2口以上/対面式キッチン/コンロ3口/バス・トイレ別/トイレ2ヶ所/独立洗面台/ウォークインクロゼット

リフォームの概要

2025年12月
キッチン 浴室 トイレ 壁 床 ◎外壁(外壁・屋根・付帯部分塗装) ◎キッチン ◎浴室(LIXILユニットバス) ◎脱衣所(LIXIL洗面台) ◎トイレ1,2階(TOTOウォシュレット、紙巻き器、タオル掛け) ◎共通(床フローリング・床フロアタイル・畳表替え・壁、天井クロス、襖、障子、建具補修、給湯器交換、カーテンレール、照明器具、モニター付インターフォン、火災報知器、スイッチカバー交換、POST交換、室内・外構クリーニング)等
2025年12月
外壁 屋根

建築確認番号

-

管理コード

101399706

情報更新日

2026年03月16日

取引条件の有効期限

2026年03月30日

※地図上に表示される物件の位置は付近住所に所在することを表すものであり、実際の物件所在地とは異なる場合がございます。

取り扱い店舗

ウスイホーム株式会社 追浜店 地図

神奈川県知事 (12) 第10799号

所在地

神奈川県横須賀市追浜本町1丁目8-12 

TEL

046-876-5498

物件番号

101399706

お電話でお問い合わせの際は
「物件番号」をお伝えいただくとスムーズです

STAFF COMMENT

担当者画像

新規内外装リノベーション済、中古戸建になります。
バルコニー南向きにて陽当たり良好、各居室収納がついております。
2階各居室6帖以上、広いお部屋をお求めの方にお勧めの物件となります。
空室につき内覧可能となりますので、お問い合わせ心よりお待ちしております。

お問い合わせ

中古一戸建

ハイランド2丁目中古戸建

価格2680万円

築28年 / - / 4LDK / 107.3㎡

物件番号

物件種別

所在地

価格

面積/間取り

101399706

中古一戸建

神奈川県横須賀市ハイランド2丁目24-16

2680万円

107.3㎡/4LDK

  • 入力
  • 完了

要望必須

※ご要望を選択してください。

お名前必須

※お名前を入力してください。

メールアドレス必須

※メールアドレス形式に誤りがあります。

電話番号任意

内容任意

利用規約及び個人情報保護方針を必ずお読みください。左記内容に同意いただいた場合は、確認画面へお進み下さい。

この物件と同じ駅、隣接駅の物件を探す

この物件と同じ沿線の物件を探す